Id 158611

Ильменский проезд, 4 к 1 /Помещение свободного назначения/47,9 м²/ продажа

адрес Москва, Ильменский проезд, 4к1

С отдельным входом
Торговая
Общепит
Медицина

37 000 000 RUB | за все

(за 1 м2 — 787 234 RUB)

площадь 47.0 м2

QR код Qr код

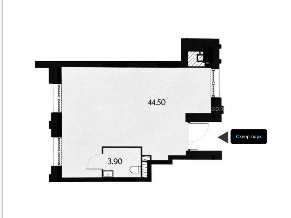
Продается помещение свободного назначения в ЖК «ДМИТРОВСКОЕ НЕБО» Помещение в центре нового густонаселенного района из высотных корпусов, вход со стороны сквера-парка – точки притяжения жителей. Высокая стадия готовности, дом построен;
• 40% квартир в очереди с отделкой,
заселение пройдет быстро;
• стилобат, отдельный вход со стороны сквера-парка – открытого для всех игрового и прогулочного пространства;
• Проект в центре нового района – застройка вокруг продолжается, высокая плотность населения – рядом дома свыше 40 этажей.
• Карта арендаторов: магазин мини-формата, алкомаркет, кафе, пекарня.

Технические условия:
• открытая планировка;
• высота потолка 6 м;
• мощность электричества 9 кВт, можно
увеличить;
• 3 витринных окна – одно со стороны
входа и парка, два – на внутреннюю
территорию.


Транспортная доступность:
5 минут пешком от двух станций метро –
Верхние Лихоборы и Селигерская.
8 км от ТТК в центре нового высотного
жилого массива бизнес- и комфорт-класса от разных
застройщиков между Дмитровским шоссе и Октябрьской
железной дорогой.

Коммерческие условия:
Стоимость помещения: 37 000 000 рублей
Стоимость за м2: 772 443 рублей

- Ввод в эксплуатацию III кв. 2025
- Выдача ключей 18 июля 2026

Технические характеристики

Тип здания: С отдельным входом,Торговая,Общепит,Медицина

Общая площадь: 47  м2

Этаж: 1

Всего этажей: 32

Электрическая мощность: 9

Высота потолков: 6

Парковка: на улице

Коммерческие условия

Цена за все: 37 000 000 RUB

ФОРМА ВЛАДЕНИЯ: собственность

карта

Расположение

Адрес: Москва, Ильменский проезд, 4к1

Округ: Северный административный округ

Близость метро: Селигерская

Транспортная доступность: Селигерская, Верхние Лихоборы

Окружение

Торговое окружение: -

Адрес:

Москва, Ильменский проезд, 4к1

Округ:

Северный административный округ

Близость метро:

Селигерская

Транспортная доступность:

Селигерская, Верхние Лихоборы

карта

Торговое окружение:

-

Общая площадь:

47  м2

Этаж:

1

Всего этажей:

32

Тип:

С отдельным входом,Торговая,Общепит,Медицина

Электрическая мощность:

9

Высота потолков:

6

Парковка:

на улице

ФОРМА ВЛАДЕНИЯ:

собственность

Цена за все:

37 000 000 RUB

Планировка

Олеся Шайхисламова

Ваш брокер по работе с клиентами

Найдите лучшее место
для жизни, бизнеса, инвестиций

Оставьте свои контакты — с вами свяжется руководитель отдела для презентации нужного вам объекта

Похожие объекты