Id 158730

Москва, Средний Тишинский переулок, д.5 / 128,3 кв.м / Продажа помещения

адрес Москва, Средний Тишинский переулок, д.5

Многофункциональный
С отдельным входом
Общепит

204 860 000 RUB | за все

(за 1 м2 — 1 600 469 RUB)

площадь 128.0 м2

QR код Qr код

Предлагается в продажу помещение в новом элитном квартале в ЦАО - ЖК «Тишинский бульвар» по адресу: Москва, Средний Тишинский переулок, д.5. Трендовый район со сверх интенсивным трафиком, рядом находятся крупные точки притяжения, которые обеспечивают постоянный пешеходный трафик: офисные центры, гастрономический рынок, фуд-маркет и шопинг-аллея, 3 300 жителей элитного квартала «Тишинский бульвар» и сотрудники офисов, расположенных на территории, 18 000 жителей и резидентов соседних жилых кварталов, 9 500 сотрудников штаб-квартиры «Т-Банка».

Технические характеристики:
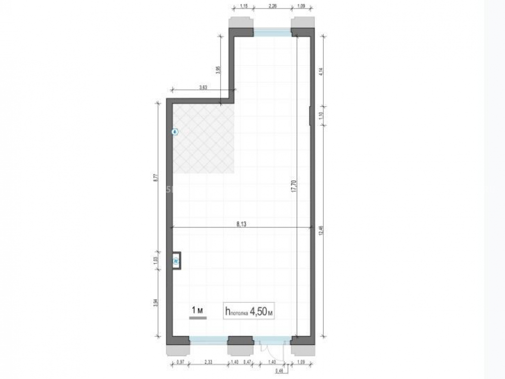
помещение на первом этаже жилого дома площадью 128,3 м2 с отдельным входом, витринное остекление, электр. мощность 23,8 кВт., потолки 4,5 м, мокрая точка. Срок сдачи - 1 кв 2027 г

Коммерческие условия:
Цена объекта - 204 860 000 рублей.
Цена за 1 кв.м. - 1 596 804 рублей.

Технические характеристики

Тип здания: Многофункциональный,С отдельным входом,Общепит

Общая площадь: 128  м2

Этаж: 1

Всего этажей: 25

Электрическая мощность: 23,8

Высота потолков: 4,5

Парковка: наземная и подземная

Коммерческие условия

Цена за все: 204 860 000 RUB

ФОРМА ВЛАДЕНИЯ: в собственности

карта

Расположение

Адрес: Москва, Средний Тишинский переулок, д.5

Округ: Центральный административный округ

Близость метро: Белорусская

Транспортная доступность: в 10 мин пешком от м Белорусская

Окружение

Торговое окружение: тц, кафе, ПВЗ, БЦ

Адрес:

Москва, Средний Тишинский переулок, д.5

Округ:

Центральный административный округ

Близость метро:

Белорусская

Транспортная доступность:

в 10 мин пешком от м Белорусская

карта

Торговое окружение:

тц, кафе, ПВЗ, БЦ

Общая площадь:

128  м2

Этаж:

1

Всего этажей:

25

Тип:

Многофункциональный,С отдельным входом,Общепит

Электрическая мощность:

23,8

Высота потолков:

4,5

Парковка:

наземная и подземная

ФОРМА ВЛАДЕНИЯ:

в собственности

Цена за все:

204 860 000 RUB

Планировка

Субботина Анна

Ваш брокер по работе с клиентами

Найдите лучшее место
для жизни, бизнеса, инвестиций

Оставьте свои контакты — с вами свяжется руководитель отдела для презентации нужного вам объекта

Похожие объекты