Id 159437

Бауманская ул, д. 33/2с3 - 59.8 кв.м. - Продажа / Торговое помещение

адрес Москва, Бауманская улица, 33/2с3

С отдельным входом
Торговая

72 600 000 RUB | за все

(за 1 м2 — 1 214 047 RUB)

площадь 59.8 м2

QR код Qr код

Продажа торгового помещения по адресу: Москва, Бауманская ул., д. 33/2с3, ЦАО, район Басманный. В шаговой доступности от метро Бауманская. Исторический район в ЦАО с развитой инфраструктурой. Множество кафе и ресторанов, шоу-румов, банки, аптеки, торговые и бизнес центры. Интенсивный пешеходный трафик от метро к ул. Бакунинская и Бауманская, особенно в часы пик. Удобная транспортная доступность.
Торговое окружение: Терволина, Райфайзен банк, Мяснов-Отдохни, ресторан Чито-ра, Мосгорломбард, комиссионный магазин элитной одежды, кофейня, табак.

Технические характеристики:
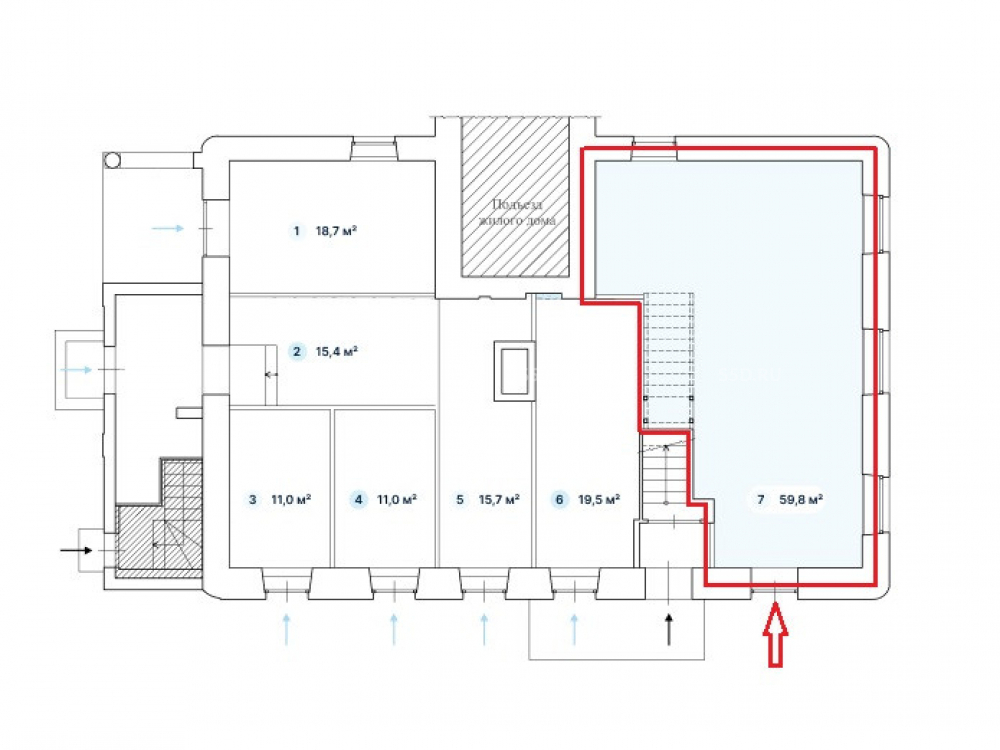
Площадь помещения - 59.8 кв.м. 1 этаж 3-х этажного дома. 1 линия, отдельный вход. Витринное остекление. Свободная планировка. Достаточное количество электроэнергии любой вид деятельности. Высота потолков 3.25 м. Центральные коммуникации. Состояние помещения под чистовую отделку. Подойдёт под любой вид деятельности: торговое помещение, кафе, аптека, салон красоты, банк, офис продаж и др.

Цена помещения - 72 600 000 руб. (УСН)
Цена за 1 кв.м - 1 214 047 руб.
Собственник физлицо.
Форма сделки: ДКПН

Технические характеристики

Тип здания: С отдельным входом,Торговая

Общая площадь: 59.8  м2

Этаж: 1

Всего этажей: 3

Электрическая мощность: 25 кВт

Высота потолков: 3.25м

Парковка: Городская

Коммерческие условия

Цена за все: 72 600 000 RUB

ФОРМА ВЛАДЕНИЯ: ИП

карта

Расположение

Адрес: Москва, Бауманская улица, 33/2с3

Округ: Центральный административный округ

Близость метро: Бауманская

Транспортная доступность: 1 мин. пешком от м.Бауманская

Окружение

Торговое окружение: Терволина, Райфайзен банк, Мяснов-Отдохни, ресторан Чито-ра, Мосгорломбард, комиссионный магазин элитной одежды, кофейня, табак.

Адрес:

Москва, Бауманская улица, 33/2с3

Округ:

Центральный административный округ

Близость метро:

Бауманская

Транспортная доступность:

1 мин. пешком от м.Бауманская

карта

Торговое окружение:

Терволина, Райфайзен банк, Мяснов-Отдохни, ресторан Чито-ра, Мосгорломбард, комиссионный магазин элитной одежды, кофейня, табак.

Общая площадь:

59.8  м2

Этаж:

1

Всего этажей:

3

Тип:

С отдельным входом,Торговая

Электрическая мощность:

25 кВт

Высота потолков:

3.25м

Парковка:

Городская

ФОРМА ВЛАДЕНИЯ:

ИП

Цена за все:

72 600 000 RUB

Планировка

Воробьев Алексей

Ваш брокер по работе с клиентами

Найдите лучшее место
для жизни, бизнеса, инвестиций

Оставьте свои контакты — с вами свяжется руководитель отдела для презентации нужного вам объекта

Похожие объекты