Id 160030

НАО, Филимоновское поселение, д. Середнево, Жилой комплекс Цветочные Поляны экопарк, корпус 9 – 36.5 м² /Готовый арендный бизнес /ПВЗ Озон

адрес Филимоновское поселение, д. Середнево, ЖК Цветочные Поляны экопарк, корпус 9

Арендный бизнес
С отдельным входом
Торговая
Жилой комплекс (мфк)
Новостройка

Окупаемость: 9.5 лет

Доходность:10.53%

15 500 000 RUB | за все

(за 1 м2 — 424 658 RUB)

площадь 36.5 м2

QR код Qr код

Продажа готового арендного бизнеса в НАО, в новом ЖК комфорт-класса "Цветочные Поляны Экопарк".
Ближайшие станции метро – 10-15 минут транспортом: Филатов Луг, Саларьево, Прокшино, Рассказовка, Новопеределкино.
14 км до МКАД.
В ЖК 8 разноуровневых корпусов от 6 до 16 этажей – 2600 квартир на 6000+ жителей. Все квартиры в ЖК сдаются покупателям с отделкой «под ключ». В 5-ти минутах пешком планируется строительство новой станции метро.

Технические характеристики:

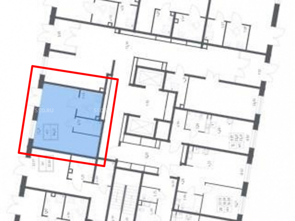
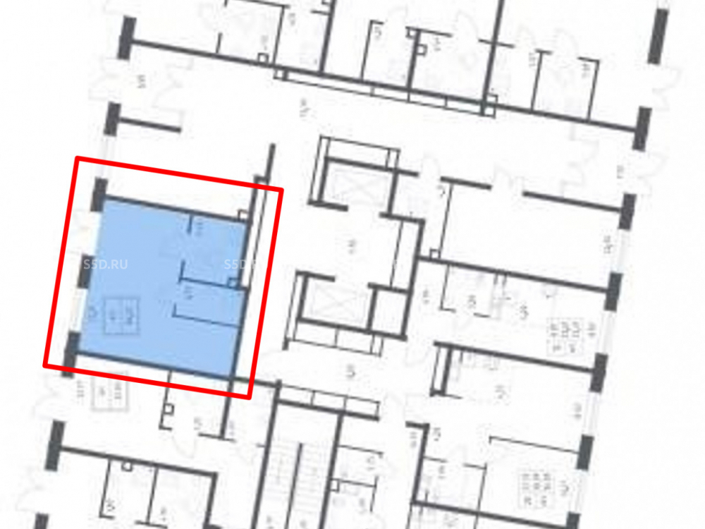
Первый этаж 20-ти этажного жилого дома.
Отдельный вход.
Витринное остекление.
Высота потолков - 3.5 метра,
Выделенная эл. мощность –8 кВт.
Мокрые точки. Парковка перед зданием. Возможность рекламной вывески на фасаде. Возможность получения алкогольной лицензии.
Дом готов полностью.
Выдача ключей 1 квартал 2026 года
Высокий пешеходный трафик, центр плотной высокой застройки, напротив паркинг, рядом ТЦ, детский сад и школа.

Арендатор: ПВЗ Озон
МАП:
1 год 109 500 в месяц,
2 год 114 975 в месяц,
3 год 120 723 в месяц

Коммерческие условия:
Общая площадь - 36.5 кв.м;
Стоимость - 15 500 000 рублей;
Стоимость 1 кв.м. - 424 657 рублей.
Окупаемость 10 лет.

Технические характеристики

Тип здания: Арендный бизнес,С отдельным входом,Торговая,Жилой комплекс (мфк),Новостройка

Общая площадь: 36.5  м2

Этаж: 1

Всего этажей: 20

Электрическая мощность: 8 кВт

Высота потолков: 3.5 метра

Парковка: есть

Коммерческие условия

Цена за все: 15 500 000 RUB

ФОРМА ВЛАДЕНИЯ: -

Общий МАП: 109 500 RUB (данный МАП является минимальным, при оптимизации арендаторов арендный поток можно значительно увеличить)

Общий ГАП: 1 314 000 RUB

Окупаемость: 9.5 лет

Доходность: 10.53%

карта

Расположение

Адрес: Филимоновское поселение, д. Середнево, ЖК Цветочные Поляны экопарк, корпус 9

Близость метро: Рассказовка

Транспортная доступность: Ближайшие станции метро – 10-15 минут транспортом: Филатов Луг, Саларьево, Прокшино, Рассказовка, Новопеределкино. 14 км до МКАД.

Окружение

Торговое окружение: Супермаркеты, магазины, социальная инфраструктура.

Адрес:

Филимоновское поселение, д. Середнево, ЖК Цветочные Поляны экопарк, корпус 9

Округ:

Близость метро:

Рассказовка

Транспортная доступность:

Ближайшие станции метро – 10-15 минут транспортом: Филатов Луг, Саларьево, Прокшино, Рассказовка, Новопеределкино. 14 км до МКАД.

карта

Торговое окружение:

Супермаркеты, магазины, социальная инфраструктура.

Общая площадь:

36.5  м2

Этаж:

1

Всего этажей:

20

Тип:

Арендный бизнес,С отдельным входом,Торговая,Жилой комплекс (мфк),Новостройка

Электрическая мощность:

8 кВт

Высота потолков:

3.5 метра

Парковка:

есть

ФОРМА ВЛАДЕНИЯ:

-

Цена за все:

15 500 000 RUB

Общий МАП: 109 500

(данный МАП является минимальным, при оптимизации арендаторов арендный поток можно значительно увеличить)

Общий ГАП:

1 314 000

Окупаемость:

9.5 лет

Доходность:

10.53%

Планировка

Романов Роман

Ваш брокер по работе с клиентами

Найдите лучшее место
для жизни, бизнеса, инвестиций

Оставьте свои контакты — с вами свяжется руководитель отдела для презентации нужного вам объекта

Похожие объекты