Id 160425

ЖК Бусиновский парк, корп. 1.4. - 59,41 кв. м. - Продажа Торгового помещения / 1 этаж

адрес Москва, Ижорская улица, 6к7

Торговая

32 000 000 RUB | за все

(за 1 м2 — 533 333 RUB)

площадь 60.0 м2

QR код Qr код

г. Москва, ЖК Бусиновский Парк, к 1.4, станция МЦД Грачёвская, ст метро Ховрино - в 20 минутах пешком. Первая линия домов. Напротив Multihab. Высокий пешеходный трафик вдоль помещения.

Окружение: плотный жилой массив, все сетевые магазины, высокая покупательская способность жителей района.

Технические характеристики: площадь - 60 кв.м., 1 этаж из 20, многоквартирный жилой дом. Серия ПИК+. Высота потолка - 4,5 метра. Электрическая мощность - 12 кВт с возможностью увеличения. Возможность размещения вывески на фасаде. Есть парковка. Витринное остекление.
В отдалeнии от шкoлы и вxoда в д/с. Cеpия ПИK плюс. Kоличecтвo кopпуcов: 30. Количecтво квaртир: oколo 11 000. Примеpнoе кoличeство жителeй: 25 300. Этажнocть: 3-33. Зaселeнo: 8 корпусов.

Помещение находится в сторящемся доме, срок сдачи объекта - июнь 2026 г.

Коммерческие условия:
Цена за все - 30 000 000 руб.
Цена за кв.м. - 500 000 руб.

Собственник - физическое лицо.
Схема сделки - уступка по ДДУ.

Технические характеристики

Тип здания: Торговая

Общая площадь: 60  м2

Этаж: 1

Всего этажей: 21

Электрическая мощность: 12

Высота потолков: 4.5

Парковка: Гостевая 30+ машин

Коммерческие условия

Цена за все: 32 000 000 RUB

ФОРМА ВЛАДЕНИЯ: ДДУ

карта

Расположение

Адрес: Москва, Ижорская улица, 6к7

Округ: Северный административный округ

Близость метро: Ховрино

Транспортная доступность: Ближайшая станция метро: Ховрино 15 минут

Окружение

Торговое окружение: Стрит ритейл малого формата

Адрес:

Москва, Ижорская улица, 6к7

Округ:

Северный административный округ

Близость метро:

Ховрино

Транспортная доступность:

Ближайшая станция метро: Ховрино 15 минут

карта

Торговое окружение:

Стрит ритейл малого формата

Общая площадь:

60  м2

Этаж:

1

Всего этажей:

21

Тип:

Торговая

Электрическая мощность:

12

Высота потолков:

4.5

Парковка:

Гостевая 30+ машин

ФОРМА ВЛАДЕНИЯ:

ДДУ

Цена за все:

32 000 000 RUB

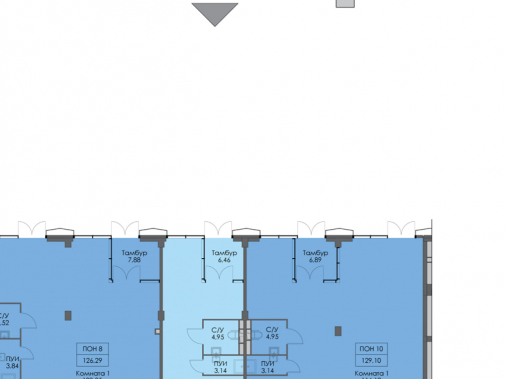
Планировка

Балинов Алексей

Ваш брокер по работе с клиентами

Найдите лучшее место
для жизни, бизнеса, инвестиций

Оставьте свои контакты — с вами свяжется руководитель отдела для презентации нужного вам объекта

Похожие объекты