Id 16738

ул. Неглинная 14с1А - 54.8 кв.м. / Продажа Готового Арендного Бизнеса / Ресторан

адрес Москва, ул. Неглинная, д. 14/1А

Арендный бизнес
С отдельным входом
Торговая

Окупаемость: 13.6 года

Доходность:7.36%

145 000 000 RUB | за все

(за 1 м2 — 2 645 985 RUB)

площадь 54.8 м2

QR код Qr код

Продаётся Готовый Арендный Бизнес в самом сердце Москвы - на ул. Неглинная. Помещение расположено на первой линии. Прогулочная пешеходная зона столицы. Туристический маршрут от Цветного бульвара к Кузнецкому Мосту, ЦУМу, Большому Театру. Супер интенсивный пешеходный трафик рядом с помещением в течение всего дня. Ближайшие станции метро Кузнецкий мост и Трубная, находятся в 7 минутах пешком.
Адрес: г. Москва, ЦАО, ул. Неглинная, 14/1А.

У помещения высокий рекламный потенциал, отличная визуализация рекламных вывесок и витрины с Неглинной улицы. Планировка зальная. Все городские коммуникации. Отдельный фасадный вход. Большая витрина.

Действующий арендатор - ресторан «Bruno» (Lucky Group). Долгосрочный договор аренды от 04.2024 на 5 лет. МАП - 892 500 рублей, ГАП - 10 710 000 рублей. Индексация 5%
с 5го года - 10%

Технические характеристики:
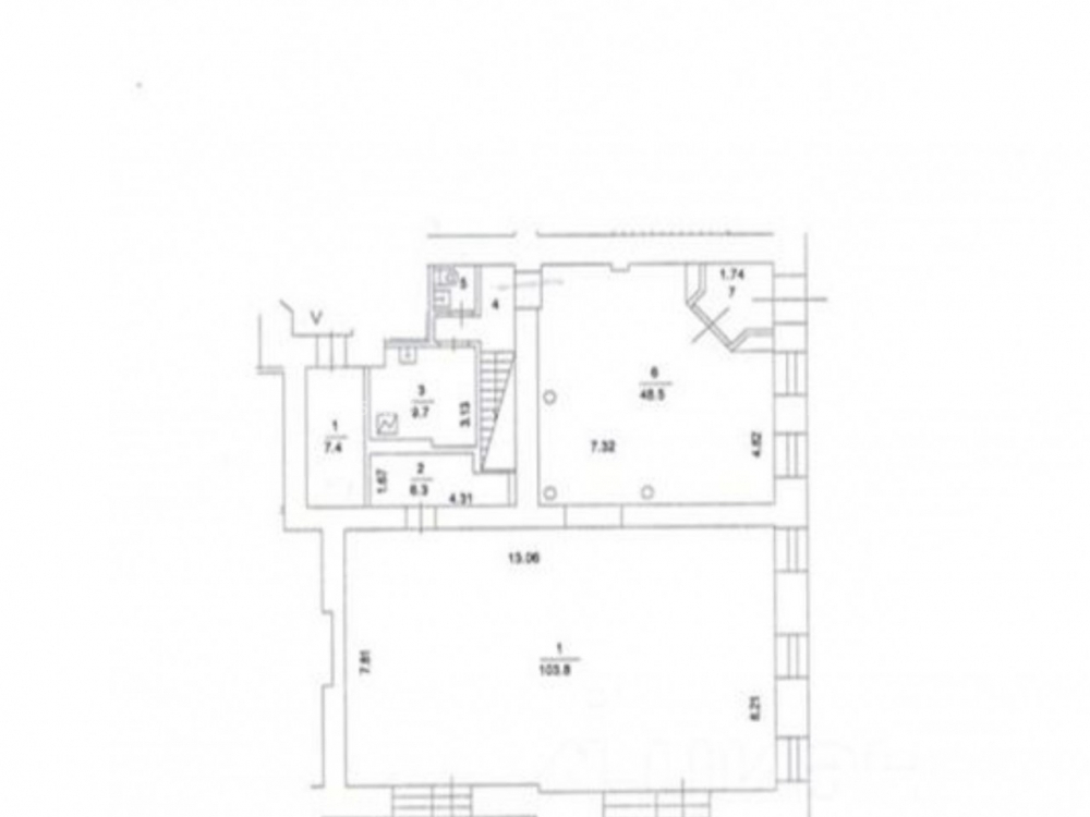
Площадь - 54.8 кв.м. расположена на первом этаже 3-х этажного НЕЖИЛОГО дома. Высота потолков - 4.5 м. Электрическая мощность - 15 кВт.

Коммерческие условия:
Площадь - 54.8 кв.м.;
Стоимость - 145 000 000 рублей;
Стоимость за кв.м - 2 645 985 рублей
Окупаемость - 14 лет.

Технические характеристики

Тип здания: Арендный бизнес,С отдельным входом,Торговая

Общая площадь: 54.8  м2

Этаж: 1

Всего этажей: 3

Электрическая мощность: 15 кВт

Высота потолков: 4.5 м

Парковка: есть

Коммерческие условия

Цена за все: 145 000 000 RUB

ФОРМА ВЛАДЕНИЯ: -

Общий МАП: 892 500 RUB (данный МАП является минимальным, при оптимизации арендаторов арендный поток можно значительно увеличить)

Общий ГАП: 10 710 000 RUB

Окупаемость: 13.6 года

Доходность: 7.36%

карта

Расположение

Адрес: Москва, ул. Неглинная, д. 14/1А

Округ: Центральный административный округ

Близость метро: Кузнецкий мост,Лубянка,Трубная

Транспортная доступность: Ближайшие станции метро Кузнецкий мост и Трубная, находятся в 7 минутах пешком.

Окружение

Торговое окружение: -

Адрес:

Москва, ул. Неглинная, д. 14/1А

Округ:

Центральный административный округ

Близость метро:

Кузнецкий мост,Лубянка,Трубная

Транспортная доступность:

Ближайшие станции метро Кузнецкий мост и Трубная, находятся в 7 минутах пешком.

карта

Торговое окружение:

-

Общая площадь:

54.8  м2

Этаж:

1

Всего этажей:

3

Тип:

Арендный бизнес,С отдельным входом,Торговая

Электрическая мощность:

15 кВт

Высота потолков:

4.5 м

Парковка:

есть

ФОРМА ВЛАДЕНИЯ:

-

Цена за все:

145 000 000 RUB

Общий МАП: 892 500

(данный МАП является минимальным, при оптимизации арендаторов арендный поток можно значительно увеличить)

Общий ГАП:

10 710 000

Окупаемость:

13.6 года

Доходность:

7.36%

Планировка

Назарова Олеся

Ваш брокер по работе с клиентами

Найдите лучшее место
для жизни, бизнеса, инвестиций

Оставьте свои контакты — с вами свяжется руководитель отдела для презентации нужного вам объекта

Похожие объекты