Id 160976

ЖК Мангазея на Тульской. г. Москва, Большая Тульская, 10/ 105.7 кв.м. - Продажа ПСН

адрес Москва, Большая Тульская улица, 10с26

Многофункциональный
С отдельным входом
Торговая
Новостройка

119 419 860 RUB | за все

(за 1 м2 — 1 129 800 RUB)

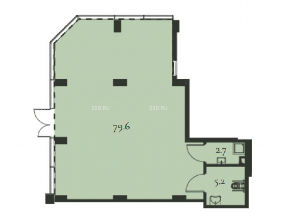
площадь 105.7 м2

QR код Qr код

Предлагается помещение свободного назначения в ЖК "Мангазея" площадью 105,7 м2 кв м2 на 1 этаже находящегося по адресу: ЮАО, район Даниловский.
г. Москва, Большая Тульская, 10.
От метро Тульская - 10 мин. пешком.
ВВОД В ЭКСПЛУАТАЦИЮ- 4 квартал 2027 г.

Торговое окружение:.
Район в развитии – напротив расположены банки: Сбербанк, салоны сотовой связи, аптеки, супермаркеты.

Технические характеристики:
1 этаж с отдельным входом с улицы, общая площадь -87.5 кв м2, без отделки.
Электрическая мощность- 32 кВт.
Высота потолков- 4,3-6,9 м.

Коммерческие условия:
Стоимость – 119 419 860 руб.
Стоимость за кв м2- 1 129 800

Технические характеристики

Тип здания: Многофункциональный,С отдельным входом,Торговая,Новостройка

Общая площадь: 105.7  м2

Этаж: 1

Всего этажей: 41

Электрическая мощность: 32 кВт

Высота потолков: 4,3-6,9 м

Парковка: есть

Коммерческие условия

Цена за все: 119 419 860 RUB

ФОРМА ВЛАДЕНИЯ: -

карта

Расположение

Адрес: Москва, Большая Тульская улица, 10с26

Округ: Южный административный округ

Близость метро: Тульская

Транспортная доступность: От метро Тульская - 10 мин. пешком

Окружение

Торговое окружение: Район в развитии – напротив расположены банки: Сбербанк, салоны сотовой связи, аптеки, супермаркеты.

Адрес:

Москва, Большая Тульская улица, 10с26

Округ:

Южный административный округ

Близость метро:

Тульская

Транспортная доступность:

От метро Тульская - 10 мин. пешком

карта

Торговое окружение:

Район в развитии – напротив расположены банки: Сбербанк, салоны сотовой связи, аптеки, супермаркеты.

Общая площадь:

105.7  м2

Этаж:

1

Всего этажей:

41

Тип:

Многофункциональный,С отдельным входом,Торговая,Новостройка

Электрическая мощность:

32 кВт

Высота потолков:

4,3-6,9 м

Парковка:

есть

ФОРМА ВЛАДЕНИЯ:

-

Цена за все:

119 419 860 RUB

Планировка

Шильцова Александра

Ваш брокер по работе с клиентами

Найдите лучшее место
для жизни, бизнеса, инвестиций

Оставьте свои контакты — с вами свяжется руководитель отдела для презентации нужного вам объекта

Похожие объекты