Id 2902

г. Москва, Цветной бульвар, 20 / 318 кв.м. / Продажа арендного бизнеса/ ВкусВилл, Неофарм, Чай.

адрес г. Москва, Цветной бульвар, д.20/1

Арендный бизнес
С отдельным входом
Торговая
Общепит

Окупаемость: 12 лет

Доходность:8.33%

310 000 000 RUB | за все

(за 1 м2 — 974 843 RUB)

площадь 318.0 м2

QR код Qr код

Продажа торгового помещения на первой линии Цветного бульвара. Станция метро "Цветной бульвар" расположена в 300 метрах. Высокий пешеходный трафик.

Торговое окружение:
Озон, Ригла,ВинЛаб, Абсолют Банк, и д.р.

Технические характеристики:
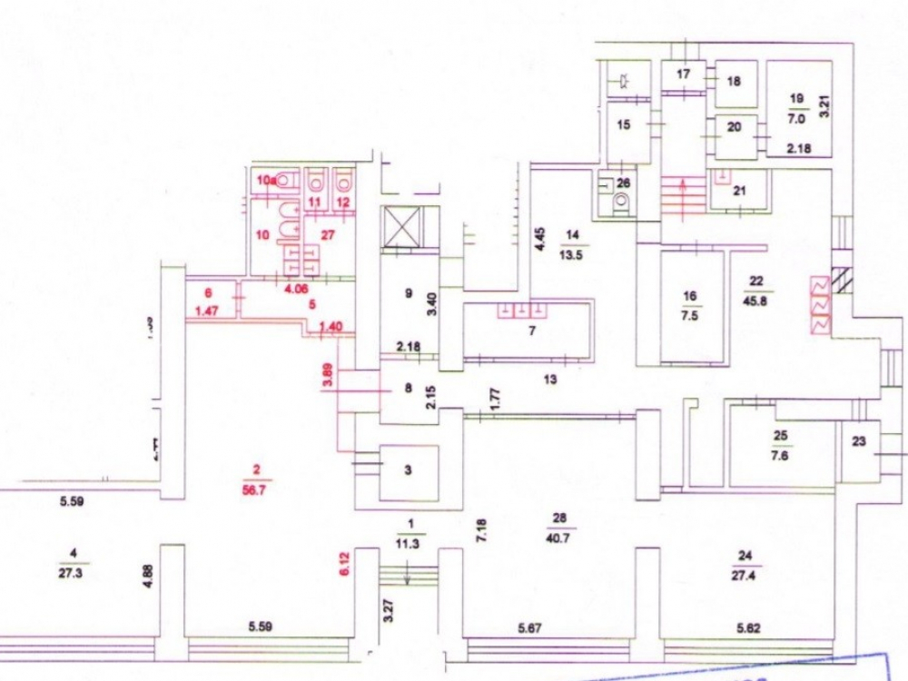
Общая площадь: 318 кв.м.
Первый этаж жилого дома.
Отдельный вход с Цветного бульвара с торца и со двора.
Витринное остекление.
Высота потолков 3,1 м.
Выделенная мощность 60 кВТ.

Коммерческие условия:
Арендатор: Аптека "Неофарм", занимает 105 кв. м, МАП: 680 000 рублей.
Вакантная площадь: 215 кв. м. МАП: 1 480 000 рублей.
Потенциальный МАП: 2 160 000 рублей.
Стоимость объекта: 310 000 000 рублей. УСН.

Технические характеристики

Тип здания: Арендный бизнес,С отдельным входом,Торговая,Общепит

Общая площадь: 318  м2

Этаж: 1

Всего этажей: 8

Электрическая мощность: 60

Высота потолков: 3.1

Парковка: -

Коммерческие условия

Цена за все: 310 000 000 RUB

ФОРМА ВЛАДЕНИЯ: -

Общий МАП: 2 160 000 RUB (данный МАП является минимальным, при оптимизации арендаторов арендный поток можно значительно увеличить)

Общий ГАП: 25 920 000 RUB

Окупаемость: 12 лет

Доходность: 8.33%

карта

Расположение

Адрес: г. Москва, Цветной бульвар, д.20/1

Округ: Центральный административный округ

Близость метро: Трубная,Цветной бульвар

Транспортная доступность: -

Окружение

Торговое окружение: -

Адрес:

г. Москва, Цветной бульвар, д.20/1

Округ:

Центральный административный округ

Близость метро:

Трубная,Цветной бульвар

Транспортная доступность:

-

карта

Торговое окружение:

-

Общая площадь:

318  м2

Этаж:

1

Всего этажей:

8

Тип:

Арендный бизнес,С отдельным входом,Торговая,Общепит

Электрическая мощность:

60

Высота потолков:

3.1

Парковка:

-

ФОРМА ВЛАДЕНИЯ:

-

Цена за все:

310 000 000 RUB

Общий МАП: 2 160 000

(данный МАП является минимальным, при оптимизации арендаторов арендный поток можно значительно увеличить)

Общий ГАП:

25 920 000

Окупаемость:

12 лет

Доходность:

8.33%

Планировка

Шаклеина Юлия

Ваш брокер по работе с клиентами

Найдите лучшее место
для жизни, бизнеса, инвестиций

Оставьте свои контакты — с вами свяжется руководитель отдела для презентации нужного вам объекта

Похожие объекты