Id 6280

Мясницкая д. 7с10 - 222.1 кв.м. / Продажа Готового Арендного Бизнеса в ЦАО

адрес Москва, Мясницкая, д. 7с10

Арендный бизнес
С отдельным входом
Торговая
Общепит

Окупаемость: 15.2 года

Доходность:6.59%

200 000 000 RUB | за все

(за 1 м2 — 900 495 RUB)

площадь 222.1 м2

QR код Qr код

Продаётся Готовый Арендный Бизнес в центре Столицы. Это уникальное Помещение расположено в 100 метрах от выхода из метро Лубянка, в прямой видимости. Туристический маршрут, интенсивный пешеходный трафик. Нежилой дом.
Адрес: г. Москва, ЦАО, ул. Мясницкая, д. 7с10
Вся площадь помещения расположена на 1 этаже 3-х этажного нежилого административного здания. Отдельный вход, шесть больших витрин. Парковка рядом с помещением. Возможность размещения рекламной вывески на фасаде здания.
Объект является памятником архитектуры (фасад). Год постройки 1840. Вокруг развитая инфраструктура - гос. организации, отделения банков, турагентства, офисы.

Технические характеристики:
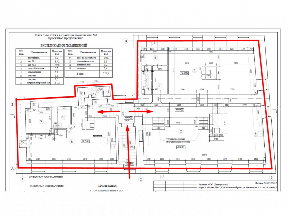
Общая площадь 222.1 кв.м.; Помещение поделено на 2 блока. Проведены все центральные коммуникации. Высота потолков - 3.6 м. Электрическая мощность 135 кВт. Возможность алкогольной лицензии.
Возможность разделения на два независимых блока. Приточно-вытяжная вентиляция.

Коммерческие условия:
Коммунальные услуги оплачивает арендатор;
Стоимость - 200 000 000 рублей;
Стоимость за 1 кв.м. - 900 500 рублей;
Арендатор: Итальянский ресторан
МАП: 1 100 000 рублей;
ГАП: 13 200 000 рублей;
Договор аренды до 2028 года;
Индексация 6% односторонняя;
Окупаемость 15 лет, доходность 6.6%
Форма собственности - юр. лицо (УСН).

Технические характеристики

Тип здания: Арендный бизнес,С отдельным входом,Торговая,Общепит

Общая площадь: 222.1  м2

Этаж: 1

Всего этажей: 3

Электрическая мощность: 135

Высота потолков: 3.6 м

Парковка: на улице

Коммерческие условия

Цена за все: 200 000 000 RUB

ФОРМА ВЛАДЕНИЯ: ЮЛ

Общий МАП: 1 100 000 RUB (данный МАП является минимальным, при оптимизации арендаторов арендный поток можно значительно увеличить)

Общий ГАП: 13 200 000 RUB

Окупаемость: 15.2 года

Доходность: 6.59%

карта

Расположение

Адрес: Москва, Мясницкая, д. 7с10

Округ: Центральный административный округ

Близость метро: Лубянка

Транспортная доступность: 22 минуты - метро Лубянка

Окружение

Торговое окружение: гос. организации, отделения банков, турагентства, офисы.

Адрес:

Москва, Мясницкая, д. 7с10

Округ:

Центральный административный округ

Близость метро:

Лубянка

Транспортная доступность:

22 минуты - метро Лубянка

карта

Торговое окружение:

гос. организации, отделения банков, турагентства, офисы.

Общая площадь:

222.1  м2

Этаж:

1

Всего этажей:

3

Тип:

Арендный бизнес,С отдельным входом,Торговая,Общепит

Электрическая мощность:

135

Высота потолков:

3.6 м

Парковка:

на улице

ФОРМА ВЛАДЕНИЯ:

ЮЛ

Цена за все:

200 000 000 RUB

Общий МАП: 1 100 000

(данный МАП является минимальным, при оптимизации арендаторов арендный поток можно значительно увеличить)

Общий ГАП:

13 200 000

Окупаемость:

15.2 года

Доходность:

6.59%

Планировка

Назарова Олеся

Ваш брокер по работе с клиентами

Найдите лучшее место
для жизни, бизнеса, инвестиций

Оставьте свои контакты — с вами свяжется руководитель отдела для презентации нужного вам объекта

Похожие объекты