Id 141184

г. Москва, Сходненская, 8 - 559 м² - Продажа Арендного Бизнеса / ОСЗ / Ароматный мир / Продуктовый магазин

адрес Москва, ул. Сходненская, 8

Арендный бизнес
Особняк/здание
С отдельным входом
Торговая
Общепит

Окупаемость: 14.9 года

Доходность:6.70%

187 000 000 RUB | за все

(за 1 м2 — 322 414 RUB)

площадь 580.0 м2

QR код Qr код

Продажа отдельно стоящего здания с арендаторами по адресу: г. Москва, СЗАО, район Южное Тушино, ул. Сходненская, 8. Ближайшие станции метро: Сходненская – 13 мин. пешком, Планерная – 4 мин. транспортом, Тушинская – 5 мин. транспортом. Здание располагается в спальном районе Москвы, в шаговой доступности от метро и трамвайной остановки. Объект находится на 1-ой линии, на пересечении Сходненской и Лодочной улицы и Строительного проезда. Интенсивный автомобильный трафик. Развитая инфраструктура района.

Торговое окружение:
Рядом расположены салон красоты Камелия, салон бровей и ресниц Бровист, пункт выдачи Ozon, косметология Pm.Olay, массажный салон, магазин продуктов Авокадо, химчистка Диана, ателье, магазин нумизматики Пруф.

Технические характеристики:
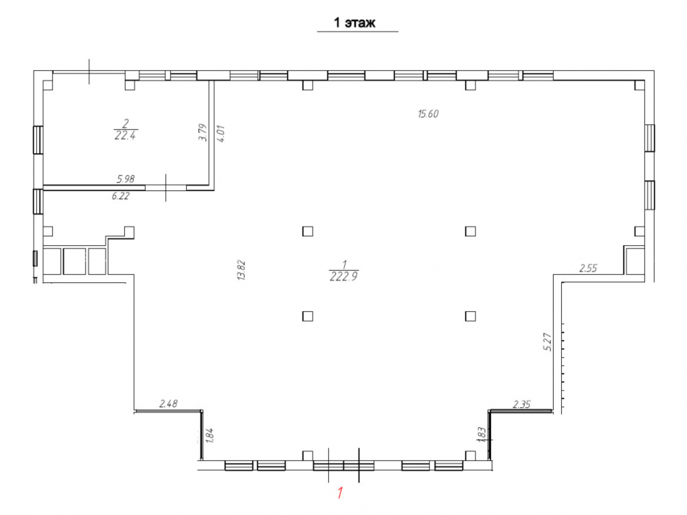
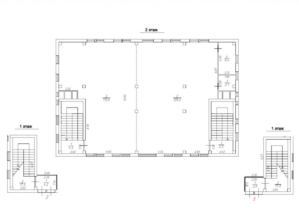
Отдельно стоящее административное здание, общей площадью – 580 м², 1,2 этаж. Вакантные площади – на 2-ом этаже: 142 м² и 178 м² с отделкой. Здание 1948 г. постройки. 4 входа: на 1-ом этаже отдельные входы в каждое помещение и погрузочный, 2 отдельных входа с первой линии на 2-ой этаж. Витринное остекление. Открытая планировка. Высокие потолки – 4,2 м. Электрическая мощность – 110 кВт. Здание после капитального ремонта, заменены все коммуникации. Парковка перед фасадом на 15 машиномест.
ЗУ в аренде на 49 лет с 2018 года, все дoговopы c ресурсоснабжающими организациями заключены.

Коммерческие условия:
Стоимость объекта – 187 000 000 рублей.
Цена за 1 м² – 322 414 руб.
Арендаторы:
1й этаж:
- сеть алкомаркетов Ароматный мир– 110 м², ДДА на 5 лет (от 08.2023) с eжегодной безуcловнoй индeкcацией 6%,
- ВкусВилл (пекарня) – 129 м², МАП – 400 000 рублей / КДА на 11 мес. (от 08.2023) с eжегодной безуcловнoй индeкcацией 6%)
2й этаж:
- АДС-авто (офис 142м2), догoвор на 11 меc, МAП 350 000 pублeй, eжeгoднaя безусловная индeксация 6%,
Вид налогообложения – УСН.
- офис 178м2, вакантно, МАП потенциальный: 450 000 рублей.
МАП текущий: 1 050 000 руб.
МАП потенциальный (после сдачи в аренду последней площади) = 1.500.000 руб
Окупаемость потенциальная: 10.4 года
ДКПН (ИП на УСН)

Технические характеристики

Тип здания: Арендный бизнес,Особняк/здание,С отдельным входом,Торговая,Общепит

Общая площадь: 580  м2

Этаж: 1

Всего этажей: 2

Электрическая мощность: 1

Высота потолков: 1

Парковка: 1

Коммерческие условия

Цена за все: 187 000 000 RUB

ФОРМА ВЛАДЕНИЯ: 1

Общий МАП: 1 050 000 RUB (данный МАП является минимальным, при оптимизации арендаторов арендный поток можно значительно увеличить)

Общий ГАП: 12 600 000 RUB

Окупаемость: 14.9 года

Доходность: 6.70%

карта

Расположение

Адрес: Москва, ул. Сходненская, 8

Округ: Северо-Западный административный округ

Близость метро: Планерная,Сходненская,Тушинская

Транспортная доступность: 1

Окружение

Торговое окружение: 1

Адрес:

Москва, ул. Сходненская, 8

Округ:

Северо-Западный административный округ

Близость метро:

Планерная,Сходненская,Тушинская

Транспортная доступность:

1

карта

Торговое окружение:

1

Общая площадь:

580  м2

Этаж:

1

Всего этажей:

2

Тип:

Арендный бизнес,Особняк/здание,С отдельным входом,Торговая,Общепит

Электрическая мощность:

1

Высота потолков:

1

Парковка:

1

ФОРМА ВЛАДЕНИЯ:

1

Цена за все:

187 000 000 RUB

Общий МАП: 1 050 000

(данный МАП является минимальным, при оптимизации арендаторов арендный поток можно значительно увеличить)

Общий ГАП:

12 600 000

Окупаемость:

14.9 года

Доходность:

6.70%

Планировка

Никифоров Андрей

Ваш брокер по работе с клиентами

Найдите лучшее место
для жизни, бизнеса, инвестиций

Оставьте свои контакты — с вами свяжется руководитель отдела для презентации нужного вам объекта

Похожие объекты