Id 143831

Ярцевская ул., д.27 к1 - 16.8 кв.м - Арендный бизнес

адрес Москва, Ярцевская ул., д.27 к1

Арендный бизнес
С отдельным входом
Торговая

Окупаемость: 12 лет

Доходность:8.33%

39 300 000 RUB | за все

(за 1 м2 — 2 339 286 RUB)

площадь 16.8 м2

QR код Qr код

Предлагается в продажу арендный бизнес, расположенное по адресу: ЗАО, Ярцевская ул., д.27 к1.
Первая линия домов. В прямой видимости от станции метро "Молодежная" (менее 1 минуты пешком). В окружении крупный жилой массив, ЖК "Достояние", развитая инфраструктура, интенсивный пешеходный трафик с высокой покупательской способностью. Рядом ТЦ "Трамплин" и Кунцево плаза".
Торговое окружение: Альфа банк, Совкомбанк, Красная икра, ВкусВилл, Пятерочка, Якитория, ВТБ.

Характеристика объекта:
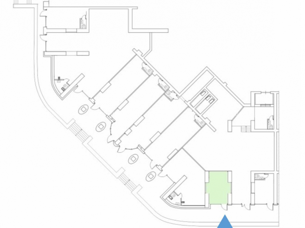
Помещение на 1 этаже 31-тажного жилого дома. Общая площадь 16.8 кв.м. Отдельные входные группы с фасада 1-ой линии и со двора. Новые большие витрины.Планировка — свободная (одним залом), перекрытия — ж/б. Помещения подготовлены под чистовую отделку. Все городские инженерные коммуникации, санузел в каждом блоке, отдельные приборы учета электричества. Высокий рекламный потенциал и места для размещения вывесок. Высота потолков от 3,6 до 4,1 м. В помещениях имеются вытяжные воздуховоды до уровня кровли. Достаточное количество под любой вид деятельности (по запросу).

Коммерческие условия:
Арендатора сеть магазинов Табака HiDar
МАП 273 000 руб, ДДА на 3 года.
Доходность 8,3%
Окупаемость 12 лет.
Стоимость объекта 39 300 000 рублей;
Стоимость 1 кв.м 2 339 285 рублей.

Технические характеристики

Тип здания: Арендный бизнес,С отдельным входом,Торговая

Общая площадь: 16.8  м2

Этаж: 1

Всего этажей: 31

Электрическая мощность: 15

Высота потолков: 3

Парковка: есть

Коммерческие условия

Цена за все: 39 300 000 RUB

ФОРМА ВЛАДЕНИЯ: собственность

Общий МАП: 273 000 RUB (данный МАП является минимальным, при оптимизации арендаторов арендный поток можно значительно увеличить)

Общий ГАП: 3 276 000 RUB

Окупаемость: 12 лет

Доходность: 8.33%

карта

Расположение

Адрес: Москва, Ярцевская ул., д.27 к1

Округ: Западный административный округ

Близость метро: Молодёжная

Транспортная доступность: м. Молодежная

Окружение

Торговое окружение: Магазины

Адрес:

Москва, Ярцевская ул., д.27 к1

Округ:

Западный административный округ

Близость метро:

Молодёжная

Транспортная доступность:

м. Молодежная

карта

Торговое окружение:

Магазины

Общая площадь:

16.8  м2

Этаж:

1

Всего этажей:

31

Тип:

Арендный бизнес,С отдельным входом,Торговая

Электрическая мощность:

15

Высота потолков:

3

Парковка:

есть

ФОРМА ВЛАДЕНИЯ:

собственность

Цена за все:

39 300 000 RUB

Общий МАП: 273 000

(данный МАП является минимальным, при оптимизации арендаторов арендный поток можно значительно увеличить)

Общий ГАП:

3 276 000

Окупаемость:

12 лет

Доходность:

8.33%

Планировка

Мурат

Ваш брокер по работе с клиентами

Найдите лучшее место
для жизни, бизнеса, инвестиций

Оставьте свои контакты — с вами свяжется руководитель отдела для презентации нужного вам объекта

Похожие объекты