Id 143861

Юных Ленинцев, д. 101 / 674.4 м2/ Продажа торгового помещения с арендатором Дикси, Билайн

адрес Москва, Кузьминки, ул. Юных Ленинцев, д. 101

Арендный бизнес
Многофункциональный
С отдельным входом
Торговая

Окупаемость: 7.9 лет

Доходность:12.63%

135 000 000 RUB | за все

(за 1 м2 — 200 178 RUB)

площадь 674.4 м2

QR код Qr код

Предлагается в продажу отдельно стоящее двухуровневое (подвал, первый этаж, антресоль первого этажа) капитальное строение с сетевыми арендаторами по адресу: Москва, Кузьминки, ул. Юных Ленинцев, д. 101
Предлагаемое отдельно стоящее здание расположено на первой линии домов в 15 минутах пешком от метро "Кузьминки".
Густонаселенный район, плотная жилая застройка, развитая инфраструктура.

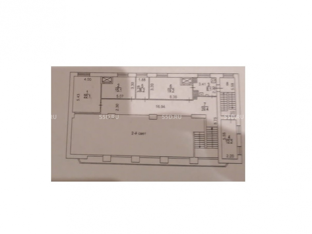
Технические характеристики: Общая площадь 674.4 кв.м. ; Высота потолков - 2.7 м.;
Электрическая мощность - 50 кВт; Помещение имеет два отдельных входа с улицы.
Осуществлялся ремонт в июле 2023г.
Крыша строения, техника и все необходимые коммуникации абсолютно новые.

Коммерческие условия:
• 1. Арендатор - сетевой супермаркет "Дикси" Занимает площадь 565.4 м2 . ДА на 10 лет
• МАП 1 210 000 рублей
• 2. Арендатор - "Билайн" . Договор аренды - на 1 год
• МАП 60 000 рублей
• 3. Арендатор - Пивной бар. Договор аренды на 1 год
МАП 85 000 рублей
• 4. Арендатор - Продажа одежды. Договор аренды на 1 год
МАП 70 000 рублей
• общий МАП 1 425 000 рублей, общий ГАП 17 100 000 рублей
• цена 135 000 000 рублей
• цена за кв.м. 200 177 рублей
• Окупаемость 7,8 лет
• продажа по ДКП (собственник юр. лицо)

Технические характеристики

Тип здания: Арендный бизнес,Многофункциональный,С отдельным входом,Торговая

Общая площадь: 674.4  м2

Этаж: 1

Всего этажей: 2

Электрическая мощность: 50

Высота потолков: 2,7

Парковка: открытая, общая

Коммерческие условия

Цена за все: 135 000 000 RUB

ФОРМА ВЛАДЕНИЯ: собственность

Общий МАП: 1 425 000 RUB (данный МАП является минимальным, при оптимизации арендаторов арендный поток можно значительно увеличить)

Общий ГАП: 17 100 000 RUB

Окупаемость: 7.9 лет

Доходность: 12.63%

карта

Расположение

Адрес: Москва, Кузьминки, ул. Юных Ленинцев, д. 101

Близость метро: Волжская,Кузьминки

Транспортная доступность: в 15 минутах пешком от метро

Окружение

Торговое окружение: --

Адрес:

Москва, Кузьминки, ул. Юных Ленинцев, д. 101

Округ:

Близость метро:

Волжская,Кузьминки

Транспортная доступность:

в 15 минутах пешком от метро

карта

Торговое окружение:

--

Общая площадь:

674.4  м2

Этаж:

1

Всего этажей:

2

Тип:

Арендный бизнес,Многофункциональный,С отдельным входом,Торговая

Электрическая мощность:

50

Высота потолков:

2,7

Парковка:

открытая, общая

ФОРМА ВЛАДЕНИЯ:

собственность

Цена за все:

135 000 000 RUB

Общий МАП: 1 425 000

(данный МАП является минимальным, при оптимизации арендаторов арендный поток можно значительно увеличить)

Общий ГАП:

17 100 000

Окупаемость:

7.9 лет

Доходность:

12.63%

Планировка

Никифоров Андрей

Ваш брокер по работе с клиентами

Найдите лучшее место
для жизни, бизнеса, инвестиций

Оставьте свои контакты — с вами свяжется руководитель отдела для презентации нужного вам объекта

Похожие объекты