Id 148692

Москва, НАО, ЖК Скандинавия корпус 36.1.1, ул. Эдварда Грига / 176.6 м² / Продажа ПСН

адрес проспект Куприна, 3к5

С отдельным входом
Торговая
Жилой комплекс (мфк)
Новостройка

48 736 302 RUB | за все

(за 1 м2 — 275 970 RUB)

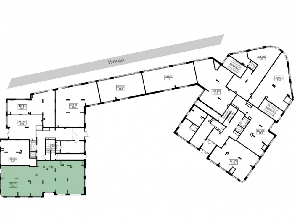
площадь 176.6 м2

QR код Qr код

Продажа помещения под общепит в ЖК "Скандинавия" корпус 36.1.1
Жилой Комплекс «Скандинавия» в Новой Москве - это 79 корпусов от 7 до 17 этажей.
Первое жиые площади сдали в 2020 году, а последние строят рядом со станцией метро «Потапово». Население порядка 70 тыс. жителей.
На юге комплекса ГК «А101» создаёт район бизнес-класса – со своей инфраструктурой, пешеходными пространствами и точками притяжения.

Транспортная доступность:
5 минут пешим ходом до станции метро «Потапово»
2 км – станция метро «Коммунарка»
2,5 км – станция метро «Бачуринская»
1,7 км – станция метро «Бунинская аллея»
6,4 км до МКАД
Удобный выезд на трассу СБВ (Солнцево – Бутово – Варшавское шоссе)

Технические характеристики:
1 этаж 17-ти этажного жилого дома, общей площадью 176.6 м², высота потолков 4,66 м, электрическая мощность 35.46 кВт, Две отдельные входные группы, витринное остекление, зальная планировка, нагрузка на пол 600 кг/м².

Коммерческие условия:
Стоимость объекта - 48 736 302 ₽
Стоимость объекта за м² - 275 970 ₽
Подробная презентация по запросу.

Технические характеристики

Тип здания: С отдельным входом,Торговая,Жилой комплекс (мфк),Новостройка

Общая площадь: 176.6  м2

Этаж: 1

Всего этажей: 17

Электрическая мощность: 35.46 кВт

Высота потолков: 4.25 м

Парковка: Подземная

Коммерческие условия

Цена за все: 48 736 302 RUB

ФОРМА ВЛАДЕНИЯ: -

карта

Расположение

Адрес: проспект Куприна, 3к5

Близость метро: Бунинская аллея

Транспортная доступность: 5 минут пешком до станции метро «Потапово».Удобный выезд на трассу СБВ (Солнцево – Бутово – Варшавское шоссе)

Окружение

Торговое окружение: На первых этажа заплниррован формат street retail.

Адрес:

проспект Куприна, 3к5

Округ:

Близость метро:

Бунинская аллея

Транспортная доступность:

5 минут пешком до станции метро «Потапово».Удобный выезд на трассу СБВ (Солнцево – Бутово – Варшавское шоссе)

карта

Торговое окружение:

На первых этажа заплниррован формат street retail.

Общая площадь:

176.6  м2

Этаж:

1

Всего этажей:

17

Тип:

С отдельным входом,Торговая,Жилой комплекс (мфк),Новостройка

Электрическая мощность:

35.46 кВт

Высота потолков:

4.25 м

Парковка:

Подземная

ФОРМА ВЛАДЕНИЯ:

-

Цена за все:

48 736 302 RUB

Планировка

Гервас Ксения

Ваш брокер по работе с клиентами

Найдите лучшее место
для жизни, бизнеса, инвестиций

Оставьте свои контакты — с вами свяжется руководитель отдела для презентации нужного вам объекта

Похожие объекты