Id 150377

ул. Обручева, 23 - 350м² / Продажа помещения свободного назначения / Торговое помещение

адрес ул. Обручева, 23

Многофункциональный
С отдельным входом
Торговая
Жилой комплекс (мфк)

176 245 000 RUB | за все

(за 1 м2 — 503 557 RUB)

площадь 350.0 м2

QR код Qr код

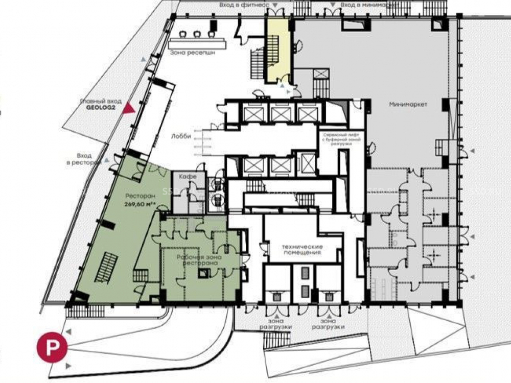
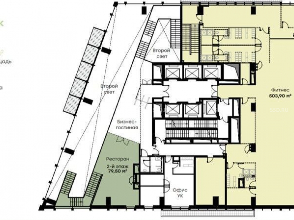
К продаже предлагается торговое помещение в Бизнес-центре «GEOLOG-2» по адресу: г. Москва, ЮЗАО, Обручевский район, ул. Обручева, 23. В шаговой доступности станции метро: Калужская – 7 мин. пешком, Воронцовская (БКЛ) – 8 мин. пешком. Бизнес-центр «GEOLOG-2» находится на Юго – Западе Москвы в одном из самых перспективных деловых районов столицы. Интенсивный пешеходный и автомобильный трафик. Удобный выезд на Ленинский проспект позволит быстро добраться до центра столицы. Развитая инфраструктура района.

Торговое окружение:
Рядом находится магазин цветов Лес, товары для отдыха и туризма Евро-Гриль, магазин кулинарии Милти, кафе Gold espresso, массажный салон Тайклуб, салон красоты Anytime.

Технические характеристики:
Общая площадь помещения 350 кв.м ,первый этаж. Отдельный вход. Витринное остекление. Высота потолков – 3,4 м. Электрическая мощность – 75кВт. Коммуникации: ГВС, ХВС, ГК. Центральная приточно-вытяжная вентиляция. Кондиционирование. Круглосуточная охрана. Видеонаблюдение. Лифты: 5 пассажирских. 4 уровня подземного паркинга. Место для размещения рекламы.

Коммерческие условия:
Стоимость объекта – 176 245 000 рублей.
Стоимость за 1 м² – 505 5000 рублей.
Ключи – сентябрь 2026 г.

Технические характеристики

Тип здания: Многофункциональный,С отдельным входом,Торговая,Жилой комплекс (мфк)

Общая площадь: 350  м2

Этаж: 1

Всего этажей: 22

Электрическая мощность: 75к

Высота потолков: 3.4

Парковка: на улице

Коммерческие условия

Цена за все: 176 245 000 RUB

ФОРМА ВЛАДЕНИЯ: ДДУ

карта

Расположение

Адрес: ул. Обручева, 23

Округ: Юго-Западный административный округ

Близость метро: Воронцовская,Калужская

Транспортная доступность: доступно

Окружение

Торговое окружение: развитая инфраструктура

Адрес:

ул. Обручева, 23

Округ:

Юго-Западный административный округ

Близость метро:

Воронцовская,Калужская

Транспортная доступность:

доступно

карта

Торговое окружение:

развитая инфраструктура

Общая площадь:

350  м2

Этаж:

1

Всего этажей:

22

Тип:

Многофункциональный,С отдельным входом,Торговая,Жилой комплекс (мфк)

Электрическая мощность:

75к

Высота потолков:

3.4

Парковка:

на улице

ФОРМА ВЛАДЕНИЯ:

ДДУ

Цена за все:

176 245 000 RUB

Шаклеина Юлия

Ваш брокер по работе с клиентами

Найдите лучшее место
для жизни, бизнеса, инвестиций

Оставьте свои контакты — с вами свяжется руководитель отдела для презентации нужного вам объекта

Похожие объекты