Id 152450

г.Москва, ЮЗАО, Знаменские Садки, 5б - 218 кв.м - Продажа / Торговая площадь в ТЦ Неринга

адрес г.Москва, ЮЗАО, Знаменские Садки, 5б

Арендный бизнес
С отдельным входом
Торговая
ТЦ

Окупаемость: 9.4 года

Доходность:10.62%

35 000 000 RUB | за все

(за 1 м2 — 160 550 RUB)

площадь 218.0 м2

QR код Qr код

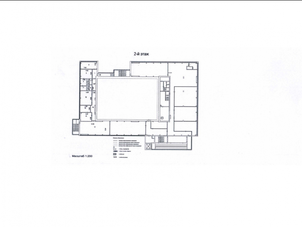
Продается помещение свободного назначения на втором этаже торгового центра «Неринга». Объект состоит из коридора и нескольких изолированных помещений, которые в настоящее время сданы в аренду и функционируют как школа рисования, шахматная школа, кабинет по изучению английского языка, магазин светового оборудования и магазин поискового оборудования.

Помещение имеет два отдельных входа со свободными входными группами внутри здания, а также выход на крышу. В составе объекта есть туалет, складские площади, используемые арендаторами, и административное помещение.

Все необходимые коммуникации находятся в исправном состоянии, установлена система видеонаблюдения. Торговый центр расположен в окружении жилого массива и объединяет различные магазины, кафе и отделение «Жилищника».

Арендаторы:
LingvoUP (школа иностранных языков)
Московская школа рисования/Московская Шахматная школа
ГуруСвет (магазин светотехники)
MDREGION (сетевой магазин поисковой техники)
МТС (размещения оборудования).

Полезная площадь 218 кв.м.
Помещение полностью локализовано и имеет две отдельных входных группы по 50 кв. м.
Мощность электроснабжения 23 кВт.
Высота потолков - 2,92 м.
Есть приточно-вытяжная вентиляция с водяным подогревом.

В настоящее время в помещении есть арендаторы: два онлайн продавца и две детских школы.
Месячный арендный поток 301 000 руб/мес.
Договоры аренды расторгаемый, с предупреждением за месяц.

Коммерческие условия:
Стоимость помещения - 35 000 000 рублей
Стоимость 1 кв.м. - 160 550 рублей
МАП: 311 000 рублей
ГАП: 3 732 000
Безусловная индексация 5%
Собственность - Юр.лицо
Форма сделки - ДКПН (УСН)

Технические характеристики

Тип здания: Арендный бизнес,С отдельным входом,Торговая,ТЦ

Общая площадь: 218  м2

Этаж: 2

Всего этажей: 2

Электрическая мощность: 23 кВт

Высота потолков: 2,92 м

Парковка: есть

Коммерческие условия

Цена за все: 35 000 000 RUB

ФОРМА ВЛАДЕНИЯ: ООО

Общий МАП: 311 000 RUB (данный МАП является минимальным, при оптимизации арендаторов арендный поток можно значительно увеличить)

Общий ГАП: 3 732 000 RUB

Окупаемость: 9.4 года

Доходность: 10.62%

карта

Расположение

Адрес: г.Москва, ЮЗАО, Знаменские Садки, 5б

Округ: Юго-Западный административный округ

Близость метро: Бульвар Дмитрия Донского,Улица Старокачаловская

Транспортная доступность: Ближайшая станция метро: Бульвар Дмитрия Донского.

Окружение

Торговое окружение: Развитое. Помещение в составе ТЦ.

Адрес:

г.Москва, ЮЗАО, Знаменские Садки, 5б

Округ:

Юго-Западный административный округ

Близость метро:

Бульвар Дмитрия Донского,Улица Старокачаловская

Транспортная доступность:

Ближайшая станция метро: Бульвар Дмитрия Донского.

карта

Торговое окружение:

Развитое. Помещение в составе ТЦ.

Общая площадь:

218  м2

Этаж:

2

Всего этажей:

2

Тип:

Арендный бизнес,С отдельным входом,Торговая,ТЦ

Электрическая мощность:

23 кВт

Высота потолков:

2,92 м

Парковка:

есть

ФОРМА ВЛАДЕНИЯ:

ООО

Цена за все:

35 000 000 RUB

Общий МАП: 311 000

(данный МАП является минимальным, при оптимизации арендаторов арендный поток можно значительно увеличить)

Общий ГАП:

3 732 000

Окупаемость:

9.4 года

Доходность:

10.62%

Планировка

Александр Невский

Ваш брокер по работе с клиентами

Найдите лучшее место
для жизни, бизнеса, инвестиций

Оставьте свои контакты — с вами свяжется руководитель отдела для презентации нужного вам объекта

Похожие объекты