Id 152474

Москва, ул. Малая Очаковская, д.1 / 85.3 кв.м кв.м. /Продажа ПСН в ЖК Бизнес-класса Страна Озерная

адрес Москва, Малая Очаковская улица, 1

Торговая
Жилой комплекс (мфк)
Новостройка

63 975 000 RUB | за все

(за 1 м2 — 750 000 RUB)

площадь 85.3 м2

QR код Qr код

Продажа торгового помещения по адресу: Москва, Озёрная 42. Жилой комплекс бизнес-класса на 1240 квартир на Западе Москвы. 1,6 км от МКАД, развитый жилой массив. 2 минуты пешком до метро "Озерная"
Ввод в эксплуатацию - 2 кв. 2026 г.
Помещение расположено на первом этаже в доме с подземным паркингом. Место для рекламной вывески на фасаде, большие рекламные возможности. Отличная визуализация. Отдельный вход со стороны улицы Малая Очаковская.

Технические характеристики:
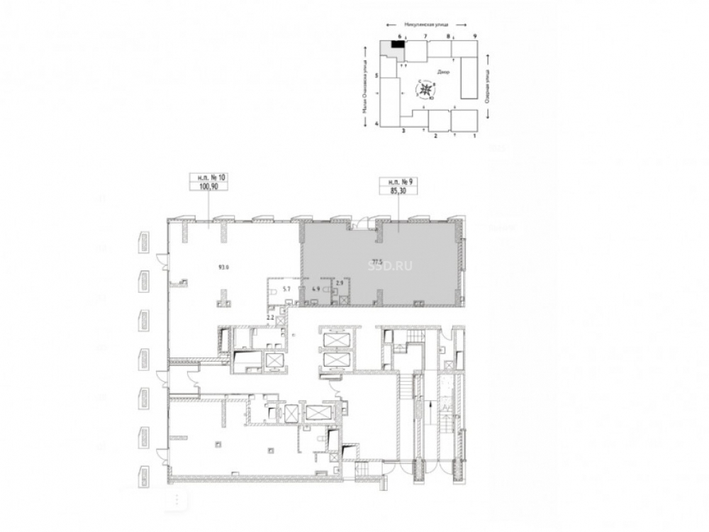
1 этаж, 1 линия. Общая площадь 85.3 кв.м.
Витринное остекление по фасаду.
Мокрая точка.
Электрическая мощность - по запросу.
Высота потолков 4,8.
Без отделки.

Коммерческие условия:
Стоимость покупки - 63 975 000 рублей
Стоимость за кв.м - 750 000 рублей
ДДУ

Технические характеристики

Тип здания: Торговая,Жилой комплекс (мфк),Новостройка

Общая площадь: 85.3  м2

Этаж: 1

Всего этажей: 30

Электрическая мощность: по запросу

Высота потолков: 4,8 м

Парковка: Паркинг под помещением

Коммерческие условия

Цена за все: 63 975 000 RUB

ФОРМА ВЛАДЕНИЯ: -

карта

Расположение

Адрес: Москва, Малая Очаковская улица, 1

Округ: Юго-Западный административный округ

Близость метро: Озёрная

Транспортная доступность: 1,6 км от МКАД, на машине путь до центра Москвы 33 минуты. 2 минуты пешком до метро

Окружение

Торговое окружение: Развитое

Адрес:

Москва, Малая Очаковская улица, 1

Округ:

Юго-Западный административный округ

Близость метро:

Озёрная

Транспортная доступность:

1,6 км от МКАД, на машине путь до центра Москвы 33 минуты. 2 минуты пешком до метро

карта

Торговое окружение:

Развитое

Общая площадь:

85.3  м2

Этаж:

1

Всего этажей:

30

Тип:

Торговая,Жилой комплекс (мфк),Новостройка

Электрическая мощность:

по запросу

Высота потолков:

4,8 м

Парковка:

Паркинг под помещением

ФОРМА ВЛАДЕНИЯ:

-

Цена за все:

63 975 000 RUB

Планировка

Мурат

Ваш брокер по работе с клиентами

Найдите лучшее место
для жизни, бизнеса, инвестиций

Оставьте свои контакты — с вами свяжется руководитель отдела для презентации нужного вам объекта

Похожие объекты