Id 154150

Москва, Ленинский проспект, д. 95/475м2/Продажа торгового помещения с рестораном

адрес Москва, Ленинский проспект, д. 95

Арендный бизнес
Торговая
Общепит

Окупаемость: 10.6 лет

Доходность:9.45%

160 000 000 RUB | за все

(за 1 м2 — 336 842 RUB)

площадь 475.0 м2

QR код Qr код

Предлагается в продажу помещение с действующим рестораном по Адресу: г. Москва, ЮЗАО, Ломоносовский район, Ленинский проспект, д. 95. Непосредственно напротив станции метро: Новаторская. Престижное местоположение и высокий пешеходный и автомобильный трафик создают отличные условия для успешного развития вашего бизнеса.

Сложившееся торговое окружние.

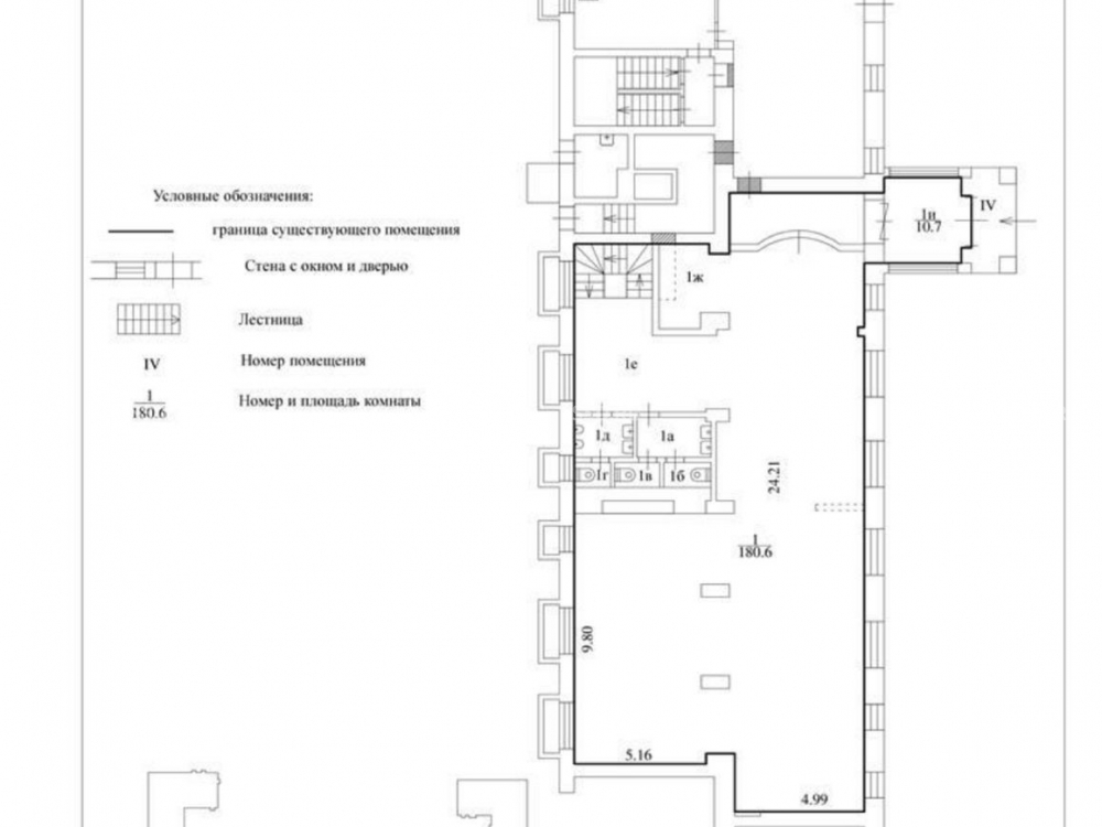
Технические характеристики: Общая площадь: 475 кв.м (площадь первый этаж/цоколь), встроенно пристроенная часть 8 этажного жилого дома 1960 года постройки. Отдельный вход с улицы. Витринные окна. Высота потолков – 3 м. Электрическая мощность – 80 кВт. Мокрая точка. Приточно-вытяжная система вентиляции. Бесплатная парковка на 15 автомобилей.

Коммерческие условия:
• Арендатор: Сетевой ресторан, арендует помещение с 2008 года, длительный договор аренды до 2028 года.
• МАП 1.260.000 рублей / ГАП 15.120.000 рублей
• Безусловная ежегодная индексация 5%
• Стоимость 160 000 000 рублей
• Стоимость кв.м. 336 800 рублей
• Продажа по ДКП от физ. лица

Технические характеристики

Тип здания: Арендный бизнес,Торговая,Общепит

Общая площадь: 475  м2

Этаж: 1

Всего этажей: 20

Электрическая мощность: 80 кВт

Высота потолков:

Парковка: На улице

Коммерческие условия

Цена за все: 160 000 000 RUB

ФОРМА ВЛАДЕНИЯ: Собственность

Окупаемость: 10.6 лет

Доходность: 9.45%

карта

Расположение

Адрес: Москва, Ленинский проспект, д. 95

Округ: Юго-Западный административный округ

Близость метро: Новаторская,Новые черемушки

Транспортная доступность: Метро Новаторская

Окружение

Торговое окружение: Магазины

Адрес:

Москва, Ленинский проспект, д. 95

Округ:

Юго-Западный административный округ

Близость метро:

Новаторская,Новые черемушки

Транспортная доступность:

Метро Новаторская

карта

Торговое окружение:

Магазины

Общая площадь:

475  м2

Этаж:

1

Всего этажей:

20

Тип:

Арендный бизнес,Торговая,Общепит

Электрическая мощность:

80 кВт

Высота потолков:

Парковка:

На улице

ФОРМА ВЛАДЕНИЯ:

Собственность

Цена за все:

160 000 000 RUB

Окупаемость:

10.6 лет

Доходность:

9.45%

Гуда Алексей

Ваш брокер по работе с клиентами

Найдите лучшее место
для жизни, бизнеса, инвестиций

Оставьте свои контакты — с вами свяжется руководитель отдела для презентации нужного вам объекта

Похожие объекты