Id 159820

Ленинский пр-т, 38 - 531.8 кв. м. - Продажа / Помещение под ресторан

адрес Москва, Ленинский проспект, 38

С отдельным входом
Торговая
Общепит

414 953 000 RUB | за все

(за 1 м2 — 771 288 RUB)

площадь 538.0 м2

QR код Qr код

Продажа готового помещения под ресторан в здании «Lunar».
Адрес: Москва, ЮЗАО, Гагаринский район, Ленинский проспект, 38. Первая линия главной магистрали с интенсивным автомобильным трафиком. 10 мин. пешком до м. «Ленинский проспект», 20 мин. — до м. «Воробьёвы горы». Остановка общественного транспорта у дома. Район с развитой инфраструктурой и высокой концентрацией платежеспособной аудитории (жители, сотрудники офисов, студенты).

Технические характеристики:
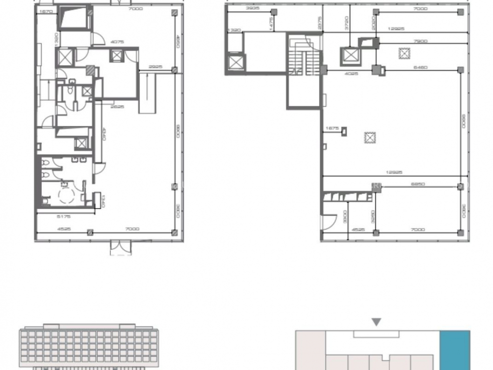
Общая площадь: 531,8 м² (1-й и 2-й этажи). Два отдельных входа, витринное остекление по фасаду.
Высота потолков: 4.40 – 4.70 м. Электрическая мощность: 305 кВт. Инженерия:
ХОЛОДОСНАБЖЕНИЕ:
 ФАНКОЙЛЫ: 91 928 Вт
 ПРИТОЧНАЯ ВЕНТИЛЯЦИЯ (ЗАЛ): 10 180 Вт
 ЭЛЕКТРОСНАБЖЕНИЕ: 305,32 кВт
 ВВОД 1: 158,39 кВт
 ВВОД 2: 146,92 кВт

ВЫТЯЖНАЯ ВЕНТИЛЯЦИЯ:
** ОТ 3 ВЫТЯЖНЫХ УСТАНОВОК- 8 420 м3 / ч**
 ВЫТЯЖКА ИЗ ГОРЯЧЕГО ЦЕХА: - 7140 м3 / ч
 ВЫТЯЖКА ИЗ САНУЗЛОВ: - 280 м3 / ч
 ОБЩЕОБМЕННАЯ ВЫТЯЖКА: - 1000 м3 / ч

Подведены центральные системы вентиляции и кондиционирования, ГВС, ХВС, отопление.
Помещение оснащено под ресторан: предчистовая отделка, кухонный лифт для связи между этажами.
Двухуровневый подземный паркинг на 381 место.
Безопасность: Круглосуточная охрана, видеонаблюдение, система контроля доступа.

Коммерческие условия:
Стоимость: 414 953 000 рублей .
Ставка за 1 кв. м.: 770 000 рублей в год (вкл. НДС).
Стоимость обсуждается с каждым покупателем индивидуально.

Технические характеристики

Тип здания: С отдельным входом,Торговая,Общепит

Общая площадь: 538  м2

Этаж: 1

Всего этажей: 17

Электрическая мощность: 350 кВт

Высота потолков: 4.40 - 4.70 м

Парковка: двухуровневый паркинг на 381 мест

Коммерческие условия

Цена за все: 414 953 000 RUB

ФОРМА ВЛАДЕНИЯ: по запросу

карта

Расположение

Адрес: Москва, Ленинский проспект, 38

Округ: Юго-Западный административный округ

Близость метро: Воробьёвы горы,Ленинский проспект

Транспортная доступность: в пешей доступности

Окружение

Торговое окружение: развитое торговое окружение

Адрес:

Москва, Ленинский проспект, 38

Округ:

Юго-Западный административный округ

Близость метро:

Воробьёвы горы,Ленинский проспект

Транспортная доступность:

в пешей доступности

карта

Торговое окружение:

развитое торговое окружение

Общая площадь:

538  м2

Этаж:

1

Всего этажей:

17

Тип:

С отдельным входом,Торговая,Общепит

Электрическая мощность:

350 кВт

Высота потолков:

4.40 - 4.70 м

Парковка:

двухуровневый паркинг на 381 мест

ФОРМА ВЛАДЕНИЯ:

по запросу

Цена за все:

414 953 000 RUB

Планировка

Виталий

Ваш брокер по работе с клиентами

Найдите лучшее место
для жизни, бизнеса, инвестиций

Оставьте свои контакты — с вами свяжется руководитель отдела для презентации нужного вам объекта

Похожие объекты