Id 154182

Москва, Скаковая ул., 34к3 / Продажа / Готовый арендный бизнес / 161 кв.м.

адрес Москва, Скаковая ул., 34к3

Арендный бизнес
Многофункциональный
С отдельным входом
Торговая

Окупаемость: 12.3 лет

Доходность:8.11%

34 000 000 RUB | за все

(за 1 м2 — 210 657 RUB)

площадь 161.4 м2

QR код Qr код

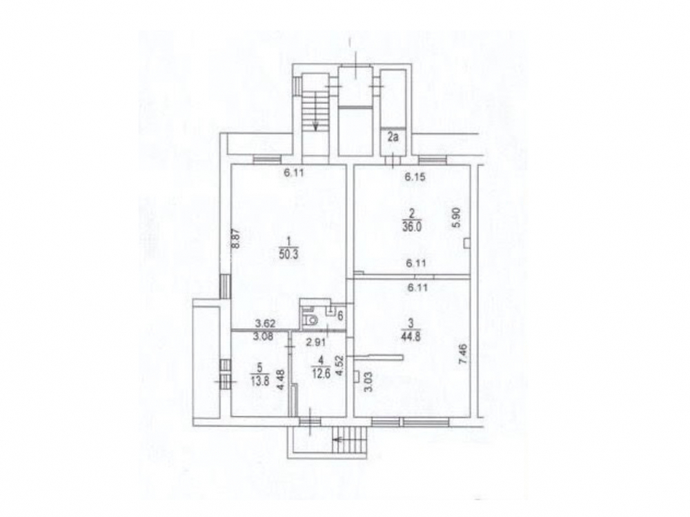
Предлагается к продаже помещение арендного бизнеса, по адресу: Москва, Скаковая ул., 34к3, площадью 161.4 кв.м.

Ближайшая станция метро - м. Белорусская, 10 минут пешком. Торговое окружение: Магнит, Агроторг, Азбука вкуса, ВкусВилл, кофейни и рестораны. Помещение расположено на 1 этаже жилого 16-этажного дома. Крупный жилой массив. Магазин широко пользуется спросом у местных жителей.

Технические характеристики:
Общая площадь на 1 этаже - 161.4 кв.м. Отдельный вход с фасада + отдельный вход со двора. Наличие мокрой точки. Мощность выделенной электросети 30 кВт. Высота потолков - 2.8 м. Заключены прямые договоры с ресурсноснабжающими организациями.

Коммерческие условия:
Стоимость: 34 000 000 рублей.
Стоимость за кв.м: 210 656 рублей.

Арендатор: Красное Белое
МАП: 230 000 рублей.
ГАП: 2 760 000 рублей.
Окупаемость: 12.4 лет.
Срок договора: 15 лет

Продажа через ДКП. Быстрый выход на сделку.

Технические характеристики

Тип здания: Арендный бизнес,Многофункциональный,С отдельным входом,Торговая

Общая площадь: 161.4  м2

Этаж: 1

Всего этажей: 16

Электрическая мощность: 30 кВт

Высота потолков: 2.8 м.

Парковка: Есть

Коммерческие условия

Цена за все: 34 000 000 RUB

ФОРМА ВЛАДЕНИЯ: ООО на УСН

Общий МАП: 230 000 RUB (данный МАП является минимальным, при оптимизации арендаторов арендный поток можно значительно увеличить)

Общий ГАП: 2 760 000 RUB

Окупаемость: 12.3 лет

Доходность: 8.11%

карта

Расположение

Адрес: Москва, Скаковая ул., 34к3

Округ: Северный административный округ

Близость метро: Белорусская

Транспортная доступность: Ближайшая станция метро - м. Белорусская, 10 минут пешком.

Окружение

Торговое окружение: Магнит, Агроторг, Азбука вкуса, ВкусВилл, кофейни и рестораны.

Адрес:

Москва, Скаковая ул., 34к3

Округ:

Северный административный округ

Близость метро:

Белорусская

Транспортная доступность:

Ближайшая станция метро - м. Белорусская, 10 минут пешком.

карта

Торговое окружение:

Магнит, Агроторг, Азбука вкуса, ВкусВилл, кофейни и рестораны.

Общая площадь:

161.4  м2

Этаж:

1

Всего этажей:

16

Тип:

Арендный бизнес,Многофункциональный,С отдельным входом,Торговая

Электрическая мощность:

30 кВт

Высота потолков:

2.8 м.

Парковка:

Есть

ФОРМА ВЛАДЕНИЯ:

ООО на УСН

Цена за все:

34 000 000 RUB

Общий МАП: 230 000

(данный МАП является минимальным, при оптимизации арендаторов арендный поток можно значительно увеличить)

Общий ГАП:

2 760 000

Окупаемость:

12.3 лет

Доходность:

8.11%

Планировка

Павел

Ваш брокер по работе с клиентами

Найдите лучшее место
для жизни, бизнеса, инвестиций

Оставьте свои контакты — с вами свяжется руководитель отдела для презентации нужного вам объекта

Похожие объекты