Id 154754

Москва, ЦАО, Грузинский Вал 14/ 273,1 м2 /Аренда нежилого помещения (ПСН) с ремонтом

адрес Москва, ЦАО, Грузинский Вал 14

С отдельным входом
Торговая
Офис
Жилой комплекс (мфк)

800 000 RUB | в месяц

(за 1 м2 — 2 929 RUB)

площадь 273.1 м2

QR код Qr код

Предлагается в аренду нежилое помещение, расположенное по адресу: г. Москва, ЦАО, Грузинский Вал 14.
Станция метро "Белорусская" расположена в 5 минутах пешком.
В непосредственной близости жилой массив премиум класса и достопримечательности города. Интенсивный пешеходный туристический трафик.
Сложившееся торговое окружение, развитая инфраструктура. Недавно построен Бизнес центр класса А «AFI Square».
Первая линия домов. Напротив большая парковка.

Характеристика объекта:
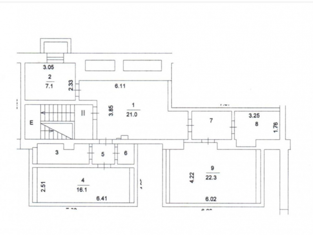
Помещение общей площадью 273 м2, в двух уровнях (1-й этaж 177,5 кв.м., пoдвaл 95,6 кв.м). 6-этажного жилого дома.
Входные группы: вход с ул. Грузинский Вал и вход из двора дома. Зона разгрузки: со двора дома.
Витринные окна, зальная планировка, эл. мощность 30 кВт. Высота потолков: 1 этаж - 4,26 м, подвал - 2.4 м.
Выполнен стильный ремонт.
Помещение оборудовано системами охраны, вентиляции, кондиционирования. Установлено 10 камер видеонаблюдения. В наличии 3 кассовых узла, депозитарий, всё сертифицировано.
Возможно размещение вывески на фасаде.

Коммерческие условия:
Стоимость аренды: 800 000 рублей;
Стоимость за 1 кв.м/мес.: 2 929 рублей.
Залог: 800 000 рублей.

Технические характеристики

Тип здания: С отдельным входом,Торговая,Офис,Жилой комплекс (мфк)

Общая площадь: 273.1  м2

Этаж: 1

Всего этажей: 6

Электрическая мощность: 30 кВт

Высота потолков: 1 этаж - 4,26 м, подвал - 2.4 м

Парковка: есть

Коммерческие условия

Цена в месяц: 800 000 RUB

ФОРМА ВЛАДЕНИЯ: Физ.лицо

карта

Расположение

Адрес: Москва, ЦАО, Грузинский Вал 14

Округ: Центральный административный округ

Близость метро: Белорусская

Транспортная доступность: м. Белорусская в 5 минутах пешком.

Окружение

Торговое окружение: развитое

Адрес:

Москва, ЦАО, Грузинский Вал 14

Округ:

Центральный административный округ

Близость метро:

Белорусская

Транспортная доступность:

м. Белорусская в 5 минутах пешком.

карта

Торговое окружение:

развитое

Общая площадь:

273.1  м2

Этаж:

1

Всего этажей:

6

Тип:

С отдельным входом,Торговая,Офис,Жилой комплекс (мфк)

Электрическая мощность:

30 кВт

Высота потолков:

1 этаж - 4,26 м, подвал - 2.4 м

Парковка:

есть

ФОРМА ВЛАДЕНИЯ:

Физ.лицо

Цена в месяц:

800 000 RUB

Планировка

Инна Васильева

Ваш брокер по работе с клиентами

Найдите лучшее место
для жизни, бизнеса, инвестиций

Оставьте свои контакты — с вами свяжется руководитель отдела для презентации нужного вам объекта

Похожие объекты