Id 154953

Автомобильный проезд, 4 - 158 кв. м. - Продажа / Помещение свободного назначения (ПСН)

адрес Москва, Автомобильный проезд, 4

Многофункциональный
С отдельным входом
Торговая
Жилой комплекс (мфк)
Новостройка

65 617 400 RUB | за все

(за 1 м2 — 415 300 RUB)

площадь 158.0 м2

QR код Qr код

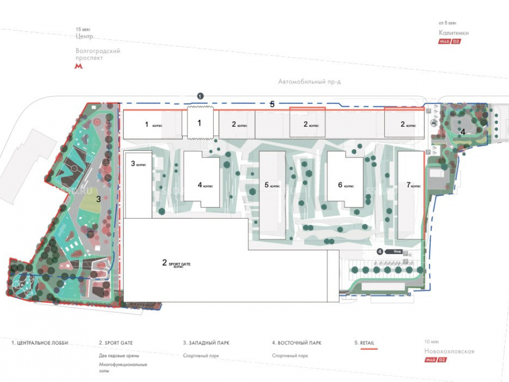
Продажа помещения свободного назначения в апарт – комплексе бизнес-класса N`ICE LOFT по адресу: г. Москва, Нижегородский район, проезд Автомобильный, 4.

Ближайшие станции метро: Волгоградский проспект – 10 мин. транспортом, ст. Калитники (линия D2) – 8 мин. ходьбы. За 10 минут на машине можно добраться до Садового Кольца, за 6 мин. на машине до Таганского парка.

Помещение в центре квартала.

N`ICE LOFT – комплекс апартаментов бизнес-класса на границе Таганского и Нижегородского районов Москвы. Помимо жилых корпусов на территории будут построены полноценные спортивные зоны и ледовые арены. Уникальный в своем роде проект подобного масштаба, объединяющий апартаменты, спорт и офисы. Комплекс состоит из 7 корпусов, в которые войдут 2240 апартаментов. Территория площадью 2,7 га создана по всем современным законам урбанистики и направлена на максимальный инфраструктурный комфорт резидентов. Продуманная среда обеспечит не только непрерывный процесс циркуляции клиентских потоков внутри комплекса, но и станет точкой притяжении 3 соседствующих районов численность которых составляет 280 тыс. человек. 15 000 жителей проживает в радиусе 1,5 км. Стабильный пешеходный трафик.

Корпус сдан.

Торговое окружение:
Рядом расположены пиццерия Фигаро, магазин белья и купальников Би Ангел корсет, музыкальный магазин Allb Music, столовая Еда по-домашнему, магазин галантереи и аксессуаров Оптекс-Рус, магазин мебели, кафе, магазин чая Altai herb, супермаркет Перекресток, магазин продуктов Торговый Дом Лабаз.

Технические характеристики:
Общая площадь помещения – 157,98 кв. м., 1 этаж. Отдельный вход. Витринные окна. Потолки – 3,1 м. Электрическая мощность – 21,5 кВт. Центральные коммуникации (ГВС / ХВС, канализация, отопление). На подземном уровне ЖК есть паркинг на 140 мест с автомойкой и станциями для электрокаров.

Рекомендованный формат: медицинская лаборатория.

Коммерческие условия:
Стоимость объекта – 65 617 400 рублей.
Стоимость за 1 кв. м. – 415 300 рублей.
Возможна рассрочка.

Технические характеристики

Тип здания: Многофункциональный,С отдельным входом,Торговая,Жилой комплекс (мфк),Новостройка

Общая площадь: 158  м2

Этаж: 1

Всего этажей: 21

Электрическая мощность: 21.5 кВт

Высота потолков: 3,1 м

Парковка: есть

Коммерческие условия

Цена за все: 65 617 400 RUB

ФОРМА ВЛАДЕНИЯ: -

карта

Расположение

Адрес: Москва, Автомобильный проезд, 4

Округ: Юго-Восточный административный округ

Близость метро: Волгоградский проспект,Калитники

Транспортная доступность: Ближайшие станции метро: Волгоградский проспект – 10 мин. транспортом, ст. Калитники (линия D2) – 8 мин. ходьбы. За 10 минут на машине можно добраться до Садового Кольца, за 6 мин. на машине до Таганского парка.

Окружение

Торговое окружение: Рядом расположены пиццерия Фигаро, магазин белья и купальников Би Ангел корсет, музыкальный магазин Allb Music, столовая Еда по-домашнему, магазин галантереи и аксессуаров Оптекс-Рус, магазин мебели, кафе, магазин чая Altai herb, супермаркет Перекресток,

Адрес:

Москва, Автомобильный проезд, 4

Округ:

Юго-Восточный административный округ

Близость метро:

Волгоградский проспект,Калитники

Транспортная доступность:

Ближайшие станции метро: Волгоградский проспект – 10 мин. транспортом, ст. Калитники (линия D2) – 8 мин. ходьбы. За 10 минут на машине можно добраться до Садового Кольца, за 6 мин. на машине до Таганского парка.

карта

Торговое окружение:

Рядом расположены пиццерия Фигаро, магазин белья и купальников Би Ангел корсет, музыкальный магазин Allb Music, столовая Еда по-домашнему, магазин галантереи и аксессуаров Оптекс-Рус, магазин мебели, кафе, магазин чая Altai herb, супермаркет Перекресток,

Общая площадь:

158  м2

Этаж:

1

Всего этажей:

21

Тип:

Многофункциональный,С отдельным входом,Торговая,Жилой комплекс (мфк),Новостройка

Электрическая мощность:

21.5 кВт

Высота потолков:

3,1 м

Парковка:

есть

ФОРМА ВЛАДЕНИЯ:

-

Цена за все:

65 617 400 RUB

Планировка

Гервас Ксения

Ваш брокер по работе с клиентами

Найдите лучшее место
для жизни, бизнеса, инвестиций

Оставьте свои контакты — с вами свяжется руководитель отдела для презентации нужного вам объекта

Похожие объекты