Id 155792

ул. Академика Королева, 3 - 241,4 кв. м. - Продажа / Торговое помещение

адрес Москва, улица Академика Королёва, 3

С отдельным входом
Торговая

80 000 000 RUB | за все

(за 1 м2 — 331 400 RUB)

площадь 241.4 м2

QR код Qr код

Продажа торгового помещения в престижном районе Москвы. Адрес: г. Москва, СВАО, район Останкинский, ул. Академика Королева, 3. Идеальная транспортная доступность: 6 минут пешком до м. «ВДНХ», 21-30 мин пешком до м. «Алексеевская» и «Останкино». 1-я линия домов. Плотная жилая застройка с высоким пешеходным трафиком. Остановка общественного транспорта у дома (автобусы, троллейбусы). Развитая инфраструктура района.

Торговое окружение:
Рядом расположены: магазины «Ароматный мир», «КуулКлевер», «МясновЪОтдохни», художественный салон, магазин цветов, аптека Столички, кофейня, салон красоты, пункт выдачи Wildberries и другие.

Технические характеристики:
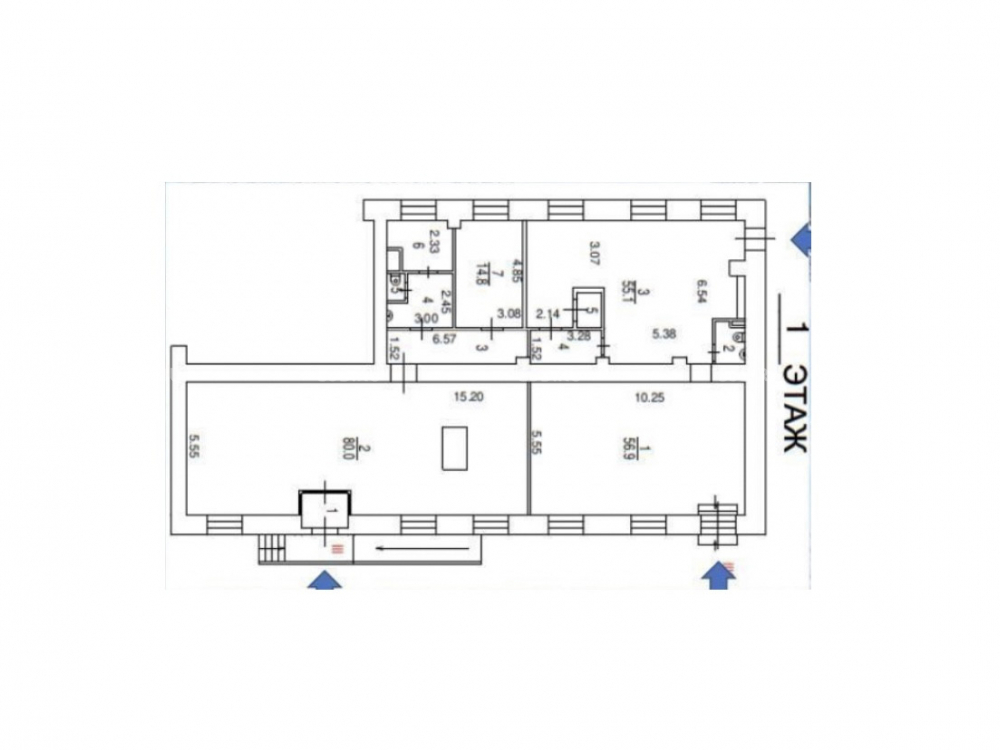
Общая площадь: 241,4 кв. м. Возможность разделения на 2 независимых блока по ~120 кв. м каждый. 1 этаж жилого дома с тремя входами (2 с улицы, 1 с торца). Витринное остекление по фасаду. Готовая отделка (подходит для любого бизнеса). Высота потолков: 3 м. Электрическая мощность: 30 кВт. Все центральные коммуникации. Собственная парковка (в т.ч. для грузового транспорта).

Текущее использование: помещение арендует сеть аптек «Ригла». Возможно свободное оформление (договор аренды расторгается с уведомлением за 1 месяц).

Коммерческие условия:
Стоимость объекта: 80 000 000 рублей.
Стоимость за 1 кв. м.: 331 400 рублей.

Технические характеристики

Тип здания: С отдельным входом,Торговая

Общая площадь: 241.4  м2

Этаж: 1

Всего этажей: 8

Электрическая мощность: 30 кВт

Высота потолков: 3 м

Парковка: наземная

Коммерческие условия

Цена за все: 80 000 000 RUB

ФОРМА ВЛАДЕНИЯ: собственность

карта

Расположение

Адрес: Москва, улица Академика Королёва, 3

Округ: Северо-Восточный административный округ

Близость метро: Алексеевская,ВДНХ,Останкино

Транспортная доступность: в пешей доступности

Окружение

Торговое окружение: магазины, пункт выдачи, салоны красоты и т.д.

Адрес:

Москва, улица Академика Королёва, 3

Округ:

Северо-Восточный административный округ

Близость метро:

Алексеевская,ВДНХ,Останкино

Транспортная доступность:

в пешей доступности

карта

Торговое окружение:

магазины, пункт выдачи, салоны красоты и т.д.

Общая площадь:

241.4  м2

Этаж:

1

Всего этажей:

8

Тип:

С отдельным входом,Торговая

Электрическая мощность:

30 кВт

Высота потолков:

3 м

Парковка:

наземная

ФОРМА ВЛАДЕНИЯ:

собственность

Цена за все:

80 000 000 RUB

Планировка

Степанов Анатолий

Ваш брокер по работе с клиентами

Найдите лучшее место
для жизни, бизнеса, инвестиций

Оставьте свои контакты — с вами свяжется руководитель отдела для презентации нужного вам объекта

Похожие объекты