Id 155959

ул. Обручева, 23 - 522,1 кв. м. - Продажа / Помещение свободного назначения

адрес Москва, улица Обручева, 23

Бизнес центр
С отдельным входом
Торговая

221 892 500 RUB | за все

(за 1 м2 — 425 000 RUB)

площадь 522.1 м2

QR код Qr код

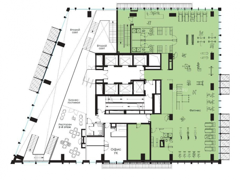
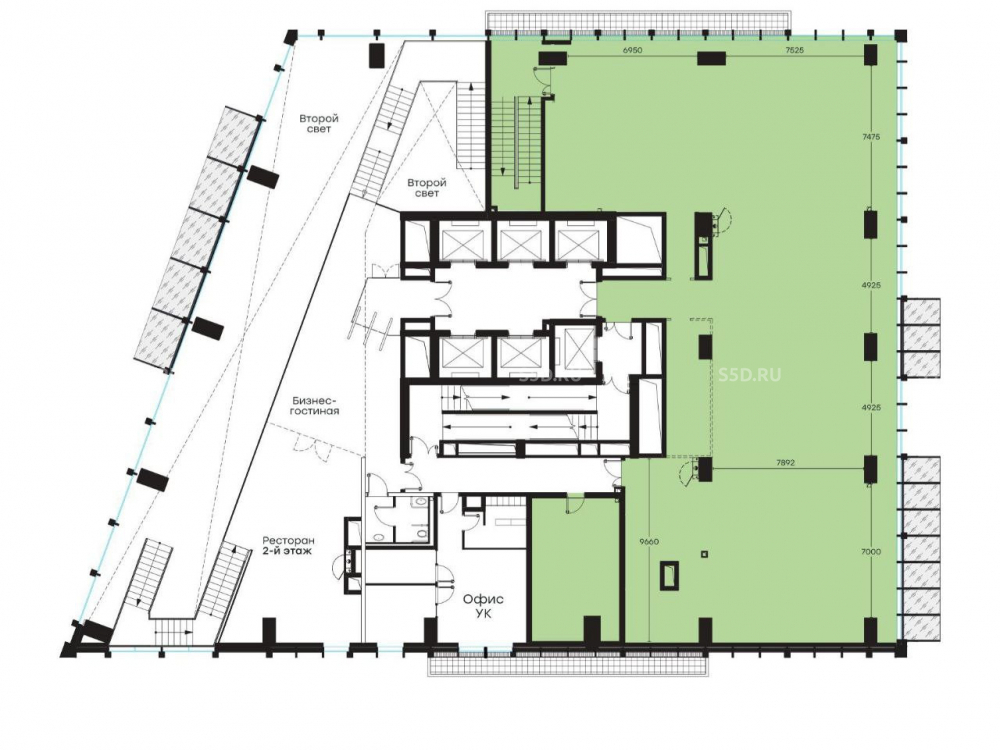
Продажа торгового помещения в бизнес-центре «GEOLOG2». Адрес: Москва, ЮЗАО, Обручевский район, ул. Обручева, 23. Престижный район, вторая линия. Бизнес-центр «GEOLOG2» – это современный комплекс класса «А», находится между Ленинским и Севастопольским проспектами, на пересечении улиц Обручева и Профсоюзной, что обеспечивает отличную транспортную доступность: пешая доступность до станций метро «Калужская» и «Воронцовская» (5–7 минут). Высокая проходимость, развитая инфраструктура (торговые центры, банки, кафе, офисы).

Технические характеристики:
Общая площадь: 522,10 кв. м (1-2 этажи). Остекление: витражное, панорамное. Высота потолков: 3,5-4 м. Электрическая мощность: 72 кВт. Отделка: SHELL & CORE (готовность под чистовую отделку). Вентиляция: Приточная – 2950 м³/ч, вытяжная – 3350 м³/ч. Коммуникации: Центральные системы кондиционирования, ГВС, ХВС, ГК. Четырехуровневый подземный паркинг. Безопасность обеспечивается круглосуточной охраной, видеонаблюдением и пропускной системой. Независимый сервисный лифт и буферная зона разгрузки.

Помещение идеально подходит для:
Фитнес-центра (благодаря высокой мощности и вентиляции).
Торговой галереи, ресторана, медицинского центра.

Коммерческие условия:
Стоимость объекта: 221 892 500 рублей.
Стоимость за 1 кв. м.: 425 000 рублей.
Продажа по ДДУ.
Срок реализации проекта ГЕОЛОГ-2 - в ДДУ прописана дата передачи ключей до 30.09.2026
Сдача идет с опережением указанных сроков.

Технические характеристики

Тип здания: Бизнес центр,С отдельным входом,Торговая

Общая площадь: 522.1  м2

Этаж: 1

Всего этажей: 18

Электрическая мощность: 72 кВт

Высота потолков: 3.5 - 4 м

Парковка: подземный паркинг

Коммерческие условия

Цена за все: 221 892 500 RUB

ФОРМА ВЛАДЕНИЯ: собственность

карта

Расположение

Адрес: Москва, улица Обручева, 23

Округ: Юго-Западный административный округ

Близость метро: Воронцовская,Калужская

Транспортная доступность: в пешей доступности

Окружение

Торговое окружение: развитое торговое окружение

Адрес:

Москва, улица Обручева, 23

Округ:

Юго-Западный административный округ

Близость метро:

Воронцовская,Калужская

Транспортная доступность:

в пешей доступности

карта

Торговое окружение:

развитое торговое окружение

Общая площадь:

522.1  м2

Этаж:

1

Всего этажей:

18

Тип:

Бизнес центр,С отдельным входом,Торговая

Электрическая мощность:

72 кВт

Высота потолков:

3.5 - 4 м

Парковка:

подземный паркинг

ФОРМА ВЛАДЕНИЯ:

собственность

Цена за все:

221 892 500 RUB

Планировка

Виталий

Ваш брокер по работе с клиентами

Найдите лучшее место
для жизни, бизнеса, инвестиций

Оставьте свои контакты — с вами свяжется руководитель отдела для презентации нужного вам объекта

Похожие объекты