Id 156832

Москва, Лихоборская набережная, 11 - 6382,7 кв.м/ Продажа здания

адрес Москва, Лихоборская набережная, 11

Особняк/здание
Офис
Редевелопмент
Отель/Хостел
Склад

1 595 675 000 RUB | за все

(за 1 м2 — 250 000 RUB)

площадь 6 382.7 м2

QR код Qr код

Продажа зданию (не входит в КРТ) по адресу Москва, Лихоборская набережная, 11 СЗАО.
Участок не входит в КРТ.
Первая линия Лихоборской набережной. Охраняемая территория, въезд через ворота.
Удобный съезд с СВХ (МСД).
20 мин. пешком до ст. МЦК/МЦД «Лихоборы»

Технические характеристики:
Год постройки здания 1982. ЗУ (59 327 м²) ВРИ Эксплуатация завода.
8 этажей. подвал – 359,6 кв.м., цоколь – 1282,9 кв.м., тех.подвал – 381,4 кв.м.

Материал стен и перекрытий Крупнопанель и Ж/б. Высота потолков, м: 2,7-5,5 м.
Коммуникации • ХВС, ГВС • Канализация • Электроэнергия (150 кВт) • Отопление от газ.котельной.
Количество входных групп: 10 шт.
Количество мокрых точек: 15 шт.
Наземная парковка.

Категория объекта: офис, склад.

Коммерческие условия:
Стоимость объекта: 1 595 675 000 руб. вкл НДС.
Стоимость кв.м.: 250 000 руб. вкл НДС.
Собственник юр. лицо.

Технические характеристики

Тип здания: Особняк/здание,Офис,Редевелопмент,Отель/Хостел,Склад

Общая площадь: 6382.7  м2

Этаж: 1

Всего этажей: 4

Электрическая мощность: 150 кВт

Высота потолков: 2,7-3,9 м

Парковка: есть

Коммерческие условия

Цена за все: 1 595 675 000 RUB

ФОРМА ВЛАДЕНИЯ: Юр.лицо

карта

Расположение

Адрес: Москва, Лихоборская набережная, 11

Округ: Северо-Западный административный округ

Близость метро: Лихоборы

Транспортная доступность: Удобный съезд с СВХ (МСД). 20 мин. пешком до ст. МЦК/МЦД Лихоборы

Окружение

Торговое окружение: -

Адрес:

Москва, Лихоборская набережная, 11

Округ:

Северо-Западный административный округ

Близость метро:

Лихоборы

Транспортная доступность:

Удобный съезд с СВХ (МСД). 20 мин. пешком до ст. МЦК/МЦД Лихоборы

карта

Торговое окружение:

-

Общая площадь:

6382.7  м2

Этаж:

1

Всего этажей:

4

Тип:

Особняк/здание,Офис,Редевелопмент,Отель/Хостел,Склад

Электрическая мощность:

150 кВт

Высота потолков:

2,7-3,9 м

Парковка:

есть

ФОРМА ВЛАДЕНИЯ:

Юр.лицо

Цена за все:

1 595 675 000 RUB

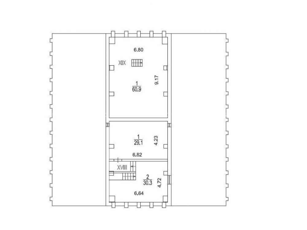
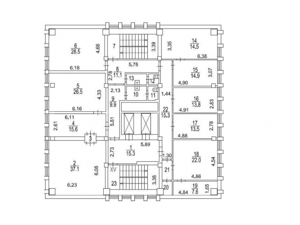
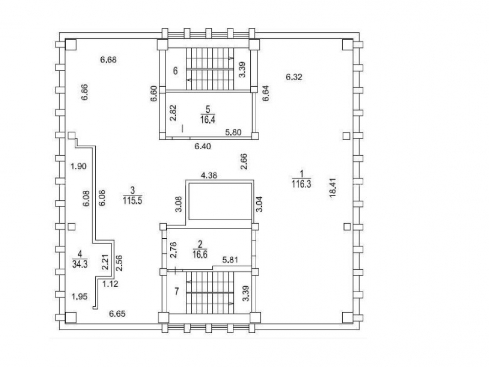
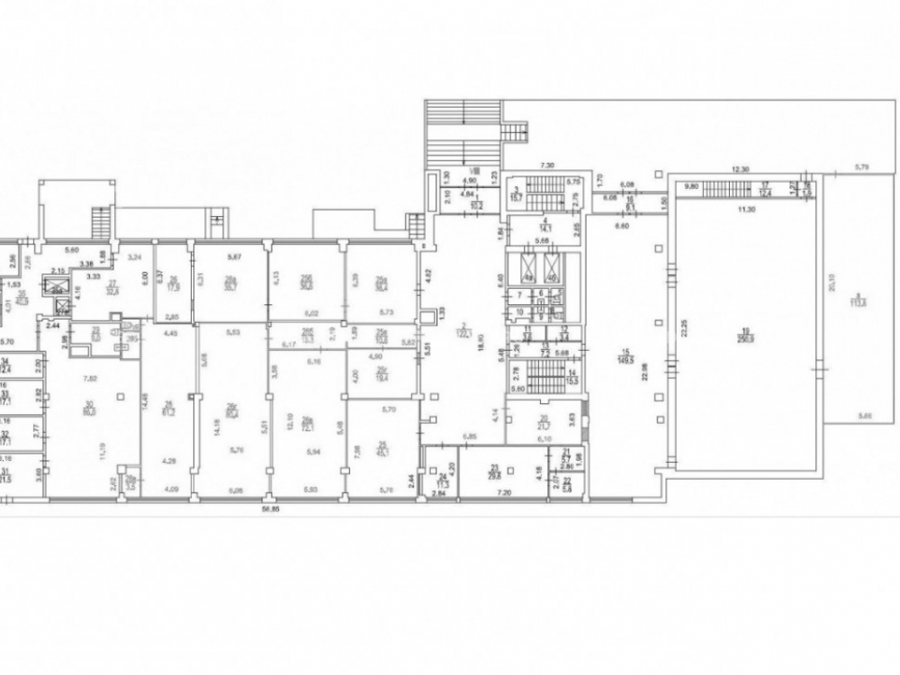
Планировка

Гервас Ксения

Ваш брокер по работе с клиентами

Найдите лучшее место
для жизни, бизнеса, инвестиций

Оставьте свои контакты — с вами свяжется руководитель отдела для презентации нужного вам объекта

Похожие объекты