Id 156986

Москва, Электродная, 2/ 12 / 2653 кв.м /Аренда/Автосервис/Склад/Производство

адрес Москва, Электродная улица, 2с14

С отдельным входом
Автобизнес
Склад

3 690 000 RUB | в месяц

(за 1 м2 — 1 391 RUB)

площадь 2 653.0 м2

QR код Qr код

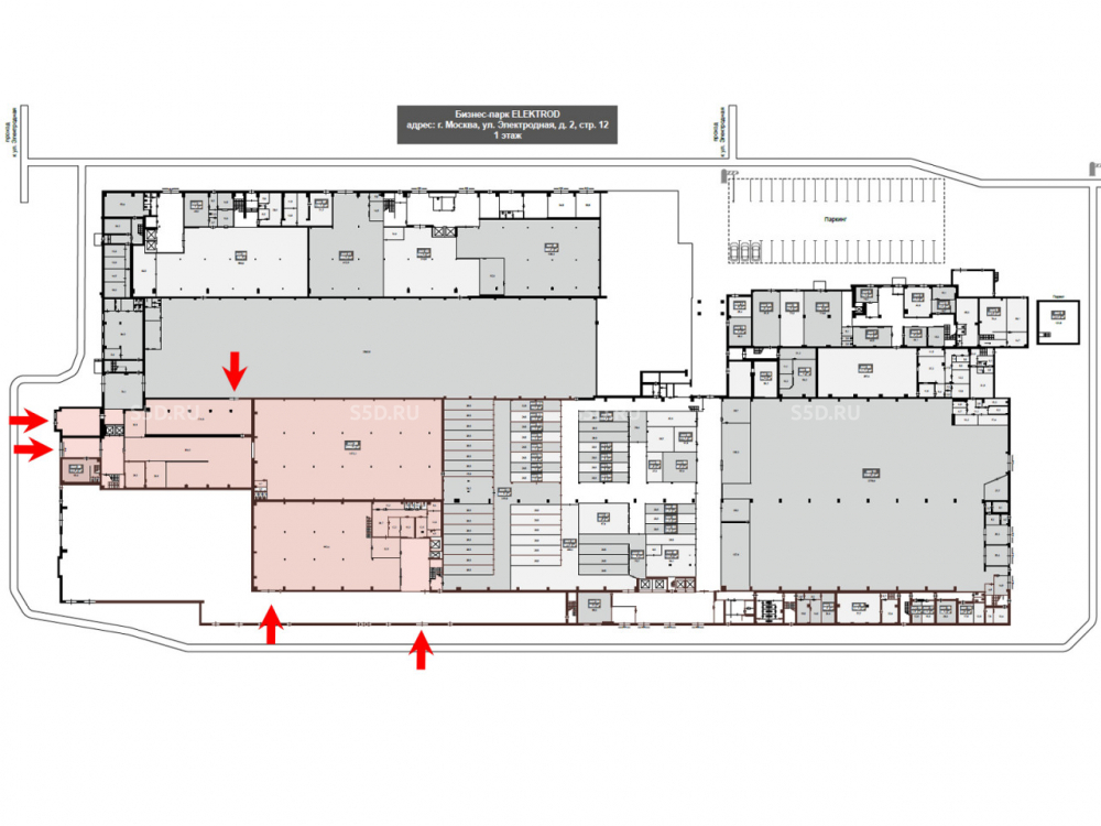
Предлагается в аренду помещение площадью 2653 кв.м по адресу: г.Москва, СВАО, Электродная, 2/ 12, на первом этаже производственно-складского комплекса общей площадью 40 000 кв.м. Удобно расположено - всего 500 м от метро Шоссе Энтузиастов (7 минут пешком), съезд на территорию с ул. Электродная.

Технические характеристики:
- Общая площадь: 2653 кв.м, включая производственно-складскую зальную часть и офисную зону.
- Высота 6 м
- Теплое помещение, отопление с собственной котельной
- Электрическая мощность 300 кВт, резерв до 1 МВт.
- 2 отдельных въезда для большегрузных автомобилей и длинномеров, 3 отдельных входа, первый этаж.
- Доступ 24/7, охраняемая и огороженная территория, круглосуточное видеонаблюдение
- Отличная транспортная доступность, возможность быстро добраться без светофоров в любой район Москвы

Коммерческие условия:
Стоимость аренды с НДС: 3 690 000 руб./мес.
Стоимость за кв.м с НДС: 1391 руб.

Помещение идеально подходит для компаний, которым необходим теплый склад и производственная зона с высоким энергопотреблением и удобной логистикой. Расположение в престижном районе Москвы, близость транспорта и развитая инфраструктура делают объект удобным и функциональным для разных бизнес-задач.

Технические характеристики

Тип здания: С отдельным входом,Автобизнес,Склад

Общая площадь: 2653  м2

Этаж: 1

Всего этажей: 1

Электрическая мощность: 150 кВт

Высота потолков: 6 м.

Парковка: На территории

Коммерческие условия

Цена в месяц: 3 690 000 RUB

ФОРМА ВЛАДЕНИЯ: Юр. Лицо

карта

Расположение

Адрес: Москва, Электродная улица, 2с14

Округ: Северо-Восточный административный округ

Близость метро: Шоссе Энтузиастов

Транспортная доступность: В 300 метрах от метро Шоссе Энтузиастов

Окружение

Торговое окружение: более 300 компаний на территории бизнес-парка и производственно-складского комплекса

Адрес:

Москва, Электродная улица, 2с14

Округ:

Северо-Восточный административный округ

Близость метро:

Шоссе Энтузиастов

Транспортная доступность:

В 300 метрах от метро Шоссе Энтузиастов

карта

Торговое окружение:

более 300 компаний на территории бизнес-парка и производственно-складского комплекса

Общая площадь:

2653  м2

Этаж:

1

Всего этажей:

1

Тип:

С отдельным входом,Автобизнес,Склад

Электрическая мощность:

150 кВт

Высота потолков:

6 м.

Парковка:

На территории

ФОРМА ВЛАДЕНИЯ:

Юр. Лицо

Цена в месяц:

3 690 000 RUB

Планировка

Евгений Артемьев

Ваш брокер по работе с клиентами

Найдите лучшее место
для жизни, бизнеса, инвестиций

Оставьте свои контакты — с вами свяжется руководитель отдела для презентации нужного вам объекта

Похожие объекты