Id 157209

г. Зеленоград, пр-кт Генерала Алексеева, ЖК Гостиничный комплекс Сигма Силино/ 634.1 м²./ ПСН/ Продажа

адрес Зеленоград, проспект Генерала Алексеева

Многофункциональный

117 301 100 RUB | за все

(за 1 м2 — 185 018 RUB)

площадь 634.0 м2

QR код Qr код

Предлагается к продаже коммерческое помещение свободного назначения по адресу г. Зеленоград, пр-кт Генерала Алексеева, ЖК Гостиничный комплекс Сигма Силино, 634.1 м². Проект представляет собой апарт-отель бизнес-класса с круглосуточным обслуживанием, соответствующий уровню 4 звезды. Комплекс состоит из двух корпусов высотой 14 этажей, объединенных общим стилобатом.
Апарт-отель расположен в районе Силино Зеленоградского административного округа Москвы. Комплекс находится рядом с инновационным кластером «Технополис Москва» — активно развивающейся экономической зоной. В 5 минутах пешком находится автобусная остановка «Алабушевская улица». В 5 минутах на автомобиле — ж/д платформа Алабушево, в 10 минутах — МЦД «Зеленоград-Крюково». За 30 минут можно доехать на автомобиле до международного аэропорта Шереметьево или до МКАД по трассе М-11.

Торговое окружение:
Магнит, Сбербанк.

Технические характеристики:
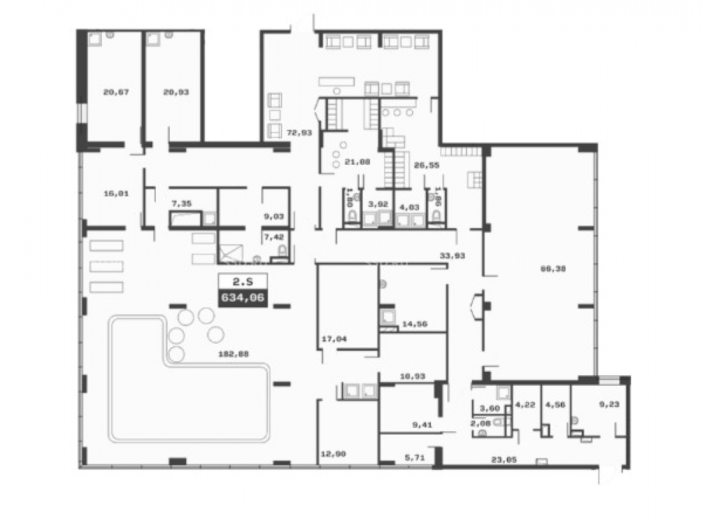
Площадь - 634.1 м²., располагается на 2 этаже, отдельный вход , высота потолков - 3.02 м., без отделки.

Коммерческие условия:
Стоимость объекта - 117 301 100 руб.
Стоимость за 1 кв.м - 185 000 руб.
Срок сдачи 4 кв. 2026

Технические характеристики

Тип здания: Многофункциональный

Общая площадь: 634  м2

Этаж: 2

Всего этажей: 2

Электрическая мощность: -

Высота потолков: -

Парковка: -

Коммерческие условия

Цена за все: 117 301 100 RUB

ФОРМА ВЛАДЕНИЯ: -

карта

Расположение

Адрес: Зеленоград, проспект Генерала Алексеева

Округ: Северо-Западный административный округ

Близость метро: Планерная

Транспортная доступность: -

Окружение

Торговое окружение: -

Адрес:

Зеленоград, проспект Генерала Алексеева

Округ:

Северо-Западный административный округ

Близость метро:

Планерная

Транспортная доступность:

-

карта

Торговое окружение:

-

Общая площадь:

634  м2

Этаж:

2

Всего этажей:

2

Тип:

Многофункциональный

Электрическая мощность:

-

Высота потолков:

-

Парковка:

-

ФОРМА ВЛАДЕНИЯ:

-

Цена за все:

117 301 100 RUB

Планировка

Шаклеина Юлия

Ваш брокер по работе с клиентами

Найдите лучшее место
для жизни, бизнеса, инвестиций

Оставьте свои контакты — с вами свяжется руководитель отдела для презентации нужного вам объекта

Похожие объекты