Id 158078

ул. Костикова, 4к1 - 126 кв. м. - Аренда / Помещение свободного назначения

адрес Москва, улица Костикова, 4к1

Многофункциональный
С отдельным входом
Торговая
Офис
Жилой комплекс (мфк)

1 500 000 RUB | в месяц

(за 1 м2 — 11 905 RUB)

площадь 126.0 м2

QR код Qr код

Аренда премиального помещения у метро «Улица 1905 года».
Уникальное предложение! Сдаем в аренду современное помещение площадью 126 кв. м с отдельным входом в элитном жилом квартале LUCKY на Пресне. Адрес: г. Москва, ЦАО, Пресненский район, ул. Костикова, 4к1. Идеальное расположение в 200 метрах от метро «Улица 1905 года». Престижный Пресненский район - центр деловой жизни Москвы. Близость к Москва-Сити, ТТК и Садовому кольцу. Высокая проходимость и платежеспособная аудитория. Статусное окружение бизнес-центров и жилых комплексов.

Технические характеристики:
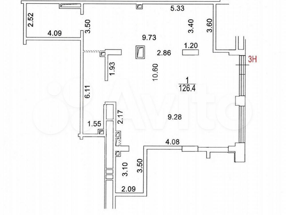
Общая площадь: 126 кв. м на первом этаже. Функциональная антресоль (40%): дополнительные 51 кв. м – под офис, склад, зону отдыха или мастерскую. Отдельный вход с улицы. Витринное остекление. Высота потолков: 6 м. Состояние: Чистовая отделка. Раннее был офис продаж. Коммуникации: Максимальная электрическая мощность: 25,72 кВт. Приточно-вытяжная вентиляция. Система кондиционирования. Противопожарная сигнализация.

Помещение идеально подойдет для премиального ритейла, шоу-рума, салона красоты премиум-класса, кофейни или представительского офиса.

Коммерческие условия:
Арендная ставка: 1 500 000 рублей в месяц.
Ставка за 1 кв. м. в месяц: 12 000 рублей.
Ставка за 1 кв. м. в год: 144 000 рублей.
Тип аренды: Прямая.
Залог: 0.5 месяца.

Технические характеристики

Тип здания: Многофункциональный,С отдельным входом,Торговая,Офис,Жилой комплекс (мфк)

Общая площадь: 126  м2

Этаж: 1

Всего этажей: 21

Электрическая мощность: 25,72 кВт

Высота потолков: 6 м

Парковка: по запросу

Коммерческие условия

Цена в месяц: 1 500 000 RUB

ФОРМА ВЛАДЕНИЯ: по запросу

карта

Расположение

Адрес: Москва, улица Костикова, 4к1

Округ: Центральный административный округ

Близость метро: Улица 1905 года

Транспортная доступность: в пешей доступности

Окружение

Торговое окружение: развитое торговое окружение

Адрес:

Москва, улица Костикова, 4к1

Округ:

Центральный административный округ

Близость метро:

Улица 1905 года

Транспортная доступность:

в пешей доступности

карта

Торговое окружение:

развитое торговое окружение

Общая площадь:

126  м2

Этаж:

1

Всего этажей:

21

Тип:

Многофункциональный,С отдельным входом,Торговая,Офис,Жилой комплекс (мфк)

Электрическая мощность:

25,72 кВт

Высота потолков:

6 м

Парковка:

по запросу

ФОРМА ВЛАДЕНИЯ:

по запросу

Цена в месяц:

1 500 000 RUB

Планировка

Инна Васильева

Ваш брокер по работе с клиентами

Найдите лучшее место
для жизни, бизнеса, инвестиций

Оставьте свои контакты — с вами свяжется руководитель отдела для презентации нужного вам объекта

Похожие объекты