Id 159792

Москва, ул.Зеленодольская, д.41к1 - 1300 кв.м. - Продажа ОСЗ

адрес Москва, Зеленодольская улица, 41к1

Арендный бизнес
С отдельным входом
Торговая
Общепит
ТЦ

Окупаемость: 8.3 лет

Доходность:12.12%

450 000 000 RUB | за все

(за 1 м2 — 346 154 RUB)

площадь 1 300.0 м2

QR код Qr код

Продажа ОСЗ у метро Кузьминки по адресу: Москва, ул Зеленодольская, д.41к1.
Здание расположено на первой линии, от метро Кузьминки 2 минуты пешком, плотный жилой массив, интенсивный пешеходный трафик.
Удобный выезд на Волгоградский проспект, рядом остановки общественного транспорта.

Технические характеристики:
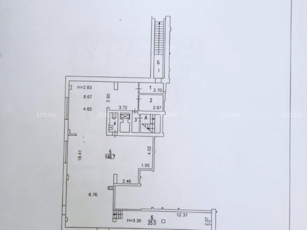
Площадь здания - 1300 кв.м., количество этажей -2 + цоколь. Площадь ЗУ - 1047 кв.м.
Два отдельных входа с фасада, зальная планировка, витринное остекление, высота потолков: 3,35 метров, эл. мощность - 141 кВт, на территории есть парковка на 10 мест.

Коммерческие условия:
Стоимость объекта: 450 000 000 рублей
Арендаторы: кафе Ферагна, Медицинский центр, магазин одежды и обуви, магазин одежды "Смешные цены", Ломбард, Чайхана, Парикмахерская
Совокупный МАП - 4 589 800 рублей / ГАП - 55 077 600 рублей
Индексация - 7-10%, Договора заключены на 5-10 лет, коммунальные платежи оплачивают арендаторы.
Окупаемость: 9 лет / Доходность 12%

Технические характеристики

Тип здания: Арендный бизнес,С отдельным входом,Торговая,Общепит,ТЦ

Общая площадь: 1300  м2

Этаж: 1

Всего этажей: 2

Электрическая мощность: 141 кВт

Высота потолков: 3.35

Парковка: на 10 мест

Коммерческие условия

Цена за все: 450 000 000 RUB

ФОРМА ВЛАДЕНИЯ: Физ.лицо

Общий МАП: 4 589 800 RUB (данный МАП является минимальным, при оптимизации арендаторов арендный поток можно значительно увеличить)

Общий ГАП: 55 077 600 RUB

Окупаемость: 8.3 лет

Доходность: 12.12%

карта

Расположение

Адрес: Москва, Зеленодольская улица, 41к1

Округ: Восточный административный округ

Близость метро: Кузьминки

Транспортная доступность: -

Окружение

Торговое окружение: -

Адрес:

Москва, Зеленодольская улица, 41к1

Округ:

Восточный административный округ

Близость метро:

Кузьминки

Транспортная доступность:

-

карта

Торговое окружение:

-

Общая площадь:

1300  м2

Этаж:

1

Всего этажей:

2

Тип:

Арендный бизнес,С отдельным входом,Торговая,Общепит,ТЦ

Электрическая мощность:

141 кВт

Высота потолков:

3.35

Парковка:

на 10 мест

ФОРМА ВЛАДЕНИЯ:

Физ.лицо

Цена за все:

450 000 000 RUB

Общий МАП: 4 589 800

(данный МАП является минимальным, при оптимизации арендаторов арендный поток можно значительно увеличить)

Общий ГАП:

55 077 600

Окупаемость:

8.3 лет

Доходность:

12.12%

Планировка

Евгений

Ваш брокер по работе с клиентами

Найдите лучшее место
для жизни, бизнеса, инвестиций

Оставьте свои контакты — с вами свяжется руководитель отдела для презентации нужного вам объекта

Похожие объекты