Id 160694

Вишневая улица 7, мультиквартал СитиДзен - 103.1 м² / Продажа помещения свободного назначения

адрес Москва, ЖК Ситидзен, к3

С отдельным входом
Торговая
Жилой комплекс (мфк)

77 325 000 RUB | за все

(за 1 м2 — 750 000 RUB)

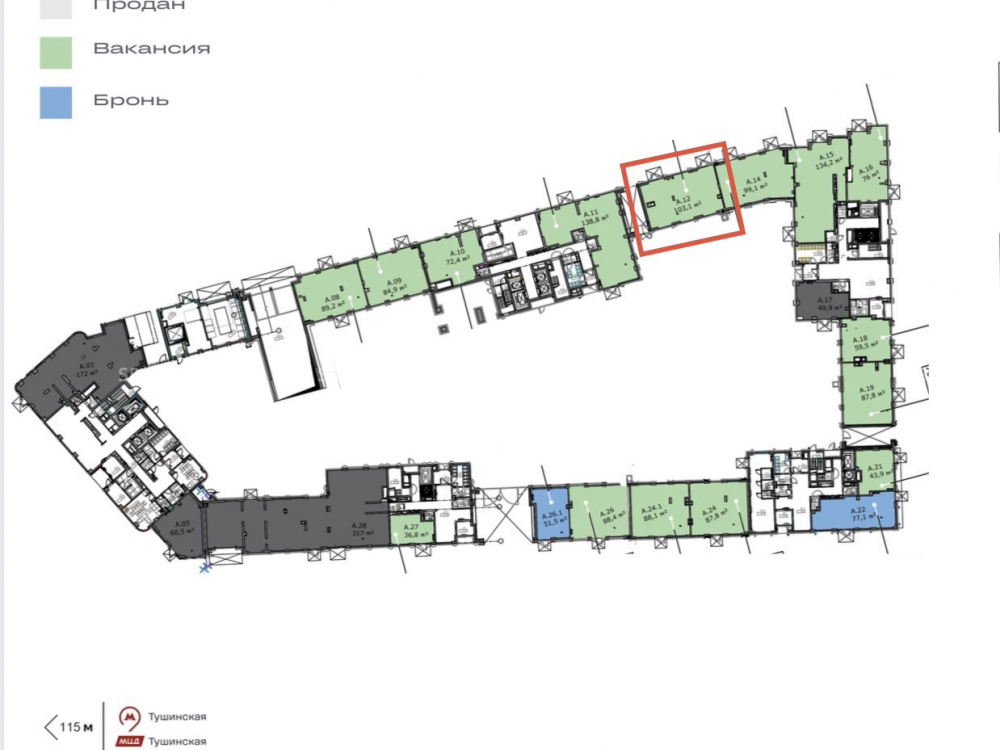
площадь 103.1 м2

QR код Qr код

Продажа помещения свободного назначения в Мультиквартале Сити Дзен, по адресу: город Москва, район Покровское-Стрешнево, Вишневая улица 7, корпус Парус.
Всего квартир в 1-й очереди - 1 574. Всего жителей в 1-й очереди - 3 935 человек.
Общее число жителей при полном заселении всех очередей - 25 500 человек.


Технические характеристики:
Общая площадь 103.1 м². 1-й этаж жилого дома. 2 отдельных входа с улицы. Высота потолков более 5 м. Все центральные коммуникации. Панорамное остекление. Возможность организации рекламной вывески.


Коммерческие условия:
Стоимость объекта - 77 325 000 руб.
Стоимость за м² - 750 000 руб.
Продажа по ДДУ.
Ключи 1-й квартал 2028 год.

Технические характеристики

Тип здания: С отдельным входом,Торговая,Жилой комплекс (мфк)

Общая площадь: 103.1  м2

Этаж: 1

Всего этажей: 19

Электрическая мощность: -

Высота потолков: 5 метров.

Парковка: Подземный паркинг

Коммерческие условия

Цена за все: 77 325 000 RUB

ФОРМА ВЛАДЕНИЯ: Продажа по ДДУ.

карта

Расположение

Адрес: Москва, ЖК Ситидзен, к3

Округ: Северо-Западный административный округ

Близость метро: Тушинская

Транспортная доступность: 3 минуты от станции метро Тушинская. 6 минут от Волоколамского шоссе. 8 минут от МКАДа.

Окружение

Торговое окружение: -

Адрес:

Москва, ЖК Ситидзен, к3

Округ:

Северо-Западный административный округ

Близость метро:

Тушинская

Транспортная доступность:

3 минуты от станции метро Тушинская. 6 минут от Волоколамского шоссе. 8 минут от МКАДа.

карта

Торговое окружение:

-

Общая площадь:

103.1  м2

Этаж:

1

Всего этажей:

19

Тип:

С отдельным входом,Торговая,Жилой комплекс (мфк)

Электрическая мощность:

-

Высота потолков:

5 метров.

Парковка:

Подземный паркинг

ФОРМА ВЛАДЕНИЯ:

Продажа по ДДУ.

Цена за все:

77 325 000 RUB

Планировка

Лев

Ваш брокер по работе с клиентами

Найдите лучшее место
для жизни, бизнеса, инвестиций

Оставьте свои контакты — с вами свяжется руководитель отдела для презентации нужного вам объекта

Похожие объекты