Id 985

Аптекарский переулок, д. 13 к. 15 - 130 кв.м. / Продажа готового арендного бизнеса / Учебный центр.

адрес Москва, ЦАО, Аптекарский переулок 13к15

Арендный бизнес
С отдельным входом
Торговая

Окупаемость: 10.6 лет

Доходность:9.45%

40 000 000 RUB | за все

(за 1 м2 — 307 692 RUB)

площадь 130.0 м2

QR код Qr код

Продажа готового арендного бизнеса с арендатором учебный центр, по адресу: г. Москва, Аптекарский переулок 13 к. 15, ЦАО, район Басманный. Исторический район со сложившейся инфраструктурой. Пешая доступность от станции метро Бауманская. Активный пешеходный трафик. Городской паркинг рядом с помещением.

Торговое окружение:
Кафе Братья Караваевы, ВкусВилл, Столичный гардероб, Сбербанк, Пятёрочка, Красное и белое, кафе-рестораны по ул. Бауманская.

Технические характеристики:
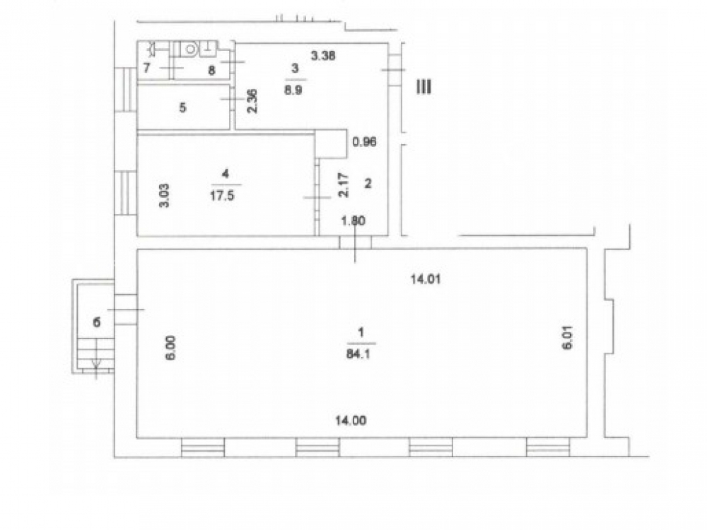
Общая площадь 130 кв.м., цокольный этаж с полноценными окнами, 5-этажный кирпичный жилой дом. Отдельный вход с 1 линии, дополнительный со двора. Своя входная группа с крыльцом и тамбуром. Все коммуникации центральные, система вентиляции и кондиционирования, потолки - 2, 80 м. Круглосуточный доступ. Открытая планировка. Состояние помещения с ремонтом в стиле лофт. В интерьере присутствует кирпич. Выделенная мощность электроэнергии 45 кВт. Дом не входит в программу реновации.

Коммерческие условия:
Стоимость - 40 000 000 руб. (УСН)
Стоимость за 1 кв.м - 310 077 руб.
Арендатор -учебный центр.
МАП: 315 000 руб.
ГАП: 3 780 000 руб.
КДА с 2018г. с автоматической пролонгацией до марта 2026г.
Ежегодная индексация 5%.
Окупаемость - 10.6 лет
Доходность 9.4 % годовых.
Коммунальные платежи оплачиваются арендатором отдельно.
Форма собственности - физлицо.
Форма продажи - ДКПН

Технические характеристики

Тип здания: Арендный бизнес,С отдельным входом,Торговая

Общая площадь: 130  м2

Этаж: -1

Всего этажей: 5

Электрическая мощность: 45 кВт

Высота потолков: 2.8м

Парковка: городская

Коммерческие условия

Цена за все: 40 000 000 RUB

ФОРМА ВЛАДЕНИЯ: ИП

Общий МАП: 315 000 RUB (данный МАП является минимальным, при оптимизации арендаторов арендный поток можно значительно увеличить)

Общий ГАП: 3 780 000 RUB

Окупаемость: 10.6 лет

Доходность: 9.45%

карта

Расположение

Адрес: Москва, ЦАО, Аптекарский переулок 13к15

Округ: Центральный административный округ

Близость метро: Бауманская

Транспортная доступность: 5 минут пешком от м.Бауманская

Окружение

Торговое окружение: Братья Караваевы, ВкусВилл, Столичный гардероб, Сбербанк, Пятёрочка, Красное и белое, кафе-рестораны по ул. Бауманская.

Адрес:

Москва, ЦАО, Аптекарский переулок 13к15

Округ:

Центральный административный округ

Близость метро:

Бауманская

Транспортная доступность:

5 минут пешком от м.Бауманская

карта

Торговое окружение:

Братья Караваевы, ВкусВилл, Столичный гардероб, Сбербанк, Пятёрочка, Красное и белое, кафе-рестораны по ул. Бауманская.

Общая площадь:

130  м2

Этаж:

-1

Всего этажей:

5

Тип:

Арендный бизнес,С отдельным входом,Торговая

Электрическая мощность:

45 кВт

Высота потолков:

2.8м

Парковка:

городская

ФОРМА ВЛАДЕНИЯ:

ИП

Цена за все:

40 000 000 RUB

Общий МАП: 315 000

(данный МАП является минимальным, при оптимизации арендаторов арендный поток можно значительно увеличить)

Общий ГАП:

3 780 000

Окупаемость:

10.6 лет

Доходность:

9.45%

Планировка

Воробьев Алексей

Ваш брокер по работе с клиентами

Найдите лучшее место
для жизни, бизнеса, инвестиций

Оставьте свои контакты — с вами свяжется руководитель отдела для презентации нужного вам объекта

Похожие объекты