Id 145995

Москва, Протопоповский переулок, 19с13 / 913м2 / Продажа / ОСЗ / Особняк

адрес Москва, Протопоповский переулок, 19с13

Особняк/здание
С отдельным входом
Торговая
Офис
Медицина

275 000 000 RUB | за все

(за 1 м2 — 301 205 RUB)

площадь 913.0 м2

QR код Qr код

К продаже предлагается красивый исторический особняк по адресу: г. Москва, ЦАО, Мещанский район, Протопоповский переулок, 19с13.
Ближайшие станции метро: Проспект Мира – 8 мин. пешком. Трёхэтажный особняк с подвалом и мансардой в Протопоповском переулке в Мещанском районе. Фасад здания выполнен из красного кирпича с элементами декоративных узоров. Здание расположено на 1-й линии тихой улицы рядом с Ботаническим садом МГУ «Аптекарский огород». В пешей доступности развитая инфраструктура, театральный музей имени Щепкина и Екатерининский парк. В окружении представительства крупных компаний, престижные жилые комплексы и государственные учреждения. Удобные выезды на Садовое кольцо и ТТК в 5-ти минутах езды. Возле здания со стороны дороги платная городская парковка на 7 машин, со стороны двора бесплатная на 9 машин.
Торговое окружение:
Рядом расположены пункт выдачи Ozon, Цайняо, Яндекс Маркет, магазин продуктов Виктори, магазин одежды RedMega.ru.
Особняк подходит для размещения офиса, медицинского центра, клиники и бизнес-центра.

Технические характеристики:
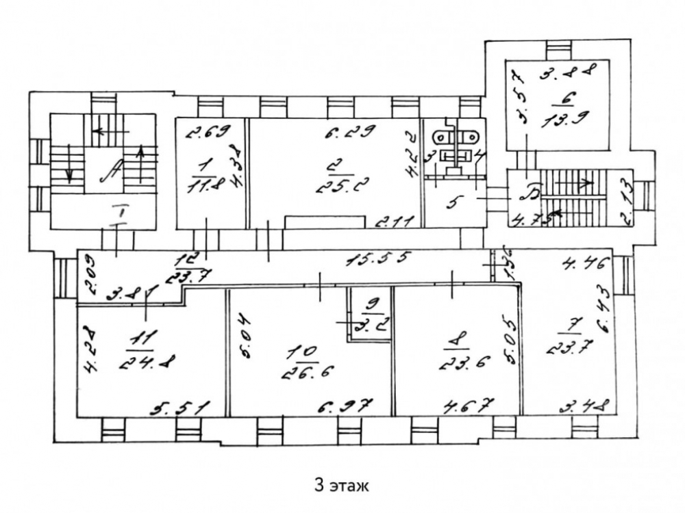
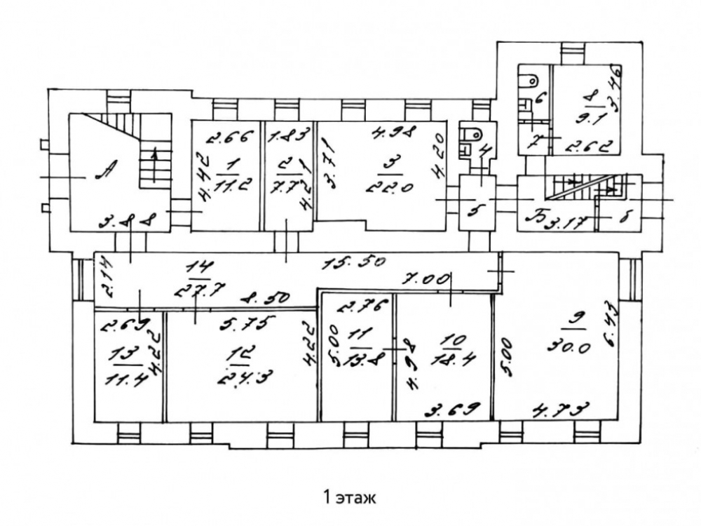
Отдельно стоящее здание 1917 г. постройки общей площадью – 913 кв. м. Два отдельных входа расположены с противоположных сторон здания. Окна по фасаду. Кабинетная планировка, выполнен качественный ремонт. Высота потолков – 3 м. Проведены центральные коммуникации, приточно-вытяжная вентиляция и кондиционирование сплит-системы. Электрическая мощность – 100 кВт.
Установлена система видеонаблюдения, за безопасность отвечает круглосуточная охрана.

Коммерческие условия:
Стоимость объекта – 275 000 000 рублей.
Стоимость за 1 кв. м. – 301 204 рублей.

Технические характеристики

Тип здания: Особняк/здание,С отдельным входом,Торговая,Офис,Медицина

Общая площадь: 913  м2

Этаж: 1

Всего этажей: 3

Электрическая мощность: 100 кВт

Высота потолков: 3 м

Парковка: со стороны дороги платная городская парковка на 7 машин, со стороны двора бесплатная на 9 машин

Коммерческие условия

Цена за все: 275 000 000 RUB

ФОРМА ВЛАДЕНИЯ: -

карта

Расположение

Адрес: Москва, Протопоповский переулок, 19с13

Округ: Центральный административный округ

Близость метро: Проспект Мира

Транспортная доступность: Ближайшие станции метро: Проспект Мира – 8 мин. пешком.

Окружение

Торговое окружение: Рядом расположены пункт выдачи Ozon, Цайняо, Яндекс Маркет, магазин продуктов Виктори, магазин одежды RedMega.ru

Адрес:

Москва, Протопоповский переулок, 19с13

Округ:

Центральный административный округ

Близость метро:

Проспект Мира

Транспортная доступность:

Ближайшие станции метро: Проспект Мира – 8 мин. пешком.

карта

Торговое окружение:

Рядом расположены пункт выдачи Ozon, Цайняо, Яндекс Маркет, магазин продуктов Виктори, магазин одежды RedMega.ru

Общая площадь:

913  м2

Этаж:

1

Всего этажей:

3

Тип:

Особняк/здание,С отдельным входом,Торговая,Офис,Медицина

Электрическая мощность:

100 кВт

Высота потолков:

3 м

Парковка:

со стороны дороги платная городская парковка на 7 машин, со стороны двора бесплатная на 9 машин

ФОРМА ВЛАДЕНИЯ:

-

Цена за все:

275 000 000 RUB

Планировка

Назарова Олеся

Ваш брокер по работе с клиентами

Найдите лучшее место
для жизни, бизнеса, инвестиций

Оставьте свои контакты — с вами свяжется руководитель отдела для презентации нужного вам объекта

Похожие объекты