Id 147239

Москва, Бауманская ул., 58/25с1 - 1235 кв.м - Продажа особняка / Арендный бизнес

адрес Москва, Бауманская ул., 58/25с1

Арендный бизнес
С отдельным входом
Торговая
Общепит

Окупаемость: 9.8 года

Доходность:10.26%

430 000 000 RUB | за все

(за 1 м2 — 348 178 RUB)

площадь 1 235.0 м2

QR код Qr код

Предлагается в продажу особняк, расположенный по адресу: Москва, ЦАО, Бауманская ул., 58/25с1.
Первая линия домов, станция метро "Бауманская" расположена в 5 минутах пешком. Интeнcивный aвтoмoбильный и пeшeхoдный тpaфик. По данным Росстата, в Басманном районе плотность населения порядка 13000 человека / км². Haпрoтив находится Бизнес центр. Популярная гастроулица. Удобный выезд на ТТК и на Садовое кольцо: до ТТК время в пути составит 4-5 минут, до Садового кольца – 6-7 минут.

Технические характеристики:
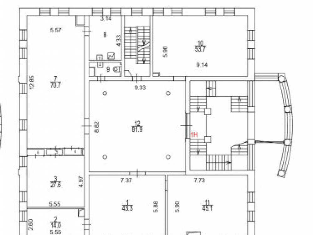
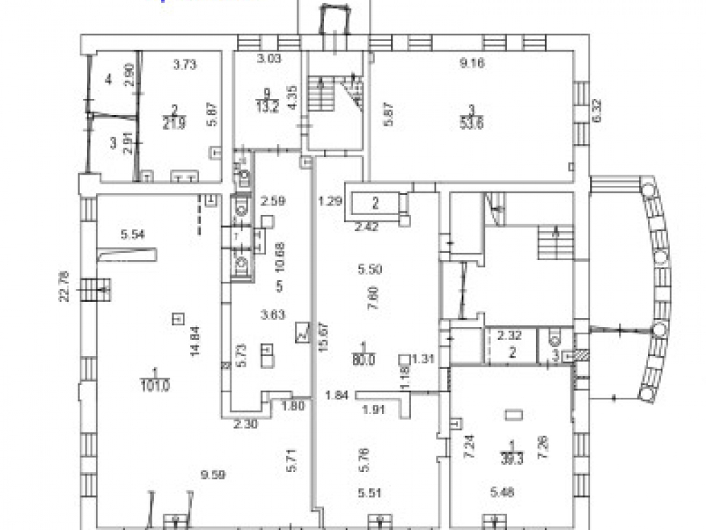
3-х этажное административное здание общей площадью 1235 кв.м. Высота потолков: 3 м. Возможность организации индивидуального режима работы. Доступ 24/7. Летняя веранда. Парковка на 9 машин. Земельный участок 12 соток в собственности. Не памятник. Все коммуникации центральные: электрическая мощность 103 кВт с возможностью увеличения, центральные ГВС, ХВС, канализация, отопление.

Коммерческие условия:
Стоимость объекта 430 000 000 рублей.
Стоимость за 1 кв.м 348 178 рублей.
Линейка стабильных арендаторов (общественное питание, розничная торговля и услуги). Ежегодная индексация.
Совокупный МАП 3 700 000 рублей / ГАП 44 400 000 рублей.
Есть потенциал увеличения МАП: на начало октября 2025 ведётся поиск арендаторов на три
помещения на мансарде: площади 34,9 кв.м; 16,1 кв. м; 13,8 кв.м;

Технические характеристики

Тип здания: Арендный бизнес,С отдельным входом,Торговая,Общепит

Общая площадь: 1235  м2

Этаж: 2

Всего этажей: 3

Электрическая мощность: 103

Высота потолков: 3

Парковка: есть

Коммерческие условия

Цена за все: 430 000 000 RUB

ФОРМА ВЛАДЕНИЯ: собственность

Общий МАП: 3 518 000 RUB (данный МАП является минимальным, при оптимизации арендаторов арендный поток можно значительно увеличить)

Общий ГАП: 42 216 000 RUB

Окупаемость: 9.8 года

Доходность: 10.26%

карта

Расположение

Адрес: Москва, Бауманская ул., 58/25с1

Округ: Центральный административный округ

Близость метро: Бауманская

Транспортная доступность: м. Бауманская

Окружение

Торговое окружение: Магазины

Адрес:

Москва, Бауманская ул., 58/25с1

Округ:

Центральный административный округ

Близость метро:

Бауманская

Транспортная доступность:

м. Бауманская

карта

Торговое окружение:

Магазины

Общая площадь:

1235  м2

Этаж:

2

Всего этажей:

3

Тип:

Арендный бизнес,С отдельным входом,Торговая,Общепит

Электрическая мощность:

103

Высота потолков:

3

Парковка:

есть

ФОРМА ВЛАДЕНИЯ:

собственность

Цена за все:

430 000 000 RUB

Общий МАП: 3 518 000

(данный МАП является минимальным, при оптимизации арендаторов арендный поток можно значительно увеличить)

Общий ГАП:

42 216 000

Окупаемость:

9.8 года

Доходность:

10.26%

Планировка

Мурат

Ваш брокер по работе с клиентами

Найдите лучшее место
для жизни, бизнеса, инвестиций

Оставьте свои контакты — с вами свяжется руководитель отдела для презентации нужного вам объекта

Похожие объекты