Id 147531

г. Москва, Зубовский пр-д, д.2к2 - Арендный бизнес

адрес Москва, Зубовский пр-д, д.2к2

Арендный бизнес
С отдельным входом
Торговая

Окупаемость: 11.9 года

Доходность:8.39%

75 000 000 RUB | за все

(за 1 м2 — 664 894 RUB)

площадь 112.8 м2

QR код Qr код

Предлагается на продажу помещение с арендатором по адресу Москва, Зубовский пр-д, д.2к2, расположенное на 1 линии в непосредственной близости от м. Парк культуры. Помещение находится среди сформированного густонаселенного жилого массива, который генерирует высокий пешеходный и автомобильный трафик. Высокий уровень дохода жителей.

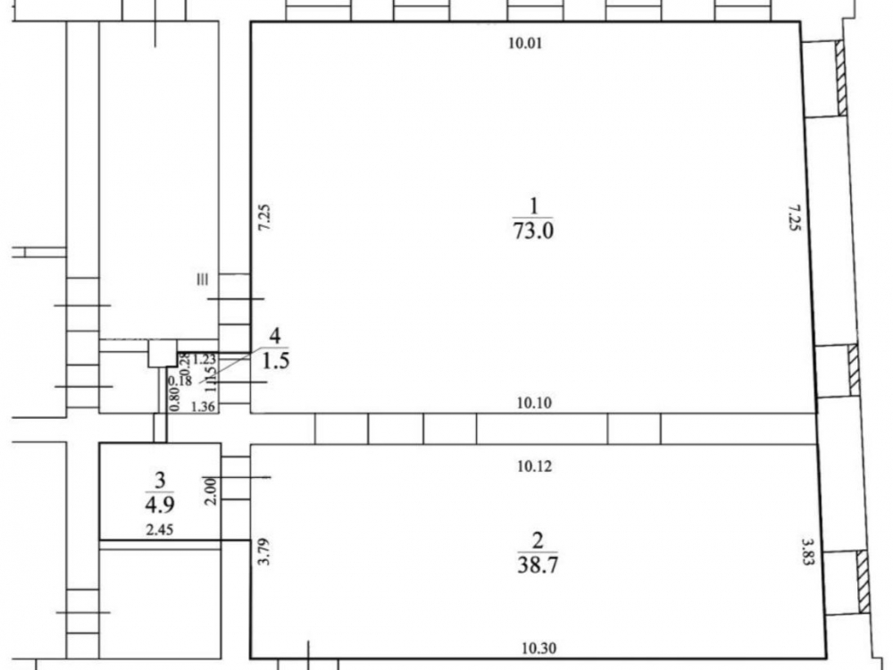
Технические характеристики: Общая площадь 112,8 м2, 1 этаж. Высота: 3 м. 2 oтдeльных входа (с улицы и сo двopa). Витринное остекление, отличные видовые характеристики и рекламные возможности. Все центральные городские коммуникации. Электрическая мощность 35 кВт.

Коммерческие условия:
Арендатор: Студия нижнего белья "Form for freedom", ДДА до 01.11.2028 г.
МАП - 525 000 руб., индексация 5% в одностороннем порядке.
Стоимость объекта - 75 000 000 рублей
Стоимость за 1 кв.м - 664 894 рублей

Технические характеристики

Тип здания: Арендный бизнес,С отдельным входом,Торговая

Общая площадь: 112.8  м2

Этаж: 1

Всего этажей: 8

Электрическая мощность: 35

Высота потолков: 3

Парковка: есть

Коммерческие условия

Цена за все: 75 000 000 RUB

ФОРМА ВЛАДЕНИЯ: собственность

Общий МАП: 525 000 RUB (данный МАП является минимальным, при оптимизации арендаторов арендный поток можно значительно увеличить)

Общий ГАП: 6 300 000 RUB

Окупаемость: 11.9 года

Доходность: 8.39%

карта

Расположение

Адрес: Москва, Зубовский пр-д, д.2к2

Округ: Центральный административный округ

Близость метро: Парк культуры

Транспортная доступность: м. Парк Культуры

Окружение

Торговое окружение: Магазины

Адрес:

Москва, Зубовский пр-д, д.2к2

Округ:

Центральный административный округ

Близость метро:

Парк культуры

Транспортная доступность:

м. Парк Культуры

карта

Торговое окружение:

Магазины

Общая площадь:

112.8  м2

Этаж:

1

Всего этажей:

8

Тип:

Арендный бизнес,С отдельным входом,Торговая

Электрическая мощность:

35

Высота потолков:

3

Парковка:

есть

ФОРМА ВЛАДЕНИЯ:

собственность

Цена за все:

75 000 000 RUB

Общий МАП: 525 000

(данный МАП является минимальным, при оптимизации арендаторов арендный поток можно значительно увеличить)

Общий ГАП:

6 300 000

Окупаемость:

11.9 года

Доходность:

8.39%

Планировка

Мурат

Ваш брокер по работе с клиентами

Найдите лучшее место
для жизни, бизнеса, инвестиций

Оставьте свои контакты — с вами свяжется руководитель отдела для презентации нужного вам объекта

Похожие объекты