Id 149080

МО, Одинцово, Северная улица, 5с1 / Продажа / Складское помещение / 1154.2 кв.м

адрес МО, Одинцово, Северная 5с1

Многофункциональный
С отдельным входом
Торговая
Новостройка
Склад

219 298 000 RUB |

(за 1 м2 — 190 000 RUB)

площадь 1 154.2 м2

QR код Qr код

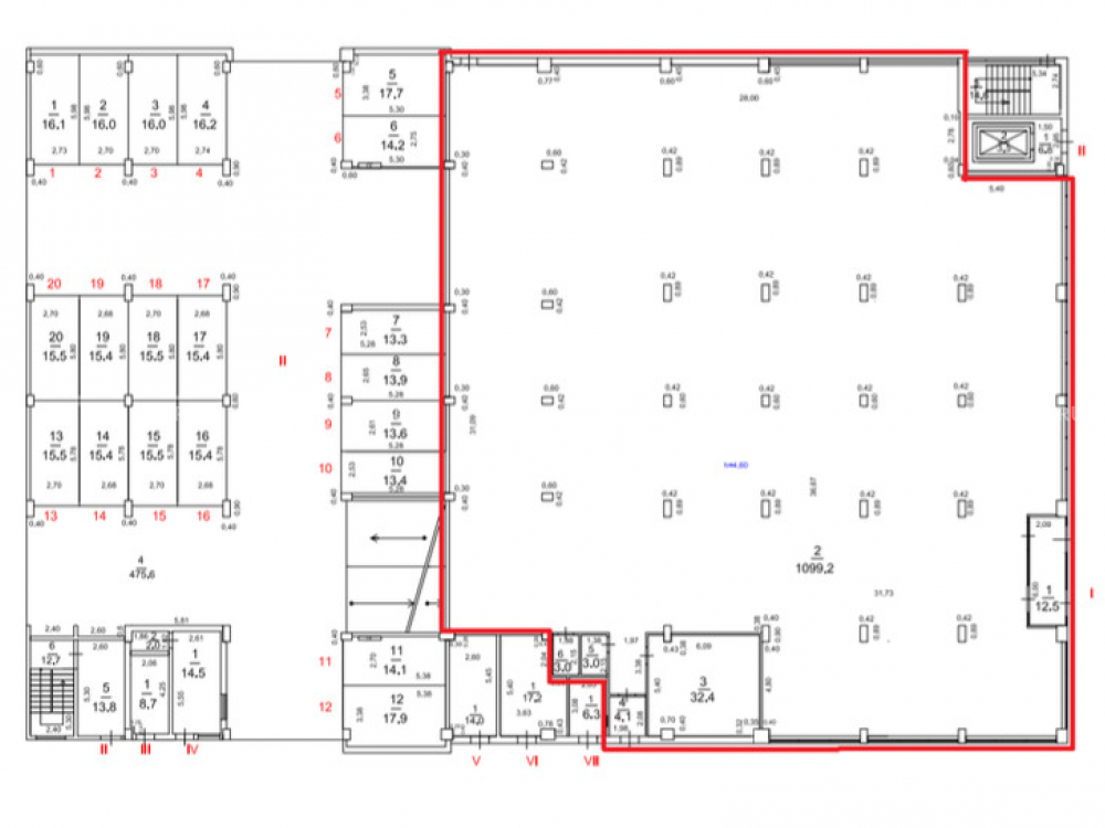
Предлагается к покупке помещение со свободной планировкой на первом этаже отдельно стоящего здания используемого под парковку, по адресу: Московская область, Одинцово, Северная 5с1, площадью 1154.2 кв.м.

Здание принадлежит жилому комплексу "Одинбург". В жилом комплексе проживают 24 000 жителей. Важным преимуществом комплекса является отличная транспортная доступность. До МКАД - 7 минут, 5 минут до ЖД станции Одинцово, 15 минут до МЦД-1.

Технические характеристики:
Площадь: 1 154,20 м2. Состояние: без отделки. Назначение: нежилое помещение. Возможное использование: складское помещение. Технические характеристики: Системы ГВС и ХВС; противопожарные системы, системы оповещения и пожаротушения; системы отопления; приборы учета. Высота потолков: 4,2 – 4,6 м. Входы: 3 отдельных. Остекление: витринное;

Коммерческие условия:
Стоимость: 219 298 000,00 рублей
Стоимость за кв.м: 190 000 рублей
Схема сделки: ДКП
НДС: Входит в стоимость.

Технические характеристики

Тип здания: Многофункциональный,С отдельным входом,Торговая,Новостройка,Склад

Общая площадь: 1154.2  м2

Этаж: 1

Всего этажей: 8

Электрическая мощность: 200 кВт

Высота потолков: 4,5 м

Парковка: Есть

Коммерческие условия

Цена: 219 298 000 RUB

ФОРМА ВЛАДЕНИЯ: Юрлицо

карта

Расположение

Адрес: МО, Одинцово, Северная 5с1

Близость метро: Славянский бульвар

Транспортная доступность: -

Окружение

Торговое окружение: -

Адрес:

МО, Одинцово, Северная 5с1

Округ:

Близость метро:

Славянский бульвар

Транспортная доступность:

-

карта

Торговое окружение:

-

Общая площадь:

1154.2  м2

Этаж:

1

Всего этажей:

8

Тип:

Многофункциональный,С отдельным входом,Торговая,Новостройка,Склад

Электрическая мощность:

200 кВт

Высота потолков:

4,5 м

Парковка:

Есть

ФОРМА ВЛАДЕНИЯ:

Юрлицо

Цена:

219 298 000 RUB

Назарова Олеся

Ваш брокер по работе с клиентами

Найдите лучшее место
для жизни, бизнеса, инвестиций

Оставьте свои контакты — с вами свяжется руководитель отдела для презентации нужного вам объекта

Похожие объекты