Id 149441

Ленинградский пр-кт, 78к1 - 699,3 м² / Продажа готового арендного бизнеса / Магнолия

адрес Москва, Ленинградский проспект, 78к1

Арендный бизнес
Многофункциональный
С отдельным входом
Торговая

Окупаемость: 9.2 лет

Доходность:10.91%

120 000 000 RUB | за все

(за 1 м2 — 171 600 RUB)

площадь 699.3 м2

QR код Qr код

Продажа помещения с арендатором - супермаркет Магнолия (режим работы 24 часа), по адресу: Ленинградский проспект, д. 78к1. САО, р-н Аэропорт. Ближайшее метро Сокол в 200 метрах. Первая линия, сложившееся торговое окружение. Рядом торговый центр, множество ВУЗов, концертный зал VK Stadium. Густонаселённый жилой массив. Устойчивый пешеходный и сквозной автомобильный трафик. Парк Покровское-Стрешнево в пешей доступности. Торговое окружение: отделения банков, винотеки, настольные игры, кофейни, кофейни, аптеки, пиццерия.

Технические параметры
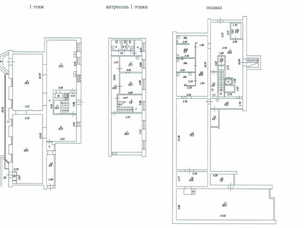
1-ый этаж 9-этажного жилого дома. Общая площадь: 699,3 м² (1-ый этаж: 455,3 м²; подвал: 254 м²). 2 отдельных входа, зона разгрузки большие полноразмерные витрины вдоль всего фасада, оснащено необходимыми коммуникациями, высота потолков: 3,3 метра, получена алколицензия. Дом не входит в программу реновации.

Коммерческие условия:
Стоимость помещения: 120 000 000 руб.
Цена за 1 м²: 193 050 руб.
МАП = 1 100 000 руб. (супермаркет "Магнолия", (ДДА на 10 лет до 31.07.2034г).
ГАП = 13 200 000 руб.
Форма сделки: ДКПН (УСН)

Технические характеристики

Тип здания: Арендный бизнес,Многофункциональный,С отдельным входом,Торговая

Общая площадь: 699.3  м2

Этаж: 1

Всего этажей: 9

Электрическая мощность: 3.3 м

Высота потолков: 45 кВт

Парковка: во дворе

Коммерческие условия

Цена за все: 120 000 000 RUB

ФОРМА ВЛАДЕНИЯ: ООО (УСН)

Общий МАП: 1 200 000 RUB (данный МАП является минимальным, при оптимизации арендаторов арендный поток можно значительно увеличить)

Общий ГАП: 13 200 000 RUB

Окупаемость: 9.2 лет

Доходность: 10.91%

карта

Расположение

Адрес: Москва, Ленинградский проспект, 78к1

Округ: Северный административный округ

Близость метро: Сокол

Транспортная доступность: метро Сокол в 200 метрах

Окружение

Торговое окружение: отделения банков, винотеки, настольные игры, кофейни, кофейни, аптеки, пиццерия

Адрес:

Москва, Ленинградский проспект, 78к1

Округ:

Северный административный округ

Близость метро:

Сокол

Транспортная доступность:

метро Сокол в 200 метрах

карта

Торговое окружение:

отделения банков, винотеки, настольные игры, кофейни, кофейни, аптеки, пиццерия

Общая площадь:

699.3  м2

Этаж:

1

Всего этажей:

9

Тип:

Арендный бизнес,Многофункциональный,С отдельным входом,Торговая

Электрическая мощность:

3.3 м

Высота потолков:

45 кВт

Парковка:

во дворе

ФОРМА ВЛАДЕНИЯ:

ООО (УСН)

Цена за все:

120 000 000 RUB

Общий МАП: 1 200 000

(данный МАП является минимальным, при оптимизации арендаторов арендный поток можно значительно увеличить)

Общий ГАП:

13 200 000

Окупаемость:

9.2 лет

Доходность:

10.91%

Планировка

Дмитриев Александр

Ваш брокер по работе с клиентами

Найдите лучшее место
для жизни, бизнеса, инвестиций

Оставьте свои контакты — с вами свяжется руководитель отдела для презентации нужного вам объекта

Похожие объекты