Id 150109

Москва, Андрея Тарковского бул., д. 11 - 1 563,6 кв.м - Продажа под медицинский центр

адрес Москва, Андрея Тарковского бул., д. 11

С отдельным входом
Проект
Медицина

390 900 000 RUB | за все

(за 1 м2 — 250 000 RUB)

площадь 1 563.6 м2

QR код Qr код

Предлагается в продажу помещение под медицинский центр, Андрея Тарковского бул., д. 11.
ЖК Рассказово, 10 корпусов от 9 до 22 этажей, 20 тыс жителей.
Метро «Рассказовка» в 15 минутах.
Помещение расположено прямо на въезде в жилой комплекс.

В составе ЖК 3 детских сада, школа на 1950 метров, 5 ресторанов, фитнес центр, детейлинг студия, более 20 магазинов.
Более 1600 квартир.

Технические характеристики:
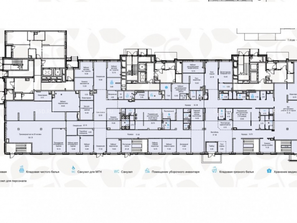
Общая площадь: 1563.6 кв.м (1 этаж – 1 119, кв.м / -1 этаж – 402 кв.м). 24-этажный жилой дом.
Помещение «без отделки».
5 Отдельных входных групп.
Высота потолков на 1 этаже 4-4.5 метров.
В цоколе - 3,35 м.
На прилегающей территории имеется наземная парковка для размещения 15 м/м. Электрическая мощность 193,4 кВт.

Продажа строго под медицинский центр.

Коммерческие условия:
Стоимость объекта 375 264 000 рублей;
Стоимость 1 кв.м. 250 000 рублей

Собственник - физическое лицо.

Технические характеристики

Тип здания: С отдельным входом,Проект,Медицина

Общая площадь: 1563.6  м2

Этаж: 1

Всего этажей: 24

Электрическая мощность: 193,4

Высота потолков: 4

Парковка: есть

Коммерческие условия

Цена за все: 390 900 000 RUB

ФОРМА ВЛАДЕНИЯ: собственность

карта

Расположение

Адрес: Москва, Андрея Тарковского бул., д. 11

Округ: Западный административный округ

Близость метро: Рассказовка

Транспортная доступность: м. Рассказовка

Окружение

Торговое окружение: магазины

Адрес:

Москва, Андрея Тарковского бул., д. 11

Округ:

Западный административный округ

Близость метро:

Рассказовка

Транспортная доступность:

м. Рассказовка

карта

Торговое окружение:

магазины

Общая площадь:

1563.6  м2

Этаж:

1

Всего этажей:

24

Тип:

С отдельным входом,Проект,Медицина

Электрическая мощность:

193,4

Высота потолков:

4

Парковка:

есть

ФОРМА ВЛАДЕНИЯ:

собственность

Цена за все:

390 900 000 RUB

Планировка

Гервас Ксения

Ваш брокер по работе с клиентами

Найдите лучшее место
для жизни, бизнеса, инвестиций

Оставьте свои контакты — с вами свяжется руководитель отдела для презентации нужного вам объекта

Похожие объекты