Id 150595

Москва, ЮАО, р-н Даниловский, 3-й Павелецкий проезд, 3 / Продажа / Арендный бизнес / 373 кв.м

адрес Москва, 3-й Павелецкий проезд, 3

Арендный бизнес
С отдельным входом
Торговая
Новостройка

Окупаемость: 17.3 лет

Доходность:5.80%

223 000 000 RUB | за все

(за 1 м2 — 597 855 RUB)

площадь 373.0 м2

QR код Qr код

Предлагается к покупке торговое помещение в арендатором Вкусвилл, в ЖК бизнес класса "Резиденция композиторов", по адресу: Москва, ЮАО, р-н Даниловский, 3-й Павелецкий проезд, 3
ЖК «Резиденции композиторов» – это клубный квартал бизнес-класса, расположенный̆ в историческом месте Даниловского района Москвы. Жилой̆ комплекс с панорамными видами на Павелецкую набережную. Общая площадь комплекса: 133 510 кв.м. Наземная часть: 94 050 кв.м. Количество постоянного населения: более 2 500 чел. Жилой комплекс расположен в 4 минутах езды от Третьего
транспортного кольца и всего в 15 минутах – от Манежной площади. Рядом расположены 2 Бизнес центра, общей площадью 25 000 кв.м
Ближайшая станция метро Тульская - 15 минут пешком, Павелецкая - 7 минут транспортом

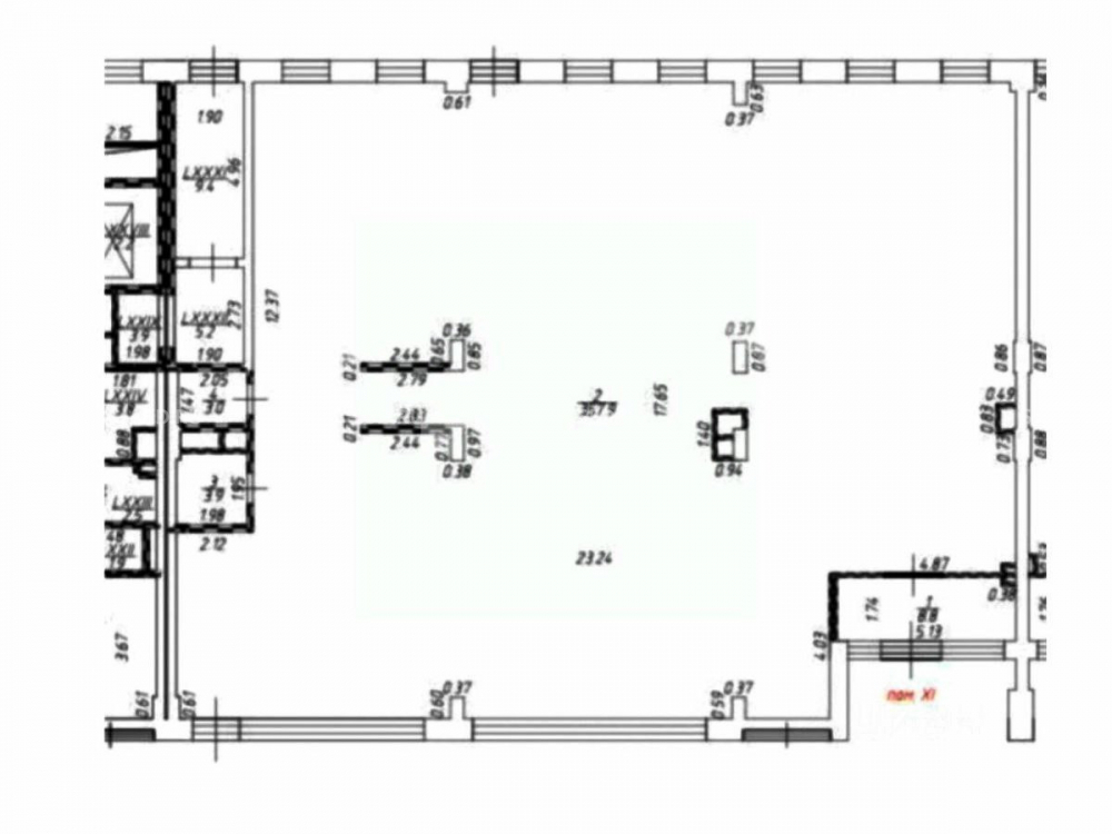
Технические характеристики:
Площадь - 373 кв.м. 1 этаж 18-этажного жилого дома. 3 отдельных входных группы. Зальная планировка. Витринное остекление. Размещение вывески на фасаде. Паркинг напротив фасада. Рядом остановка общественного транспорта. Электрическая мощность: 100 кВт. Высота потолков: 4 м.

Коммерческие условия:
Стоимость: 223 800 000 рублей.
Стоимость за кв.м: 600 000 рублей.
Арендаторы: ВкусВилл
МАП: 1 080 000 рублей
ГАП: 12 960 000 рублей.
Окупаемость: 11,5 лет

Технические характеристики

Тип здания: Арендный бизнес,С отдельным входом,Торговая,Новостройка

Общая площадь: 373  м2

Этаж: 1

Всего этажей: 18

Электрическая мощность: 100 кВт

Высота потолков: 4.5 м

Парковка: Есть

Коммерческие условия

Цена за все: 223 000 000 RUB

ФОРМА ВЛАДЕНИЯ: Физлицо

Общий МАП: 1 080 000 RUB (данный МАП является минимальным, при оптимизации арендаторов арендный поток можно значительно увеличить)

Общий ГАП: 12 960 000 RUB

Окупаемость: 17.3 лет

Доходность: 5.80%

карта

Расположение

Адрес: Москва, 3-й Павелецкий проезд, 3

Округ: Южный административный округ

Близость метро: Тульская

Транспортная доступность: м. Тульская - 15 минут пешком.

Окружение

Торговое окружение: ядом расположены 2 Бизнес центра, общей площадью 25 000 кв.м. На территории комплекса есть фитнесc-клуб с бассейном, Магнолия

Адрес:

Москва, 3-й Павелецкий проезд, 3

Округ:

Южный административный округ

Близость метро:

Тульская

Транспортная доступность:

м. Тульская - 15 минут пешком.

карта

Торговое окружение:

ядом расположены 2 Бизнес центра, общей площадью 25 000 кв.м. На территории комплекса есть фитнесc-клуб с бассейном, Магнолия

Общая площадь:

373  м2

Этаж:

1

Всего этажей:

18

Тип:

Арендный бизнес,С отдельным входом,Торговая,Новостройка

Электрическая мощность:

100 кВт

Высота потолков:

4.5 м

Парковка:

Есть

ФОРМА ВЛАДЕНИЯ:

Физлицо

Цена за все:

223 000 000 RUB

Общий МАП: 1 080 000

(данный МАП является минимальным, при оптимизации арендаторов арендный поток можно значительно увеличить)

Общий ГАП:

12 960 000

Окупаемость:

17.3 лет

Доходность:

5.80%

Евгений

Ваш брокер по работе с клиентами

Найдите лучшее место
для жизни, бизнеса, инвестиций

Оставьте свои контакты — с вами свяжется руководитель отдела для презентации нужного вам объекта

Похожие объекты