Id 150816

Королев, Пионерская улица, 13к3 - 261,5кв.м. - Продажа / Арендный бизнес Супермаркет Ярче

адрес Королёв, Пионерская улица, 13к3

Арендный бизнес
С отдельным входом
Торговая

Окупаемость: 11.7 года

Доходность:8.57%

71 900 000 RUB | за все

(за 1 м2 — 274 952 RUB)

площадь 261.5 м2

QR код Qr код

В продажу предлагается Арендный бизнес Супермаркет Ярче, расположенный по адресу: МО, г.Королев, Пионерская улица, 13к3;
На въезде в город Королев, прямо на Пионерской улице. 7 км от МКАД по Ярославскому шоссе (западная окраина города). 15 минут пешком до платформы Подлипки-Дачные. 35 минут до Ярославского вокзала. В Москву можно доехать на автобусе или маршрутном такси до метро «ВДНХ»: 5 минут пешком до остановки и 30 минут в пути. Автобусная остановка находится в 2 минутах от дома.

Торговое окружение: «Вкусно и Точка» , аптеки «Горздрав», пекарня «Буханка», пункт выдачи заказов «Wildberries», кафе и рестораны, салоны красоты.

Технические характеристики:
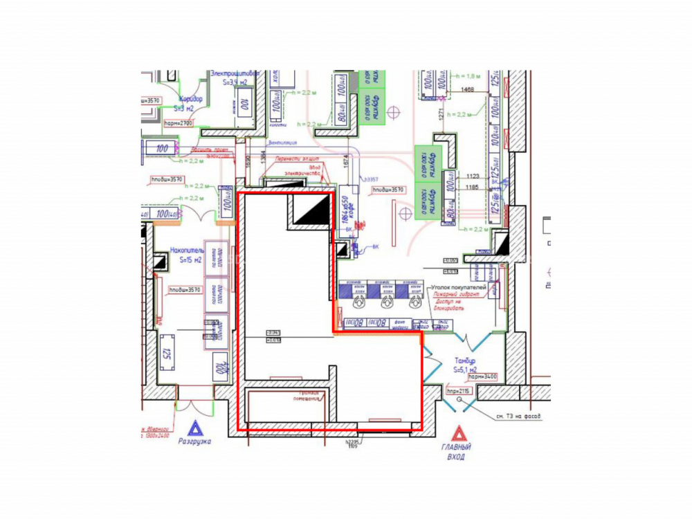
Площадь - 261,5 кв.м, 1-й этаж 25-ти этажного жилого дома. Корпус сдан и заселен;
Отдельные входные группы по первой линии, вход с фасада;
Зальная планировка. Электрическая мощность 50кВт.

Коммерческие условия:
Стоимость объекта 71 900 000 рублей;
Стоимость 1 кв.м 275 000 рублей.

Арендатор - супермаркет «Ярче», Долгосрочный догвора аренды;
Совокупный арендный поток 515 000 рублей в месяц.

Собственник Физ лицо;
Продажа по ДКПн.

Технические характеристики

Тип здания: Арендный бизнес,С отдельным входом,Торговая

Общая площадь: 261.5  м2

Этаж: 1

Всего этажей: 25

Электрическая мощность: 50 кВт

Высота потолков: 4 м

Парковка: Наземная

Коммерческие условия

Цена за все: 71 900 000 RUB

ФОРМА ВЛАДЕНИЯ: Физ лицо

Общий МАП: 515 000 RUB (данный МАП является минимальным, при оптимизации арендаторов арендный поток можно значительно увеличить)

Общий ГАП: 6 180 000 RUB

Окупаемость: 11.7 года

Доходность: 8.57%

карта

Расположение

Адрес: Королёв, Пионерская улица, 13к3

Округ: Северный административный округ

Близость метро: ВДНХ,Медведково

Транспортная доступность: На въезде в город Королев, прямо на Пионерской улице. 7 км от МКАД по Ярославскому шоссе (западная окраина города). 15 минут пешком до платформы Подлипки-Дачные.

Окружение

Торговое окружение: «Вкусно и Точка» , аптеки «Горздрав», пекарня «Буханка», пункт выдачи заказов «Wildberries», кафе и рестораны, салоны красоты.

Адрес:

Королёв, Пионерская улица, 13к3

Округ:

Северный административный округ

Близость метро:

ВДНХ,Медведково

Транспортная доступность:

На въезде в город Королев, прямо на Пионерской улице. 7 км от МКАД по Ярославскому шоссе (западная окраина города). 15 минут пешком до платформы Подлипки-Дачные.

карта

Торговое окружение:

«Вкусно и Точка» , аптеки «Горздрав», пекарня «Буханка», пункт выдачи заказов «Wildberries», кафе и рестораны, салоны красоты.

Общая площадь:

261.5  м2

Этаж:

1

Всего этажей:

25

Тип:

Арендный бизнес,С отдельным входом,Торговая

Электрическая мощность:

50 кВт

Высота потолков:

4 м

Парковка:

Наземная

ФОРМА ВЛАДЕНИЯ:

Физ лицо

Цена за все:

71 900 000 RUB

Общий МАП: 515 000

(данный МАП является минимальным, при оптимизации арендаторов арендный поток можно значительно увеличить)

Общий ГАП:

6 180 000

Окупаемость:

11.7 года

Доходность:

8.57%

Планировка

Владислав

Ваш брокер по работе с клиентами

Найдите лучшее место
для жизни, бизнеса, инвестиций

Оставьте свои контакты — с вами свяжется руководитель отдела для презентации нужного вам объекта

Похожие объекты