Id 151947

Московская область, Дмитровский р-н, г.п. Деденево, ул. Заречная, д. 9/526.5кв.м. / Продажа торгового помещения с арендатором Магнит

адрес Московская область, Дмитровский р-н, г.п. Деденево, ул. Заречная, д. 9

Арендный бизнес
Особняк/здание
Торговая
ЗУ

Окупаемость: 8.1 года

Доходность:12.37%

38 000 000 RUB | за все

(за 1 м2 — 72 175 RUB)

площадь 526.5 м2

QR код Qr код

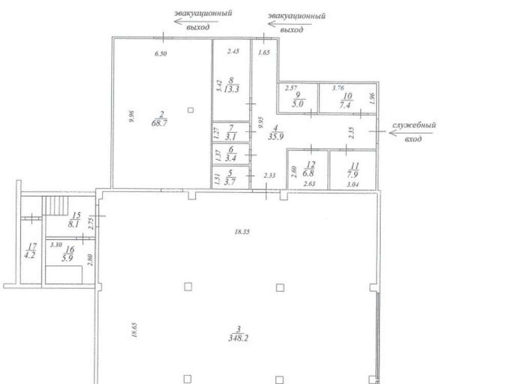
Предлагается в продажу отдельно стоящее здание с сетевым продуктовым магазином по адресу: Московская область, Дмитровский р-н, г.п. Деденево, ул. Заречная, д. 9. Одно этажное здание и земельный участок в собственности. В окружении крупный жилой массив, интенсивный пешеходный трафик. Отсутствует конкуренция на районе!

Технические характеристики: Общая площадь здания 526.5 м2 (вся площадь в одном уровне), электрическая мощность 50кВт. Все центральные коммуникации. Земельный участок 958 кв.м. (Земли населенных пунктов; ВРИ: под административным зданием, для иных видов жилой застройки).

Коммерческие условия:
Арендатор: супермаркет "Магнит" (договор аренды от 31.07.2017г сроком до 2032г.)
МАП 392 000 рублей или 5% от РТО; ГАП 4 704 000 рублей
Стоимость объекта 38 000 000 рублей
Стоимость за м2 - 72 100 рублей
Продажа по ДКП от юр. лица (ООО)

Технические характеристики

Тип здания: Арендный бизнес,Особняк/здание,Торговая,ЗУ

Общая площадь: 526.5  м2

Этаж: 1

Всего этажей: 1

Электрическая мощность: 50

Высота потолков: 4

Парковка: на улице

Коммерческие условия

Цена за все: 38 000 000 RUB

ФОРМА ВЛАДЕНИЯ: Собственность

Окупаемость: 8.1 года

Доходность: 12.37%

карта

Расположение

Адрес: Московская область, Дмитровский р-н, г.п. Деденево, ул. Заречная, д. 9

Округ: Северный административный округ

Близость метро: Алтуфьево,Яхромская

Транспортная доступность: метро

Окружение

Торговое окружение: Развитое

Адрес:

Московская область, Дмитровский р-н, г.п. Деденево, ул. Заречная, д. 9

Округ:

Северный административный округ

Близость метро:

Алтуфьево,Яхромская

Транспортная доступность:

метро

карта

Торговое окружение:

Развитое

Общая площадь:

526.5  м2

Этаж:

1

Всего этажей:

1

Тип:

Арендный бизнес,Особняк/здание,Торговая,ЗУ

Электрическая мощность:

50

Высота потолков:

4

Парковка:

на улице

ФОРМА ВЛАДЕНИЯ:

Собственность

Цена за все:

38 000 000 RUB

Окупаемость:

8.1 года

Доходность:

12.37%

Гуда Алексей

Ваш брокер по работе с клиентами

Найдите лучшее место
для жизни, бизнеса, инвестиций

Оставьте свои контакты — с вами свяжется руководитель отдела для презентации нужного вам объекта

Похожие объекты