Id 153717

Москва, р-н Ломоносовский, Марии Ульяновой, 7 - 222,1 кв.м. / Продажа ГАБ / Школа исорического фехтовария, Студия йоги

адрес Москва, ЮЗАО, Район Ломоносовский, Марии Ульяновой, 7

Арендный бизнес
С отдельным входом
Торговая

Окупаемость: 7.2 года

Доходность:13.95%

24 000 000 RUB | за все

(за 1 м2 — 108 059 RUB)

площадь 222.1 м2

QR код Qr код

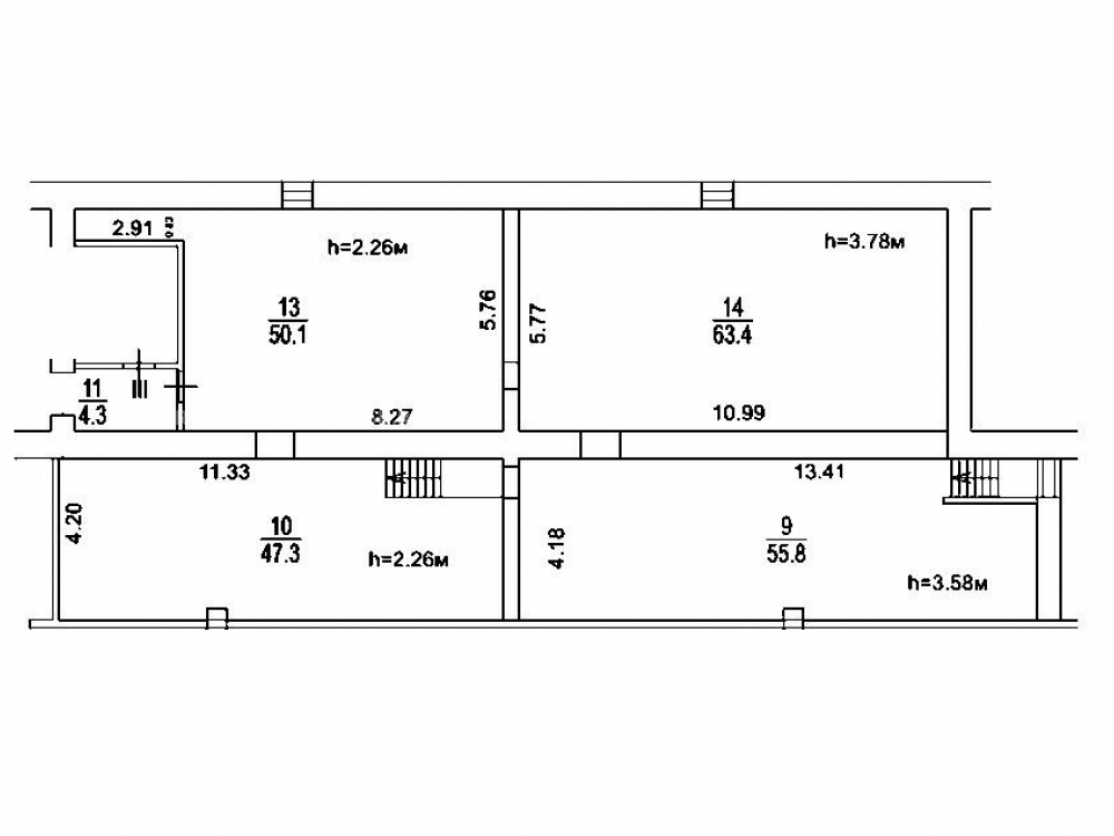
Предлагается в продажу помещение свободного назначения с арендаторами, расположенное в 8и этажном кирпичном жилом доме 1959 года постройки по адресу: г. Москва, ЮЗАО, Район Ломоносовский, Марии Ульяновой, 7, площадью 222.1кв.м.

Ближайшая станция метро - м. Новаторская, 10 минут пешком. Помещение находится в густонаселенном жилом массиве с удобной транспортной доступностью. Поблизости находится Магазин "ВкусВилл", кафе "Буханка".

Технические характеристики:
Цокольный этаж 8и этажного здания. Общая площадь 222.1кв.м. Свободная планировка. Высота потолков 2.7м. Отделка чистовая. Планировка свободная. 15 кВт. Есть одно небольшое окно, все городские коммуникации.

Коммерческие условия:
Стоимость: 24 000 000 рублей.
Стоимость за кв.м: 108 060 рублей.
Арендаторы: Школа исорического фехтовария, Студия йоги, КДА, Индексация 7% безусловная.
МАП общий: 280 000 руб.
ГАП общий: 3 360 000 руб.
Окупаемость: 7,14 лет.
ДКПН от ИП (УСН)

Технические характеристики

Тип здания: Арендный бизнес,С отдельным входом,Торговая

Общая площадь: 222.1  м2

Этаж: -1

Всего этажей: 8

Электрическая мощность: -

Высота потолков: -

Парковка: -

Коммерческие условия

Цена за все: 24 000 000 RUB

ФОРМА ВЛАДЕНИЯ: -

Общий МАП: 280 000 RUB (данный МАП является минимальным, при оптимизации арендаторов арендный поток можно значительно увеличить)

Общий ГАП: 3 360 000 RUB

Окупаемость: 7.2 года

Доходность: 13.95%

карта

Расположение

Адрес: Москва, ЮЗАО, Район Ломоносовский, Марии Ульяновой, 7

Округ: Юго-Западный административный округ

Близость метро: Новаторская

Транспортная доступность: -

Окружение

Торговое окружение: -

Адрес:

Москва, ЮЗАО, Район Ломоносовский, Марии Ульяновой, 7

Округ:

Юго-Западный административный округ

Близость метро:

Новаторская

Транспортная доступность:

-

карта

Торговое окружение:

-

Общая площадь:

222.1  м2

Этаж:

-1

Всего этажей:

8

Тип:

Арендный бизнес,С отдельным входом,Торговая

Электрическая мощность:

-

Высота потолков:

-

Парковка:

-

ФОРМА ВЛАДЕНИЯ:

-

Цена за все:

24 000 000 RUB

Общий МАП: 280 000

(данный МАП является минимальным, при оптимизации арендаторов арендный поток можно значительно увеличить)

Общий ГАП:

3 360 000

Окупаемость:

7.2 года

Доходность:

13.95%

Планировка

Никифоров Андрей

Ваш брокер по работе с клиентами

Найдите лучшее место
для жизни, бизнеса, инвестиций

Оставьте свои контакты — с вами свяжется руководитель отдела для презентации нужного вам объекта

Похожие объекты