Id 154779

Продажа торгового помещения в ЖК Прибрежный парк / 111.22 кв.м

адрес село Ям, ЖК Прибрежный Парк, 10.2

С отдельным входом
Торговая
Жилой комплекс (мфк)

24 194 808 RUB | за все

(за 1 м2 — 217 579 RUB)

площадь 111.2 м2

QR код Qr код

Предлагается в продажу торговое помещение в ЖК Прибрежный парк, корпус 10.2.
Транспортная доступность: 15 мин. пешком до ст. «Ленинская», 30 мин. на авто до м. Домодедовская, 9 км от МКАД. Рядом с комплексом расположены выезды на трассу М-4 «Дон» и на Каширское шоссе. Остановка общественного транспорта у жилого комплекса. Прибрежный парк - жилой комплекс от застройщика "Самолет" на 20 тысяч жителей, будет сдан к третьему кварталу 2025 года. Большое количество жителей в самом жилом комплексе и прилегающих районах обеспечит высокий пешеходный трафик.

Технические характеристики:
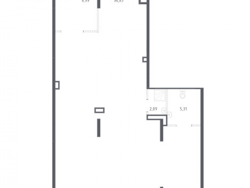
1 этаж 17-этажного жилого дома. Общая площадь 111.22 кв.м.
Вентиляция, витринное остекление, высокие потолки. Эл. мощность 200 Вт/м². Отделка shell&core.
Дата сдачи до 31.05.2026 г.. Помещение свободного назначения. Хорошая видимость дороги. Подойдет под магазин, аптеку, услуги и т. д.

Коммерческие условия:
Стоимость объекта 24 194 808 рублей.
Стоимость 1 кв.м 217 540 рублей.

Технические характеристики

Тип здания: С отдельным входом,Торговая,Жилой комплекс (мфк)

Общая площадь: 111.2  м2

Этаж: 1

Всего этажей: 17

Электрическая мощность: 200 Вт/м²

Высота потолков: 3 м

Парковка: -

Коммерческие условия

Цена за все: 24 194 808 RUB

ФОРМА ВЛАДЕНИЯ: -

карта

Расположение

Адрес: село Ям, ЖК Прибрежный Парк, 10.2

Близость метро: Домодедовская

Транспортная доступность: 15 мин. пешком до ст. «Ленинская», 30 мин. на авто до м. Домодедовская, 9 км от МКАД

Окружение

Торговое окружение: -

Адрес:

село Ям, ЖК Прибрежный Парк, 10.2

Округ:

Близость метро:

Домодедовская

Транспортная доступность:

15 мин. пешком до ст. «Ленинская», 30 мин. на авто до м. Домодедовская, 9 км от МКАД

карта

Торговое окружение:

-

Общая площадь:

111.2  м2

Этаж:

1

Всего этажей:

17

Тип:

С отдельным входом,Торговая,Жилой комплекс (мфк)

Электрическая мощность:

200 Вт/м²

Высота потолков:

3 м

Парковка:

-

ФОРМА ВЛАДЕНИЯ:

-

Цена за все:

24 194 808 RUB

Планировка

Дарья

Ваш брокер по работе с клиентами

Найдите лучшее место
для жизни, бизнеса, инвестиций

Оставьте свои контакты — с вами свяжется руководитель отдела для презентации нужного вам объекта

Похожие объекты