Id 155160

Москва, жилой комплекс Сет ( ЖК SET) - 1 882,4 кв.м / Продажа ПСН двухуровневого

адрес Москва, жилой комплекс Сет

Многофункциональный
С отдельным входом
Торговая
Новостройка

583 544 000 RUB | за все

(за 1 м2 — 310 000 RUB)

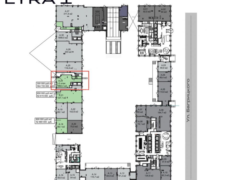
площадь 1 882.4 м2

QR код Qr код

Продажа помещения свободного назначения на 1-м этаже современном мультиквартале бизнес-класса SET LYRA 1, по адресу: г. Москва, ЗАО, р-н Можайский, Верейская улица/ Общее количество квартир - 1 281.
Транспортная доступность: ближайшая станция метро "Давыдково" в 1,6 км. На авто 5 минут до Кутузовского проспекта, 10 минут до Садового кольца.

Окружение: БЦ Верейская, плаза, ЖК Верейская, 41, ЖК LIFE Кутузовский, ЖК Родина парк.

Технические характеристики:
1й - 3й этажи жилого дома. Общая площадь 1 882.4 м². Отдельный вход. Высота потолков 4.8 м. Витринное остекление. Свободная планировка. Все центральные коммуникации. Технологической вытяжки нет.

Коммерческие условия:
Стоимость объекта - 583 544 000 рублей
Стоимость за м² - 310 000 рублей
Продажа по ДДУ.
Срок ввода - 3 квартал 2028 год.

Технические характеристики

Тип здания: Многофункциональный,С отдельным входом,Торговая,Новостройка

Общая площадь: 1882.4  м2

Этаж: 1

Всего этажей: 52

Электрическая мощность: по запросу

Высота потолков: от 4,5 м

Парковка: -

Коммерческие условия

Цена за все: 583 544 000 RUB

ФОРМА ВЛАДЕНИЯ: -

карта

Расположение

Адрес: Москва, жилой комплекс Сет

Округ: Западный административный округ

Близость метро: Давыдково

Транспортная доступность: ближайшая станция метро Давыдково в 1,6 км.

Окружение

Торговое окружение: Развитая инфраструктура

Адрес:

Москва, жилой комплекс Сет

Округ:

Западный административный округ

Близость метро:

Давыдково

Транспортная доступность:

ближайшая станция метро Давыдково в 1,6 км.

карта

Торговое окружение:

Развитая инфраструктура

Общая площадь:

1882.4  м2

Этаж:

1

Всего этажей:

52

Тип:

Многофункциональный,С отдельным входом,Торговая,Новостройка

Электрическая мощность:

по запросу

Высота потолков:

от 4,5 м

Парковка:

-

ФОРМА ВЛАДЕНИЯ:

-

Цена за все:

583 544 000 RUB

Планировка

Ирина Головина

Ваш брокер по работе с клиентами

Найдите лучшее место
для жизни, бизнеса, инвестиций

Оставьте свои контакты — с вами свяжется руководитель отдела для презентации нужного вам объекта

Похожие объекты