Id 155239

ЮВАО, район Лефортово, бизнес-квартал Стоун Римская / 82,6 м² / Продажа торгового помещения

адрес Москва, бизнес-квартал Стоун Римская

С отдельным входом
Торговая
Общепит
Новостройка

82 847 800 RUB | за все

(за 1 м2 — 1 003 000 RUB)

площадь 82.6 м2

QR код Qr код

Продажа торгового помещения новом БЦ класса А "STONE Римская", по адресу: ЮВАО, район Лефортово, бизнес-квартал Стоун Римская.
Строящийся БЦ расположен на самой границе Таганского района в одной станции от Садового кольца.
3 мин. от станций метро «Римская», «Площадь Ильича» и остановок МЦД-2 и МЦД-4, входящих в ТПУ «Серп и Молот».
Прямой доступ в центр города и до «Москва-Сити».
Удобный выезд на ТТК и Садовое кольцо.

Ввод в эксплуатацию в 2028 г.

Активно развивающаяся локация с высоким трафиком: 100 тыс. пассажиров ТПУ «Серп и Молот» в сутки, 20 тыс. жителей новых ЖК и 6 500 сотрудников.
Поблизости уже функционирую БЦ Аурум, строится и заселяется премиальный ЖК Символ, запланирован новый ЖК Stone Rise.

Технические характеристики :
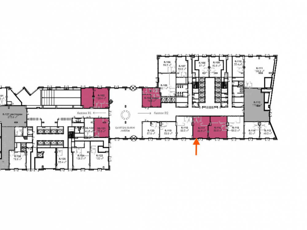
Помещение в стилобате, площадью 82,6 м². Вход с улицы.
Свободная планировка, высокие потолки, витринное остекление, место для размещения вывески, индивидуальный вход, мокрая точка в помещении, безбарьерный доступ, приточно-вытяжная система вентиляции, внутрипольные конвекторы.

Коммерческие условия :
Стоимость объекта - 82 847 800 ₽, с НДС.
Стоимость за м² - 1 003 000 ₽, с НДС.
Беспроцентная рассрочка до окончания строительства.

Технические характеристики

Тип здания: С отдельным входом,Торговая,Общепит,Новостройка

Общая площадь: 82.6  м2

Этаж: 1

Всего этажей: 18

Электрическая мощность: по запросу

Высота потолков: 5 м

Парковка: есть

Коммерческие условия

Цена за все: 82 847 800 RUB

ФОРМА ВЛАДЕНИЯ: -

карта

Расположение

Адрес: Москва, бизнес-квартал Стоун Римская

Округ: Юго-Восточный административный округ

Близость метро: Площадь Ильича,Римская

Транспортная доступность: 3 мин. от станций метро Римская, Площадь Ильича и остановок МЦД-2 и МЦД-4. Удобный выезд на ТТК и Садовое кольцо.

Окружение

Торговое окружение: развивающееся

Адрес:

Москва, бизнес-квартал Стоун Римская

Округ:

Юго-Восточный административный округ

Близость метро:

Площадь Ильича,Римская

Транспортная доступность:

3 мин. от станций метро Римская, Площадь Ильича и остановок МЦД-2 и МЦД-4. Удобный выезд на ТТК и Садовое кольцо.

карта

Торговое окружение:

развивающееся

Общая площадь:

82.6  м2

Этаж:

1

Всего этажей:

18

Тип:

С отдельным входом,Торговая,Общепит,Новостройка

Электрическая мощность:

по запросу

Высота потолков:

5 м

Парковка:

есть

ФОРМА ВЛАДЕНИЯ:

-

Цена за все:

82 847 800 RUB

Планировка

Гервас Ксения

Ваш брокер по работе с клиентами

Найдите лучшее место
для жизни, бизнеса, инвестиций

Оставьте свои контакты — с вами свяжется руководитель отдела для презентации нужного вам объекта

Похожие объекты