Id 155377

ЖК Мыс, корпус Дом «Сибирь» - 127.3 кв.м / Продажа ПСН

адрес деревня Ликино, ЖК Мыс

Многофункциональный
С отдельным входом
Торговая
Новостройка

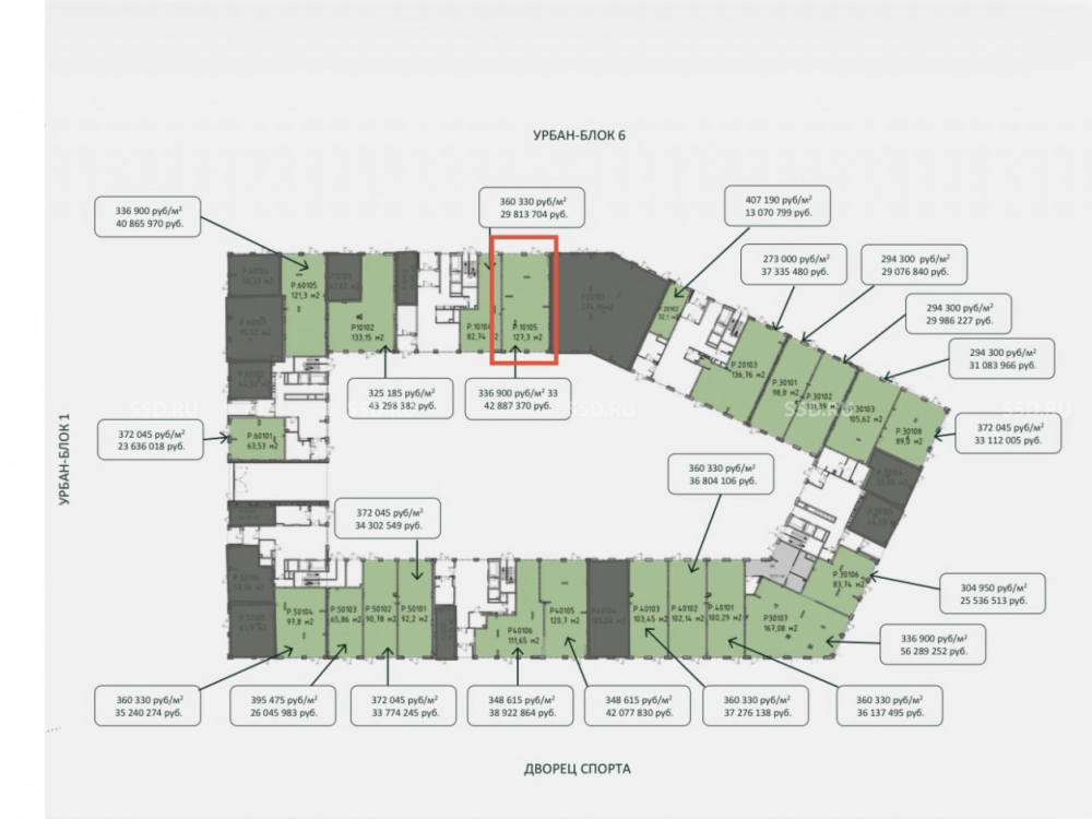
42 887 370 RUB | за все

(за 1 м2 — 336 900 RUB)

площадь 127.3 м2

QR код Qr код

В продажу предлагается помещение свободного назначения в многофункциональном жилом комплексе "МЫС", корпус Дом «Сибирь», по адресу: МО, Одинцовский городской округ, вблизи деревни Ликино.

МЫС - семейный природный кластер премиум-класса в 30 минутах от Москва-Сити.
Проект включает в себя мало- и среднеэтажные (от 6 до 12 этажей) многоквартирные корпуса бизнес-класса, а также премиальные клубные дома (до 7 этажей).

Расположение ЖК «МЫС» обеспечивает хорошую транспортную доступность. За 20 минут можно доехать до МКАД по Минскому шоссе и Северному обходу Одинцово.
Дорога до делового центра «Москва-Сити» и аэропорта Внуково занимает около 20–30 минут.
Общественный транспорт: доступны железнодорожные станции Кубинка, Одинцово МЦД-1, Крекшино МЦД-4, а также станция метро «Парк Победы».
Железнодорожная станция Жаворонки находится всего в 4 километрах от комплекса.
В 20-минутной автомобильной доступности расположена станция «Лесной Городок» МЦД-4. За 30 минут можно добраться до станций метро «Аэропорт Внуково», «Пыхтино», «Рассказовка» и «Новопеределкино».

На территории комплекса будут функционировать:
школа вместимостью 1250 учеников; два государственных детских сада на 350 и 255 мест; комьюнити-центр; гастрономический холл; бутики; специальное пространство для проведения праздничных мероприятий.
Ввод в эксплуатацию всех инфраструктурных объектов запланирован одновременно с жилыми помещениями.

Технические характеристики: Площадь - 127.3 кв.м, отдельный вход, витринное остекление. Электрическая мощность - 200 Вт/м². Отделка shell&core.
Дата сдачи 3 кв. 2028 г.

Коммерческие условия:
Стоимость - 42 887 370 рублей
Стоимость за кв.м - 336 900 рублей

Технические характеристики

Тип здания: Многофункциональный,С отдельным входом,Торговая,Новостройка

Общая площадь: 127.3  м2

Этаж: 1

Всего этажей: 12

Электрическая мощность: 200 Вт/м²

Высота потолков: от 3,5 м

Парковка: Стихийная

Коммерческие условия

Цена за все: 42 887 370 RUB

ФОРМА ВЛАДЕНИЯ: Частная

карта

Расположение

Адрес: деревня Ликино, ЖК Мыс

Близость метро: Кокошкино

Транспортная доступность: доступны железнодорожные станции Кубинка, Одинцово МЦД-1, Крекшино МЦД-4

Окружение

Торговое окружение: Развитая инфраструктура

Адрес:

деревня Ликино, ЖК Мыс

Округ:

Близость метро:

Кокошкино

Транспортная доступность:

доступны железнодорожные станции Кубинка, Одинцово МЦД-1, Крекшино МЦД-4

карта

Торговое окружение:

Развитая инфраструктура

Общая площадь:

127.3  м2

Этаж:

1

Всего этажей:

12

Тип:

Многофункциональный,С отдельным входом,Торговая,Новостройка

Электрическая мощность:

200 Вт/м²

Высота потолков:

от 3,5 м

Парковка:

Стихийная

ФОРМА ВЛАДЕНИЯ:

Частная

Цена за все:

42 887 370 RUB

Планировка

Лев

Ваш брокер по работе с клиентами

Найдите лучшее место
для жизни, бизнеса, инвестиций

Оставьте свои контакты — с вами свяжется руководитель отдела для презентации нужного вам объекта

Похожие объекты