Id 156013

МО, Подольск, ул. Большая Серпуховская, д.19/ 96.5 м² / ПСН

адрес Подольск, Большая Серпуховская улица, 19

Многофункциональный
С отдельным входом
Торговая

36 779 961 RUB | за все

(за 1 м2 — 383 125 RUB)

площадь 96.0 м2

QR код Qr код

Предлагается в продажу помещение по адресу МО, Подольск, ул. Большая Серпуховская, д.19, 96.5 м². Торговый комплекс представляет собой ансамбль из 3 зданий с общей архитектурной концепцией. Проект разработан бюро 8 Lines и вдохновлен классическими торговыми рядами с арками и галереями. Современная интерпретация включает контрастные фасады и крыши с панорамными витражами. Проект расположен в Подольске — одном из ведущих промышленных и научных центров Московской области. В радиусе 5–15 минут пешком находятся жилые кварталы, рестораны, магазины, кафе, банки, аптеки, медицинские центры и парки. Дорога до МКАД занимает 25 минут транспортом, до ТТК — 45 минут, а до центра Москвы — около 1 часа. До ж/д станции Подольск можно добраться за 15 минут пешком.

Торговое окружение:
Сбербанк, Дикси, Радуга.

Технические характеристики:
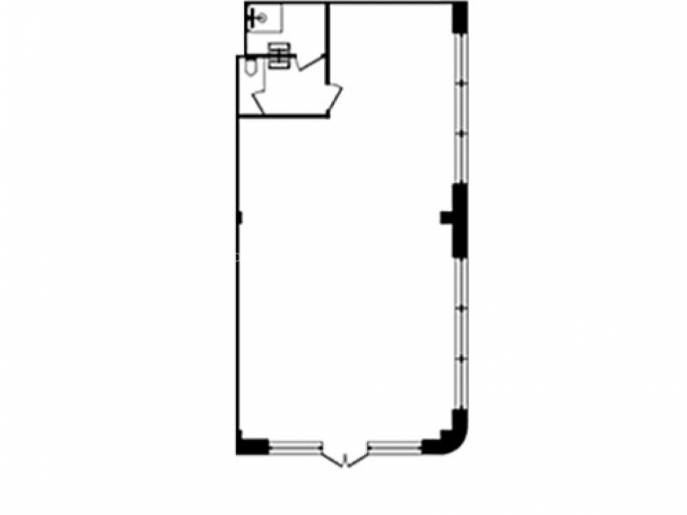
Площадь 96.5 м² ., высота потолков 4.5 м., витринное остекление., без отделки, мощность электричества 9.65 кВт., место для вывески.

Коммерческие условия:
Стоимость за все - 36 779 961 руб.
Стоимость за 1 кв.м.- 381 100 руб.
Срок сдачи 3 квартал 2026.

Технические характеристики

Тип здания: Многофункциональный,С отдельным входом,Торговая

Общая площадь: 96  м2

Этаж: 1

Всего этажей: 2

Электрическая мощность: -

Высота потолков: -

Парковка: -

Коммерческие условия

Цена за все: 36 779 961 RUB

ФОРМА ВЛАДЕНИЯ: -

карта

Расположение

Адрес: Подольск, Большая Серпуховская улица, 19

Округ: Северный административный округ

Близость метро: Потапово

Транспортная доступность: -

Окружение

Торговое окружение: -

Адрес:

Подольск, Большая Серпуховская улица, 19

Округ:

Северный административный округ

Близость метро:

Потапово

Транспортная доступность:

-

карта

Торговое окружение:

-

Общая площадь:

96  м2

Этаж:

1

Всего этажей:

2

Тип:

Многофункциональный,С отдельным входом,Торговая

Электрическая мощность:

-

Высота потолков:

-

Парковка:

-

ФОРМА ВЛАДЕНИЯ:

-

Цена за все:

36 779 961 RUB

Планировка

Шаклеина Юлия

Ваш брокер по работе с клиентами

Найдите лучшее место
для жизни, бизнеса, инвестиций

Оставьте свои контакты — с вами свяжется руководитель отдела для презентации нужного вам объекта

Похожие объекты