Id 156171

г. Москва, ​Складочная улица/ БЦ GUSTAV/ 8806 кв.м./ Продажа

адрес Москва, креативно-производственный кластер Густав

Бизнес центр
Офис

2 940 805 750 RUB | за все

(за 1 м2 — 333 955 RUB)

площадь 8 806.0 м2

QR код Qr код

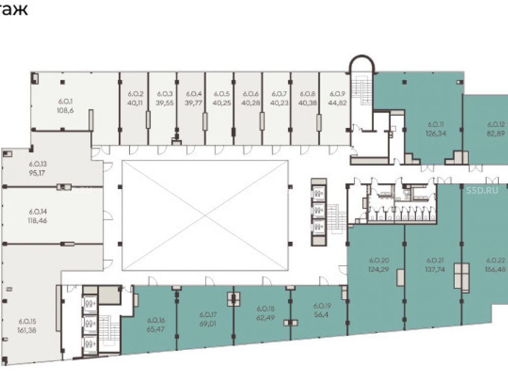
Предлагаются в продажу офисные помещения, г. Москва, ​Складочная улица, БЦ GUSTAV, 8806 кв.м. Креативно-деловой кластер GUSTAV — это городское пространство с высоким инвестиционным потенциалом. Здесь органично переплетаются историческая архитектура и современная инфраструктура для ведения бизнеса. Технопарк расположен в удобном месте в сердце старой Москвы, что объединяет его с прошлым, при этом формируя бизнес-среду будущего. Принципиально новый формат коммерческой недвижимости, концепция industrial-офисов берет лучшее от форматов light industrial и open space. Такой тип помещений позволяет не ограничивать функциональность и гибкость бизнеса, при этом компания может развивать операционную деятельность в ритме с городом. До станции метро «Савеловская» 10 мин. пешком, до станции метро «Дмитровская» 12 мин. пешком.

Технические характеристики:
Площадь 8806 кв.м., 6 - 7 этажи, офисы от 40 м2. Наличие лотов с террасой, пропуск с помощью телефона, усиление связи и Wi-Fi в зоне паркинга и лифтах, зарядные устройства для электромобилей, современные лифты, работа Outdoor на 6 этаже, потолки на 6 этаже 3,8 м., 7-й этаж 3,78 м. Возможность гибкой планировки и установки кухонного или сантехнического оборудования в любой зоне. Вентиляция, охлаждение воздуха, дизайнерская отделка МОП, лестничных маршей и коридоров. Электричество разведено до поэтажных щитов. Во всех помещениях установлены датчики АПС, в коридорах - дымоудаления.

Коммерческие условия:
Общая стоимость - 2 940 805 750 руб.
Цена за 1 м2. - 333 955 руб.
Готовность III квартал 2026 года

Технические характеристики

Тип здания: Бизнес центр,Офис

Общая площадь: 8806  м2

Этаж: 6

Всего этажей: 17

Электрическая мощность: -

Высота потолков: -

Парковка: -

Коммерческие условия

Цена за все: 2 940 805 750 RUB

ФОРМА ВЛАДЕНИЯ: -

карта

Расположение

Адрес: Москва, креативно-производственный кластер Густав

Округ: Северо-Восточный административный округ

Близость метро: Савеловская

Транспортная доступность: -

Окружение

Торговое окружение: -

Адрес:

Москва, креативно-производственный кластер Густав

Округ:

Северо-Восточный административный округ

Близость метро:

Савеловская

Транспортная доступность:

-

карта

Торговое окружение:

-

Общая площадь:

8806  м2

Этаж:

6

Всего этажей:

17

Тип:

Бизнес центр,Офис

Электрическая мощность:

-

Высота потолков:

-

Парковка:

-

ФОРМА ВЛАДЕНИЯ:

-

Цена за все:

2 940 805 750 RUB

Планировка

Шаклеина Юлия

Ваш брокер по работе с клиентами

Найдите лучшее место
для жизни, бизнеса, инвестиций

Оставьте свои контакты — с вами свяжется руководитель отдела для презентации нужного вам объекта

Похожие объекты