Id 156253

Москва, Лукинская улица, 14к1 - 169 кв.м. - Продажа / Арендный бизнес Wildberries, Офисы.

адрес Москва, Лукинская улица, 14к1

Арендный бизнес
С отдельным входом
Торговая

Окупаемость: 10.1 года

Доходность:9.92%

48 840 000 RUB | за все

(за 1 м2 — 288 994 RUB)

площадь 169.0 м2

QR код Qr код

В продажу предлагается Арендный бизнес с арендаторами Wildberries, Офисы, нежилое помещение торгового назначения, расположенное по адресу Москва, ЗАО, район Ново-Переделкино, Лукинская улица, 14к1;
В шаговой доступности от станций метро: Переделкино (14 мин. пешком) и Новопеределкино (18 мин. пешком);
В непосредственной близости находятся остановки общественного транспорта;
Удобный выезд на Боровское и Киевское шоссе, что обеспечивает быстрый доступ к МКАД (около 10 минут) и в центр Москвы;
Густонаселенный район с высоким платежеспособным населением.

Торговое окружение:
В непосредственной близости находятся: ТЦ Новопеределкино, ТЦ Переделкино Ближнее, супермаркеты Пятерочка, Магнит, Дикси, магазин напитков ВинЛаб, аптека Здравсити.

Технические характеристики:
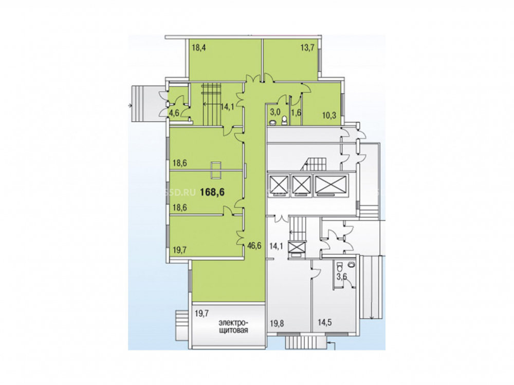
Площадь 169 кв.м, 1-й этаж 22-ти этажного жилого дома. 2007 года потсройки;
Отдельная входная группа на парк. ВОзможность организации зальной планировки;
Электрическая мощность 33,8 кВт.

Коммерческие условия:
Стоимость объекта 48 840 000 рублей;
Стоимость 1 кв.м 288 994 рублей.

Арендаторы «Wildberries», Офисы.
Совокупный арендный поток 407 000 рублей в месяц;
Ежегодная индексация 10%.

Собственник Физ лицо;
Продажа по ДКПн.

Технические характеристики

Тип здания: Арендный бизнес,С отдельным входом,Торговая

Общая площадь: 169  м2

Этаж: 1

Всего этажей: 22

Электрическая мощность: 33,8 кВт

Высота потолков: 3,4 м

Парковка: Наземная

Коммерческие условия

Цена за все: 48 840 000 RUB

ФОРМА ВЛАДЕНИЯ: Физ лицо

Общий МАП: 407 000 RUB (данный МАП является минимальным, при оптимизации арендаторов арендный поток можно значительно увеличить)

Общий ГАП: 4 884 000 RUB

Окупаемость: 10.1 года

Доходность: 9.92%

карта

Расположение

Адрес: Москва, Лукинская улица, 14к1

Округ: Западный административный округ

Близость метро: Новопеределкино,Переделкино

Транспортная доступность: Удобный выезд на Боровское и Киевское шоссе, что обеспечивает быстрый доступ к МКАД (около 10 минут) и в центр Москвы.

Окружение

Торговое окружение: В непосредственной близости находятся: ТЦ Новопеределкино, ТЦ Переделкино Ближнее, супермаркеты Пятерочка, Магнит, Дикси, магазин напитков ВинЛаб, аптека Здравсити.

Адрес:

Москва, Лукинская улица, 14к1

Округ:

Западный административный округ

Близость метро:

Новопеределкино,Переделкино

Транспортная доступность:

Удобный выезд на Боровское и Киевское шоссе, что обеспечивает быстрый доступ к МКАД (около 10 минут) и в центр Москвы.

карта

Торговое окружение:

В непосредственной близости находятся: ТЦ Новопеределкино, ТЦ Переделкино Ближнее, супермаркеты Пятерочка, Магнит, Дикси, магазин напитков ВинЛаб, аптека Здравсити.

Общая площадь:

169  м2

Этаж:

1

Всего этажей:

22

Тип:

Арендный бизнес,С отдельным входом,Торговая

Электрическая мощность:

33,8 кВт

Высота потолков:

3,4 м

Парковка:

Наземная

ФОРМА ВЛАДЕНИЯ:

Физ лицо

Цена за все:

48 840 000 RUB

Общий МАП: 407 000

(данный МАП является минимальным, при оптимизации арендаторов арендный поток можно значительно увеличить)

Общий ГАП:

4 884 000

Окупаемость:

10.1 года

Доходность:

9.92%

Планировка

Владислав

Ваш брокер по работе с клиентами

Найдите лучшее место
для жизни, бизнеса, инвестиций

Оставьте свои контакты — с вами свяжется руководитель отдела для презентации нужного вам объекта

Похожие объекты