Id 156735

ул. Челюскинская, 9 - 907,4 кв. м. - Продажа / Помещение свободного назначения

адрес Москва, Челюскинская улица, 9

Многофункциональный
С отдельным входом
Торговая

240 461 000 RUB | за все

(за 1 м2 — 265 000 RUB)

площадь 907.4 м2

QR код Qr код

Предлагается к продаже помещение свободного назначения по адресу: г. Москва, СВАО, район Лосиноостровский, ул. Челюскинская, 9. Удобная транспортная доступность: 10 минут пешком до платформы «Лось», 15 минут автобусом до станции метро «Бабушкинская». Близость к магистралям: 15–17 минут на транспорте до МКАД и Ярославского шоссе.
Остановка общественного транспорта в шаговой доступности. Высокий пешеходный и автомобильный трафик.
Развитая инфраструктура района: магазины, аптеки, кафе, банки, поликлиника.

Технические характеристики:
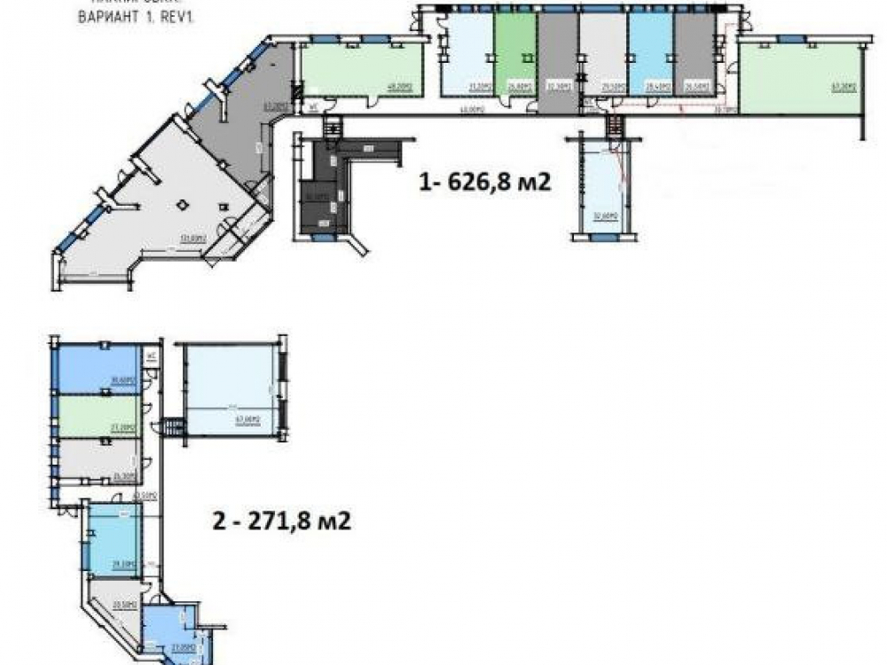
Общая площадь: 907.4 кв. м. 1 этаж. 4 отдельных входа. Витринное остекление. Высота потолков: 5 м. Выполнен качественный косметический ремонт. Коммуникации: городские (электроснабжение, водопровод, канализация, отопление). Электрическая мощность: 178 кВт.

Подходит для торговли, общественного питания, сферы услуг, офисов и других видов коммерческой деятельности.

Коммерческие условия:
Стоимость объекта: 240 461 000 рублей.
Стоимость за 1 кв. м.: 265 000 рублей.

Технические характеристики

Тип здания: Многофункциональный,С отдельным входом,Торговая

Общая площадь: 907.4  м2

Этаж: 1

Всего этажей: 12

Электрическая мощность: 178 кВт

Высота потолков: 5 м

Парковка: наземная

Коммерческие условия

Цена за все: 240 461 000 RUB

ФОРМА ВЛАДЕНИЯ: собственность

карта

Расположение

Адрес: Москва, Челюскинская улица, 9

Округ: Северо-Восточный административный округ

Близость метро: Бабушкинская

Транспортная доступность: транспортом

Окружение

Торговое окружение: развитое торговое окружение

Адрес:

Москва, Челюскинская улица, 9

Округ:

Северо-Восточный административный округ

Близость метро:

Бабушкинская

Транспортная доступность:

транспортом

карта

Торговое окружение:

развитое торговое окружение

Общая площадь:

907.4  м2

Этаж:

1

Всего этажей:

12

Тип:

Многофункциональный,С отдельным входом,Торговая

Электрическая мощность:

178 кВт

Высота потолков:

5 м

Парковка:

наземная

ФОРМА ВЛАДЕНИЯ:

собственность

Цена за все:

240 461 000 RUB

Планировка

Роберт

Ваш брокер по работе с клиентами

Найдите лучшее место
для жизни, бизнеса, инвестиций

Оставьте свои контакты — с вами свяжется руководитель отдела для презентации нужного вам объекта

Похожие объекты