Id 156980

проспект Мира, 222 - 107,4 кв. м. - Продажа / Помещение свободного назначения

адрес Москва, проспект Мира, 222

Многофункциональный
С отдельным входом
Торговая
Жилой комплекс (мфк)

80 550 000 RUB | за все

(за 1 м2 — 750 000 RUB)

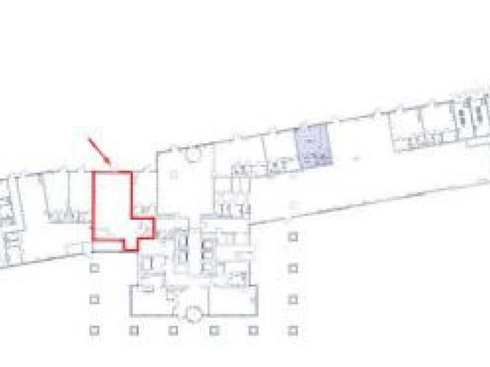
площадь 107.4 м2

QR код Qr код

Продажа помещения свободного назначения формата Street Retail в ЖК «Мираполис».
Адрес: г. Москва, СВАО, Ярославский район, проспект Мира, 222. Отличная транспортная доступность: станция метро «Ростокино» в 350 метрах (5-6 минут пешком). Рядом находятся остановки наземного транспорта. Густонаселённый жилой массив. Жилой комплекс «Мираполис» состоит из 4 небоскрёбов высотой до 35 этажей. Высокая проходимость: Уникальное сочетание сверхинтенсивного автомобильного трафика на проспекте Мира и активного пешеходного потока от метро. Сложившееся торговое и деловое окружение.

Технические характеристики:
Общая площадь: 107,4 кв. м., 1-й этаж 35-этажного жилого дома. Витринное остекление. Отдельный вход. Открытая планировка. Состояние: Под чистовую отделку. Высота потолков: 4,5-7 м. Выделенная электрическая мощность: по запросу.

Помещение идеально подойдет для: банка, аптеки, кофейни, салона красоты, магазина «у дома», пекарни, демо-зала или офиса продаж.

Коммерческие условия:
Стоимость объекта: 80 550 000 рублей (без НДС).
Стоимость за 1 кв. м.: 750 000 рублей.

Технические характеристики

Тип здания: Многофункциональный,С отдельным входом,Торговая,Жилой комплекс (мфк)

Общая площадь: 107.4  м2

Этаж: 1

Всего этажей: 35

Электрическая мощность: по запросу

Высота потолков: 4,5-7 м

Парковка: по запросу

Коммерческие условия

Цена за все: 80 550 000 RUB

ФОРМА ВЛАДЕНИЯ: по запросу

карта

Расположение

Адрес: Москва, проспект Мира, 222

Округ: Северо-Восточный административный округ

Близость метро: Ростокино

Транспортная доступность: в пешей доступности

Окружение

Торговое окружение: развитое торговое окружение

Адрес:

Москва, проспект Мира, 222

Округ:

Северо-Восточный административный округ

Близость метро:

Ростокино

Транспортная доступность:

в пешей доступности

карта

Торговое окружение:

развитое торговое окружение

Общая площадь:

107.4  м2

Этаж:

1

Всего этажей:

35

Тип:

Многофункциональный,С отдельным входом,Торговая,Жилой комплекс (мфк)

Электрическая мощность:

по запросу

Высота потолков:

4,5-7 м

Парковка:

по запросу

ФОРМА ВЛАДЕНИЯ:

по запросу

Цена за все:

80 550 000 RUB

Планировка

Виталий

Ваш брокер по работе с клиентами

Найдите лучшее место
для жизни, бизнеса, инвестиций

Оставьте свои контакты — с вами свяжется руководитель отдела для презентации нужного вам объекта

Похожие объекты