Id 157144

Москва, ЦАО, ул. Хамовнический Вал, 36 / Продажа / Помещение свободного назначения / 420 кв.м.

адрес Москва, улица Хамовнический Вал, 36

Многофункциональный
С отдельным входом
Торговая
Новостройка

350 000 000 RUB | за все

(за 1 м2 — 833 333 RUB)

площадь 420.0 м2

QR код Qr код

Продажа помещения свободного назначения в ЖК Лужники Хаус в Хамовниках. Близость стадиона "Лужники". Окружение — "СберБанк", косметология LazerJazz, фитнес-клуб "Анатомия". За 3 минуты можно пешком дойти до станций метро "Спортивная" и "Лужники".

Технические характеристики:
Общая площадь 420 кв. м.
Первый этаж и антресоль.
Выполнена отделка премиум класса.
Отдельный вход с улицы и со двора, витринное остекление.
Предусмотрены зона разгрузки.
Вдоль дома организована парковка за шлагбаумом.

Коммерческие условия:
Стоимость - 350 000 000 рублей.
Стоимость за 1 кв.м. - 833 334 рублей.
Арендатор: спа-салон City Resort. ДДА до 2028 года.

Технические характеристики

Тип здания: Многофункциональный,С отдельным входом,Торговая,Новостройка

Общая площадь: 420  м2

Этаж: 1

Всего этажей: 8

Электрическая мощность: по запросу

Высота потолков: по запросу

Парковка: Есть.

Коммерческие условия

Цена за все: 350 000 000 RUB

ФОРМА ВЛАДЕНИЯ: Физ. лицо.

карта

Расположение

Адрес: Москва, улица Хамовнический Вал, 36

Округ: Центральный административный округ

Близость метро: Лужники,Спортивная

Транспортная доступность: За 3 минуты можно пешком дойти до станций метро

Окружение

Торговое окружение: Большое

Адрес:

Москва, улица Хамовнический Вал, 36

Округ:

Центральный административный округ

Близость метро:

Лужники,Спортивная

Транспортная доступность:

За 3 минуты можно пешком дойти до станций метро

карта

Торговое окружение:

Большое

Общая площадь:

420  м2

Этаж:

1

Всего этажей:

8

Тип:

Многофункциональный,С отдельным входом,Торговая,Новостройка

Электрическая мощность:

по запросу

Высота потолков:

по запросу

Парковка:

Есть.

ФОРМА ВЛАДЕНИЯ:

Физ. лицо.

Цена за все:

350 000 000 RUB

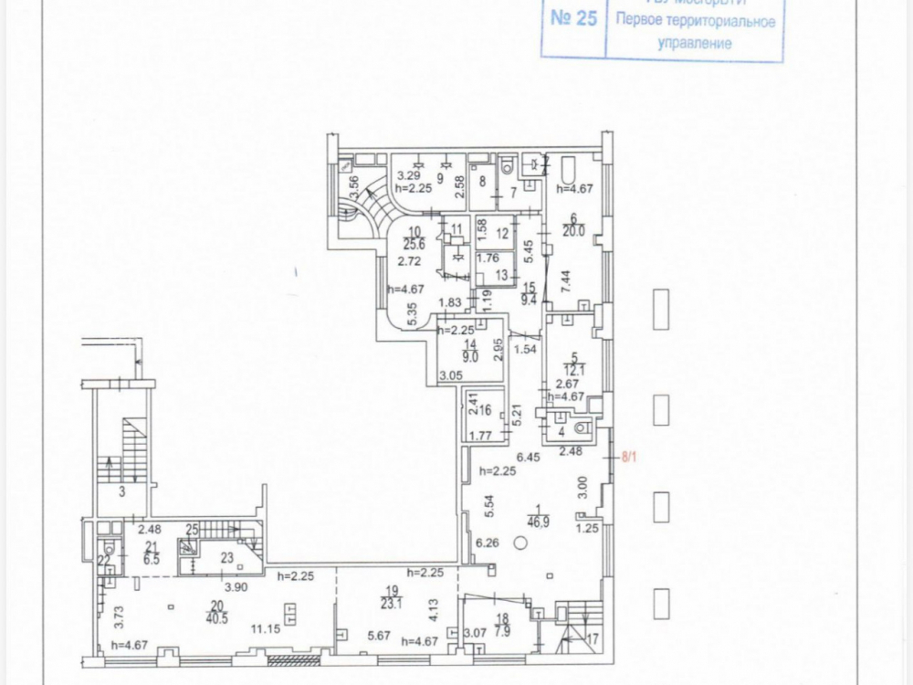
Планировка

Павел

Ваш брокер по работе с клиентами

Найдите лучшее место
для жизни, бизнеса, инвестиций

Оставьте свои контакты — с вами свяжется руководитель отдела для презентации нужного вам объекта

Похожие объекты